Bildegalleri

Velkommen til Dyregrenda Sør 21 - din neste fritidseiendom som kan by på fire soverom, to bad, to stuer, toalett, vaskerom samt godt med bodplass.
Solgt
Hovden
Flott og romslig familiehytte under oppføring - Solrikt - Beliggende i et rolig og etablert område - Siste mulighet!
Prisantydning7 400 000 kr
- Omkostninger
- 58 490 kr
- Totalpris
- 7 458 490 kr
Nøkkelinfo
- Beliggenhet
- På fjellet
- Boligtype
- Hytte
- Eieform
- Eier (Selveier)
- Primærrom
- 143 m²
- Bruksareal
- 149 m²
- Tomt
- Eiet
- Soverom
- 4
- Rom
- 6
Fasiliteter
Innlagt vann
Alpinanlegg
Balkong/Terrasse
Barnevennlig
Bilvei frem
Bredbåndstilknytning
Garasje/P-plass
Kabel-TV
Peis/Ildsted
Rolig
Innlagt strøm
Offentlig vann/kloakk
Turterreng
Om boligen
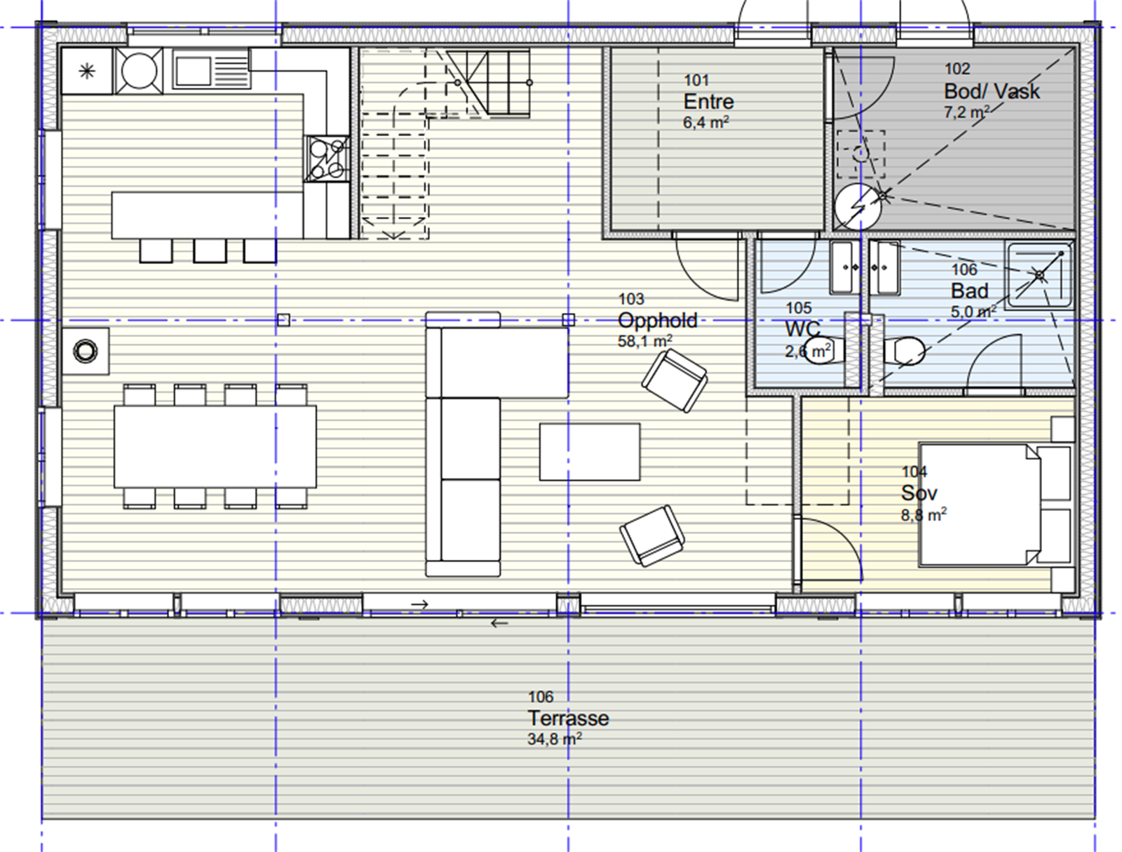
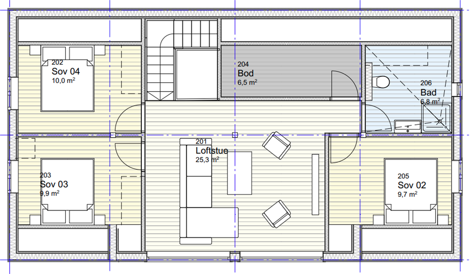
To nøkkelferdige hytter hvor av en er solgt, kun én mulighet igjen! Hytten har et pent arkitektonisk uttrykk og er meget innholdsrik. Boligen kan by på fire soverom, stort oppholdsrom med romslig kjøkken, to bad, separat toalett, vaskerom samt godt med bodplass. I hjertet av hytta er det store vindusflater, som gir godt med naturlig lysinnslipp, og en hyggelig utsikt mot Enden i det fjerne. Hytten har 6 meter i mønehøyde samt flotte material- og fargevalg.
Hyttene ligger meget solrikt til i et etablert og flott hytteområde, med en av Hovdens mest sentrale beliggenheter. Her kan man spasere til alpinanlegget, langrennsløypene og sentrum hvor man finner dagligvareforretninger, sportsbutikker, restauranter, utesteder for å nevne noe. Overtagelse etter avtale med selger.
Hyttene ligger meget solrikt til i et etablert og flott hytteområde, med en av Hovdens mest sentrale beliggenheter. Her kan man spasere til alpinanlegget, langrennsløypene og sentrum hvor man finner dagligvareforretninger, sportsbutikker, restauranter, utesteder for å nevne noe. Overtagelse etter avtale med selger.
NB: Knappen for å vise hele beskrivelsen har kun en visuell effekt.
NB: Knappen for å vise hele beskrivelsen har kun en visuell effekt.
Salgsoppgaven beskriver vesentlig og lovpålagt informasjon om eiendommen
Se komplett salgsoppgaveNyttige lenker
Nærområdet
Krogsveen Kristiansand
Verdien av en god megler.
Annonseinformasjon
| FINN-kode | 390546599 |
|---|---|
| Sist endret | 15. apr. 2025 08:34 |
| Referanse | KR31.23413 |
Annonsene kan være mangelfulle i forhold til lovpålagt opplysningsplikt. Før bindende avtale inngås oppfordres interessenter til å innhente komplett informasjon fra meglerforetaket, selger eller utleier.












