Bildegalleri

Bud Inviteres| Drømmetomt med idyllisk sjøutsikt og store muligheter
Nøkkelinfo
- Boligtype
- Enebolig
- Eieform
- Eier (Selveier)
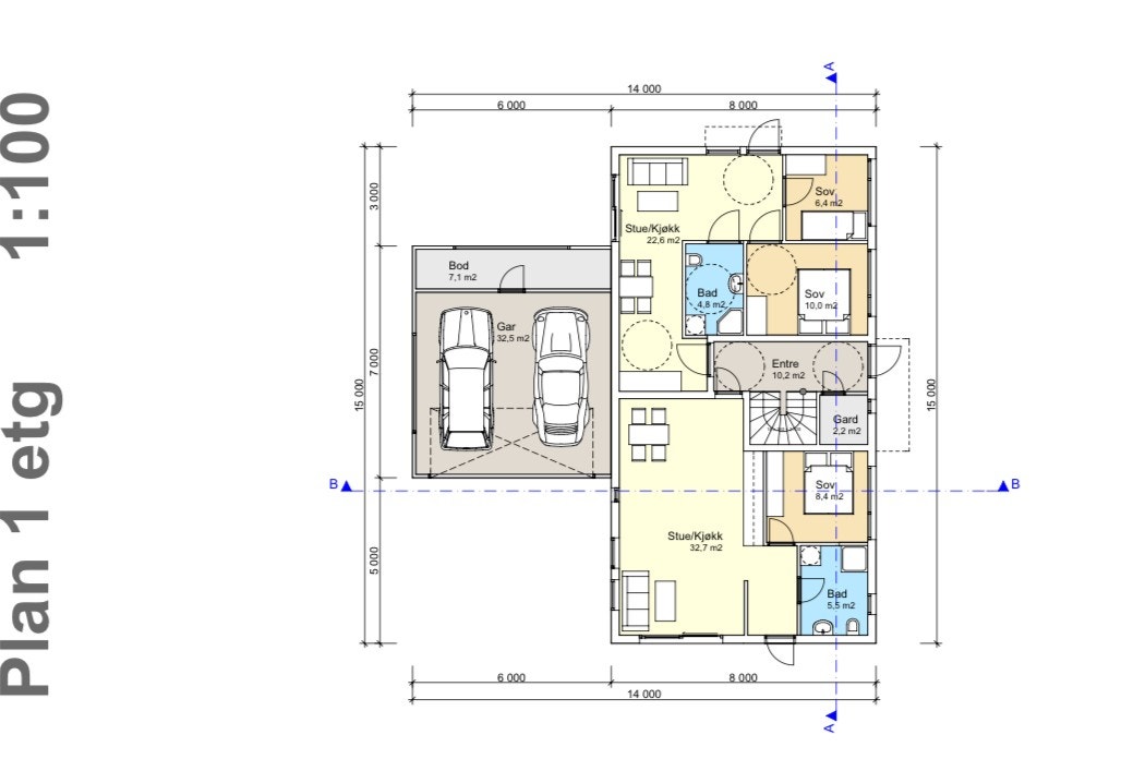
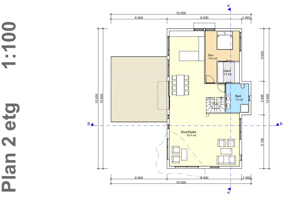
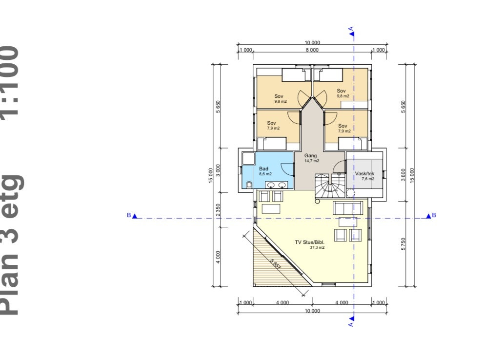
- Soverom
- 8
- Bruksareal
- 626 m²
- Etasje
- 3
- Byggeår
- 2025
- Utleiedel
- Ja
- Tomteareal
- 626 m²
Fasiliteter
Visning
Ta kontakt for å avtale visning.Beskrivelse
(Ønsker seriøse henvendelser)
Sjarmerende boligprosjekt i et nytt og veletablert familievennlig strøk i Ausviga. Her har du muligheten til å bygge drømmeboligen din på en stor, solrik tomt med sjøutsikt. Boligen er tegnet med tre etasjer og inkluderer to praktikant-deler som kan generere gode leieinntekter skattefritt. Boligtegningene er allerede utarbeidet, og igangsettingssøknaden er godkjent og betalt.
Det er rom for å endre tegningene og detaljer,(Det er også mulighet for å ha takterrasse) noe som kan avtales med byggefirmaet.
Ideelt familie som ønsker å bosette seg i en ny sjarmerende og ikke minst familievennlig strøk, og nyte en fantastisk utsikt
Her er kan kjøper designe fritt detaljer og luksuriøs en måtte ønske det— kan fritt bygges selv eller av valgfritt byggefirma
Boligen kan leveres nøkkelferdig mot et pristillegg på 7,7 millioner NOK, eller ferdig utvendig mot et pristillegg på 3,683 millioner NOK inkl. moms (Tilbudene kommer fra anerkjente og erfarne entreprenører som spesialiserer seg på bygging av nye boliger)
(Tomten selges privat, salgskontrakt via megler)
For mer informasjon, gjerne ta kontakt.
Tlf.: +47 41111683
Beliggenhet
Beskaffenhet
Ta kontakt med selger for komplett informasjon
Nærområdet
Annonsene kan være mangelfulle i forhold til lovpålagt opplysningsplikt. Før bindende avtale inngås oppfordres interessenter til å innhente komplett informasjon fra meglerforetaket, selger eller utleier.













