Bildegalleri

Solgt
HAMAR/BØRSTAD - Stor og innbydende enebolig med svært innholdsrik planløsning. 6 soverom og 2 bad. Stor tomt.
Prisantydning5 000 000 kr
Nøkkelinfo
- Boligtype
- Enebolig
- Eieform
- Eier (Selveier)
- Soverom
- 6
- Internt bruksareal
- 239 m² (BRA-i)
- Bruksareal
- 248 m²
- Eksternt bruksareal
- 9 m² (BRA-e)
- Balkong/Terrasse
- 40 m² (TBA)
- Byggeår
- 1932
- Energimerking
- G - Rød
- Tomteareal
- 963 m² (eiet)
Fasiliteter
Barnevennlig
Balkong/Terrasse
Garasje/P-plass
Offentlig vann/kloakk
Peis/Ildsted
Sentralt
Om boligen
EIE har gleden av å presentere denne innbydende familieboligen i Ringgata 81!
Boligen har hyggelig og sentral beliggenhet i et etablert boligområde på Børstad. Børstad er et attraktivt boligområde med kort veg til "alt". Området er fredelig, samt at det er gangavstand til sentrum med alle fasiliteter og servicetilbud. Flere barnehager og skoler i nærheten.
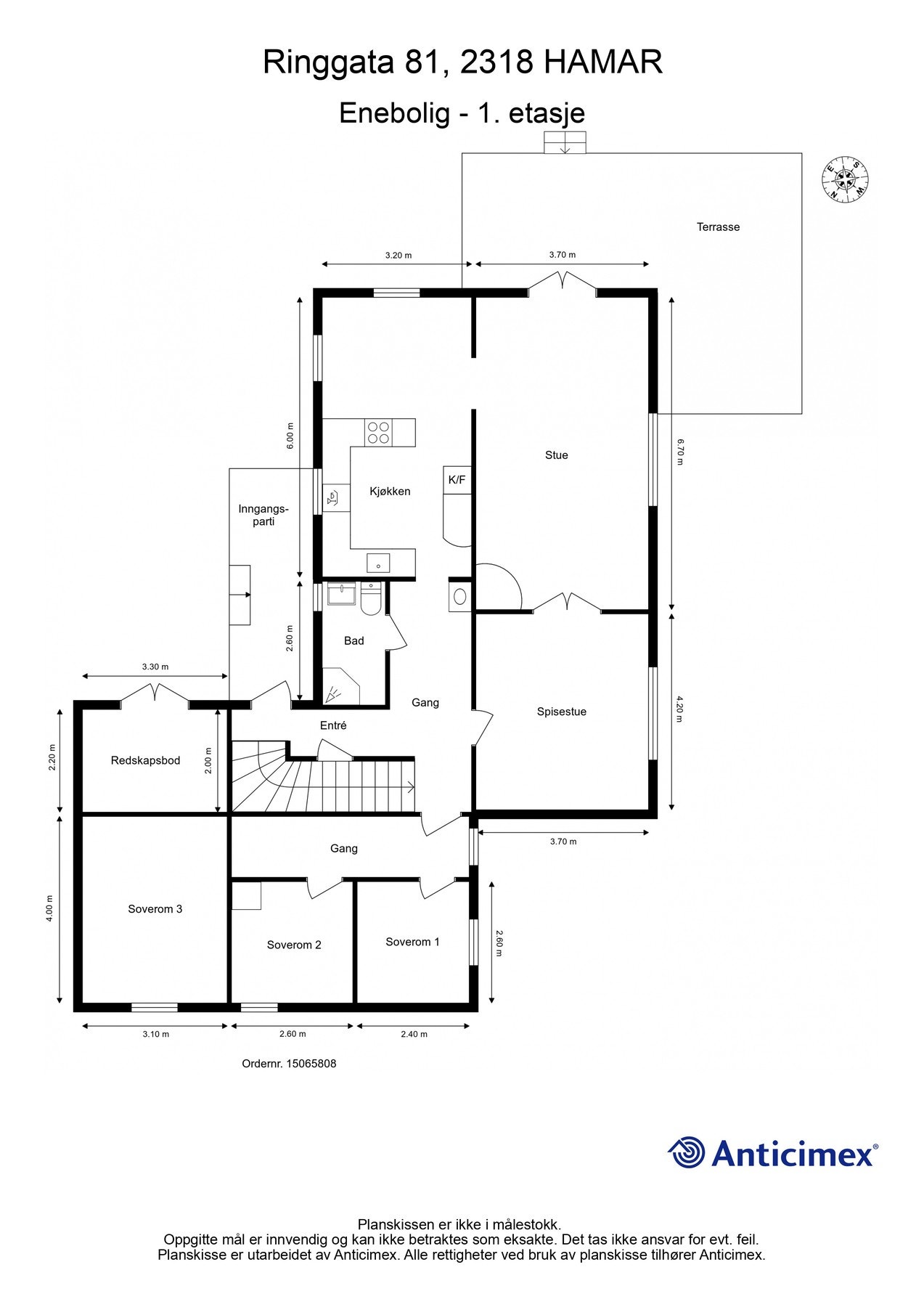
Dette er en stor enebolig med innholdsrik planløsning - her er det god plass til storfamilien! Totalt inneholder boligen seks soverom, to bad, vaskerom, toalettrom, kjøkken med spisestue, stue og en åpen stue- og kjøkkenløsning. Svært god lagringsplass i kjelleren hvor det er fem gode bodrom. Boligen har stue, kjøkken, bad og soverom i begge etasjer, og egner seg med andre ord godt som utleieobjekt/hybelhus.
Den store tomten er inngjerdet og har store plenarealer - perfekt for barnefamilier!
Dette er en sjeldent stor enebolig i et sentrumsnært område - denne bør ses!
Boligen har hyggelig og sentral beliggenhet i et etablert boligområde på Børstad. Børstad er et attraktivt boligområde med kort veg til "alt". Området er fredelig, samt at det er gangavstand til sentrum med alle fasiliteter og servicetilbud. Flere barnehager og skoler i nærheten.
Dette er en stor enebolig med innholdsrik planløsning - her er det god plass til storfamilien! Totalt inneholder boligen seks soverom, to bad, vaskerom, toalettrom, kjøkken med spisestue, stue og en åpen stue- og kjøkkenløsning. Svært god lagringsplass i kjelleren hvor det er fem gode bodrom. Boligen har stue, kjøkken, bad og soverom i begge etasjer, og egner seg med andre ord godt som utleieobjekt/hybelhus.
Den store tomten er inngjerdet og har store plenarealer - perfekt for barnefamilier!
Dette er en sjeldent stor enebolig i et sentrumsnært område - denne bør ses!
NB: Knappen for å vise hele beskrivelsen har kun en visuell effekt.
NB: Knappen for å vise hele beskrivelsen har kun en visuell effekt.
Salgsoppgaven beskriver vesentlig og lovpålagt informasjon om eiendommen
Se komplett salgsoppgaveNærområdet
EIE eiendomsmegling Innlandet
Annonseinformasjon
| FINN-kode | 391510163 |
|---|---|
| Sist endret | 18. mars 2025 11:20 |
| Referanse | 72250006 |
Annonsene kan være mangelfulle i forhold til lovpålagt opplysningsplikt. Før bindende avtale inngås oppfordres interessenter til å innhente komplett informasjon fra meglerforetaket, selger eller utleier.








































