Bildegalleri

EIE eiendomsmegling har gleden av å presentere Hubergveien 6C - Et lekkert rekkehus med attraktiv og barnevennlig beliggenhet på Selfors
Lekkert, lyst og innbydende rekkehus | Solrike uteplasser med hage | 3 romslige soverom | Garasje |Barnevennlig boområde
Nøkkelinfo
- Boligtype
- Rekkehus
- Eieform
- Andel
- Soverom
- 3
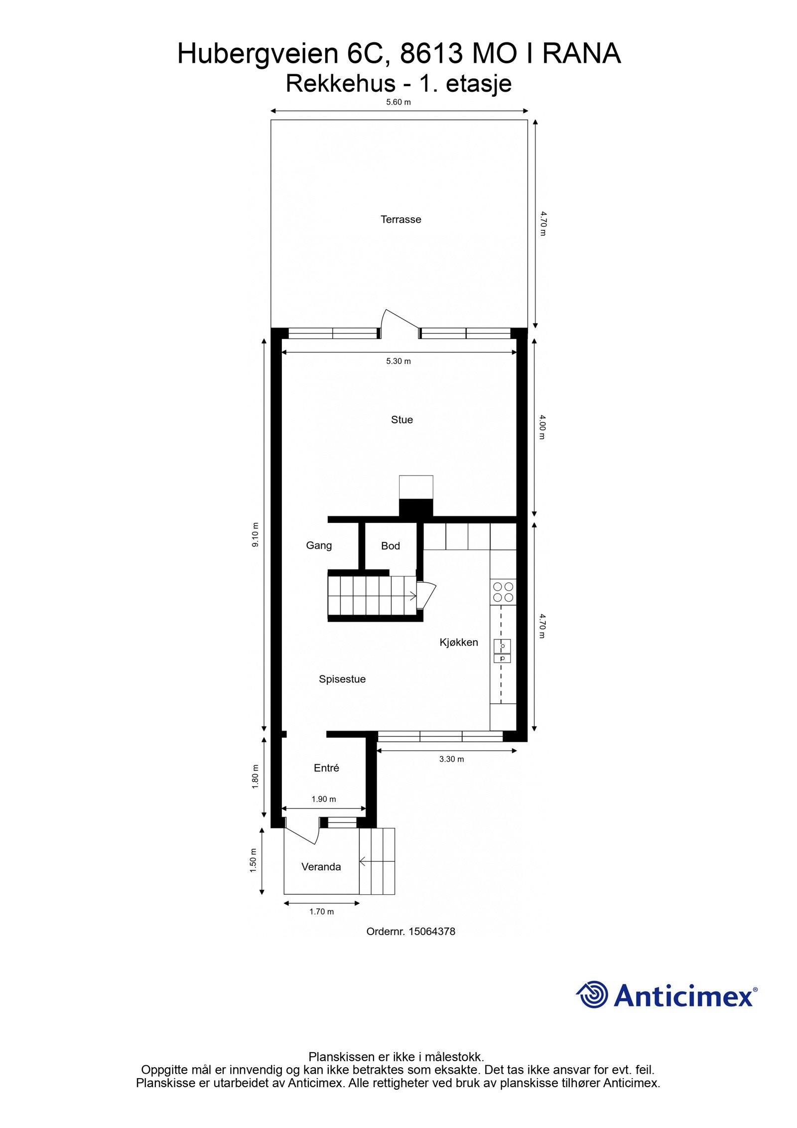
- Internt bruksareal
- 128 m² (BRA-i)
- Bruksareal
- 146 m²
- Eksternt bruksareal
- 18 m² (BRA-e)
- Balkong/Terrasse
- 35 m² (TBA)
- Byggeår
- 1968
- Energimerking
- F - Rød
- Rom
- 4
- Tomteareal
- 17 647 m² (eiet)
Om boligen
EIE eiendomsmegling har gleden av å presentere Hubergveien 6C - Et lekkert, lyst og innbydende rekkehus med attraktiv beliggenhet på Selfors.
Et innholdsrikt rekkehus med en gjennomgående god standard. Boligen har en lys stue med direkte utgang til solrik uteplass og hage. Videre byr boligen på et flott kjøkken, 3 romslige soverom, flott baderom som holder et tidløst preg og vaskerom. Den perfekte boligen for barnefamilien, her bor du med nærhet til skole, barnehage og fantastiske turmuligheter i Selforslia.
Verdt å merke seg:
- Separat stue-/ kjøkkenløsning
- Godt med naturlig lys fra store vindusflater
- Solrike uteplasser
- 3 romslige soverom
- Tidløst baderom
- Vaskerom
- Barnevennlig
- Nærhet til barnehage, skole og flotte turmuligheter
EIE ønsker velkommen!
Salgsoppgaven beskriver vesentlig og lovpålagt informasjon om eiendommen
Se komplett salgsoppgaveNærområdet
EIE eiendomsmegling Mo i Rana
Annonseinformasjon
| FINN-kode | 393682719 |
|---|---|
| Sist endret | 05. sep. 2025 09:18 |
| Referanse | 100240147 |
Annonsene kan være mangelfulle i forhold til lovpålagt opplysningsplikt. Før bindende avtale inngås oppfordres interessenter til å innhente komplett informasjon fra meglerforetaket, selger eller utleier.






























