Bildegalleri

Eiendommen har en råflott beliggenhet på Alstadfjæra, i første rekke mot havet.
Solgt
Bodøsjøen
Moderne funkisbolig med råflott utsikt mot hav og fjell. Påkostet | terrasser | panoramavinduer | carport | fjernvarme
Prisantydning8 800 000 kr
Nøkkelinfo
- Boligtype
- Enebolig
- Eieform
- Eier (Selveier)
- Soverom
- 5
- Internt bruksareal
- 156 m² (BRA-i)
- Bruksareal
- 163 m²
- Eksternt bruksareal
- 7 m² (BRA-e)
- Balkong/Terrasse
- 70 m² (TBA)
- Etasje
- 3
- Byggeår
- 2022
- Energimerking
- B - Lysegrønn
- Rom
- 6
- Tomteareal
- 1 833 m² (eiet)
Fasiliteter
Balkong/Terrasse
Barnevennlig
Bredbåndstilknytning
Garasje/P-plass
Hage
Kjæledyr tillatt
Offentlig vann/kloakk
Parkett
Rolig
Utsikt
Turterreng
Lademulighet
Balansert ventilasjon
Om boligen
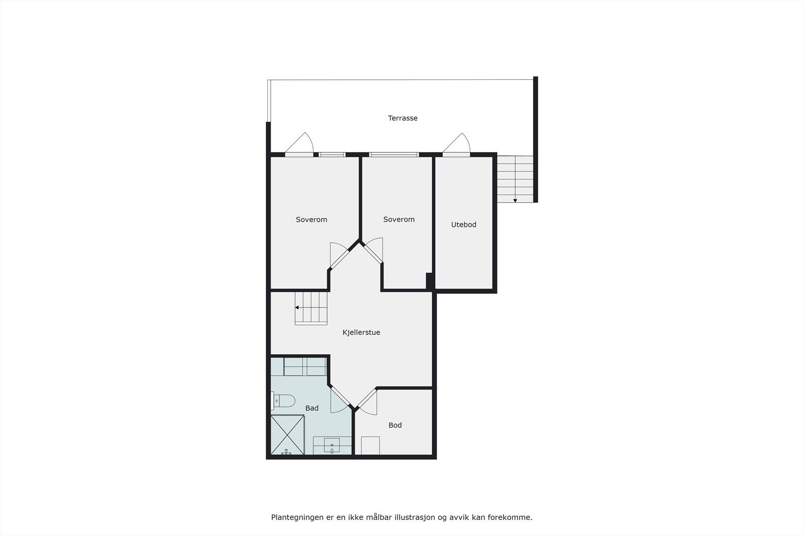
Velkommen til Alstadfjæra 10 en moderne funkisbolig fra 2022, over tre familievennlige plan. Boligen har en utsøkt plassering i første rekke mot havet og kyststien en helt rå beliggenhet som gir majestetisk postkortutsikt til hav og fjelltinder. Pulttak gir opp til 3 m takhøyde i toppetasjen, og med panoramavinduer opp til mønet føles utsikten som en del av rommet.
Utsikten kan også oppleves fra en markterrasse, balkong med glassrekkverk og en flott takterrasse over carporten. Stuen og et betydelig påkostet kjøkken fra Norema fyller hele den luftige toppetasjen og har vannbåren gulvvarme. I etasjene under er det en fleksibel tv-stue, fem soverom og to lekre bad med regnfallsdusj det ene kombinert vaskerom. Fire av soverommene har havutsikt og det siste er innredet som garderobe.
Utsikten kan også oppleves fra en markterrasse, balkong med glassrekkverk og en flott takterrasse over carporten. Stuen og et betydelig påkostet kjøkken fra Norema fyller hele den luftige toppetasjen og har vannbåren gulvvarme. I etasjene under er det en fleksibel tv-stue, fem soverom og to lekre bad med regnfallsdusj det ene kombinert vaskerom. Fire av soverommene har havutsikt og det siste er innredet som garderobe.
NB: Knappen for å vise hele beskrivelsen har kun en visuell effekt.
NB: Knappen for å vise hele beskrivelsen har kun en visuell effekt.
Salgsoppgaven beskriver vesentlig og lovpålagt informasjon om eiendommen
Se komplett salgsoppgaveNyttige lenker
Nærområdet
Nordvik Bodø
Annonseinformasjon
| FINN-kode | 397384871 |
|---|---|
| Sist endret | 03. apr. 2025 10:34 |
| Referanse | 35-0106/24 |
Annonsene kan være mangelfulle i forhold til lovpålagt opplysningsplikt. Før bindende avtale inngås oppfordres interessenter til å innhente komplett informasjon fra meglerforetaket, selger eller utleier.










































