Bildegalleri

Småskauen 31 er presentert av Per-Espen Omberg i Krogsveen.
Solgt
Hauge
Praktisk andelsbolig med alt på én flate, tilknyttet carport og hage på begge sider. Solfylt terrasse. Stille og rolig.
Prisantydning2 590 000 kr
Nøkkelinfo
- Boligtype
- Rekkehus
- Eieform
- Andel
- Soverom
- 1
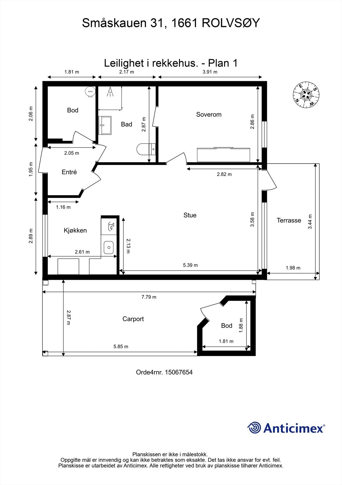
- Internt bruksareal
- 55 m² (BRA-i)
- Bruksareal
- 59 m²
- Eksternt bruksareal
- 4 m² (BRA-e)
- Balkong/Terrasse
- 7 m² (TBA)
- Etasje
- 1
- Byggeår
- 1990
- Energimerking
- F - Rød
- Rom
- 2
- Tomteareal
- 7 318 m² (eiet)
Fasiliteter
Balkong/Terrasse
Barnevennlig
Bredbåndstilknytning
Garasje/P-plass
Hage
Kjæledyr tillatt
Kabel-TV
Offentlig vann/kloakk
Rolig
Turterreng
Om boligen
Praktisk andelsbolig i svært fredelige omgivelser på Hauge
- Effektiv og smart romløsning med alt på én flate
- Oppgradert i nyere tid, potensial knyttet til ytterligere modernisering
- Hovedsoverom med direkte adkomst til bad
- Vinduer skiftet ut rundt 2017/2020
- Terrasse med gode solforhold dagen gjennom
- Hage på begge sider av boligen
- Tilbygget carport, med romslig bod
- Lagringsmuligheter også i innvendig bod og på loft
- Gangavstand til handelsområdet Dikeveien
- Nær fine turområder langs Glomma og i Fredrikstadmarka
NB: Knappen for å vise hele beskrivelsen har kun en visuell effekt.
NB: Knappen for å vise hele beskrivelsen har kun en visuell effekt.
Salgsoppgaven beskriver vesentlig og lovpålagt informasjon om eiendommen
Se komplett salgsoppgaveNyttige lenker
Nærområdet
Krogsveen Fredrikstad og Sarpsborg
Verdien av en god megler.
Annonseinformasjon
| FINN-kode | 397822108 |
|---|---|
| Sist endret | 29. mars 2025 12:34 |
| Referanse | KR67.24456 |
Annonsene kan være mangelfulle i forhold til lovpålagt opplysningsplikt. Før bindende avtale inngås oppfordres interessenter til å innhente komplett informasjon fra meglerforetaket, selger eller utleier.





















