Bildegalleri

Velkommen til Reffsfjellet 3!
Enkel hytte, solrikt og vakkert beliggende på Reffsfjellet - Hvaler
- Omkostninger
- 69 651 kr
- Totalpris
- 2 019 651 kr
- Kommunale avg.
- 7 389 kr per år
- Formuesverdi
- 512 279 kr
Nøkkelinfo
- Boligtype
- Hytte
- Eieform
- Eier (Selveier)
- Internt bruksareal
- 54 m² (BRA-i)
- Bruksareal
- 55 m²
- Eksternt bruksareal
- 1 m² (BRA-e)
- Balkong/Terrasse
- 44 m² (TBA)
- Tomteareal
- 983 m² (festet)
- Festeavgift
- 4 100 kr
- Byggeår
- 1972
- Soverom
- 3
- Rom
- 4
- Energimerking
- G - Rød
Fasiliteter
Om eiendommen
Om boligen
Arealer
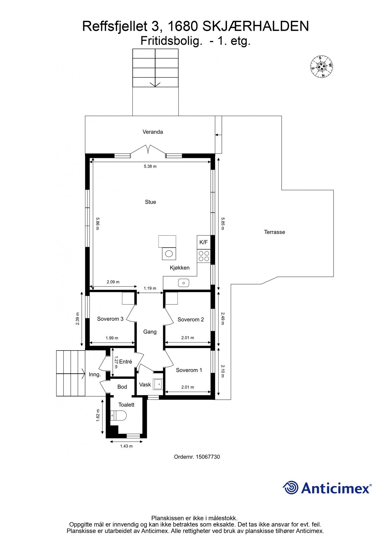
Totalt bruksareal: 55,0 m²
- BRA-i: 54,0 m²
- BRA-e: 1,0 m²
- BRA-b: m²
I tillegg kommer TBA (terrasse-/balkongareal): 44,0 m²
BRA-i: Internt bruksareal. BRA-e: Eksternt bruksareal. Dersom dette arealet befinner seg i sameie, borettslag, aksjesalg e.l. vil normalt sett disse arealene ikke være eid av boligen, de er kun disponert på salgstidspunktet. Arealet kan f. eks. omrokeres av styret i ettertid. BRA-b: Innglasset balkong. GUA: Gulvareal. ALH: Areal med lav himlingshøyde.
Se vedlagte tilstandsrapport for nærmere beskrivelse av arealene. Arealene er oppmålt av bygningssakkyndig og ikke kontrollert/oppmålt av eiendomsmegler. Arealene er oppgitt iht NS 3940 Areal- og volumberegninger av bygninger.
Beskrivelse
Praktisk hytte med standard fra byggeår, pent beliggende på en liten høyde på Reffsfjellet, Kirkøy. Fra hytta er det kort vei til felles parkeringsplass. Området består av et hyttefelt fra 1970-tallet med spredt bebyggelse der denne hytta ligger nest ytterst i feltet. Hytta har store, usjenerte uteplasser med gode solforhold. Fra eiendommen er det kort kjørevei til Skjærhalden og Edholmen med diverse servicetilbud.
Beliggenhet
Hytta ligger forholdsvis høyt på Kirkøy, Herfra er det kort kjørevei til Skjærhalden og Edholmen med diverse servicetilbud. På Kirkøy finnes også Golfbane og flott områder for rekreasjon som bading, fisking og sykling. Øya byr på et stort areal med svaberg, skogsterreng samt tilstøtende øyer som gir rom for et smult farvann - Området omkring Romsundet/Holtekilen egner seg godt for kajakkpadling. Lengst syd på øya kan man utforske Nasjonalparken med vakre strender og glatte svaberg. I Ørekroken/Storesand er det ypperlige forhold for surfing og kiting.
Innhold
Hytta er fordelt over ett plan og inneholder stue, kjøkken, tre soverom, rom med vaskeservant, bod/toalettrom, gang og entre. I tilegg har hytta en frittstående bod/dusjrom på ca. 4kvm.
Standard
Hytta holder normal hyttestandard. Verandadør og vinduer med to-lags glass fra 2019. Hytta har et praktisk toalettrom og dusjrom i uthus. Gulv er belagt med tregulv. Vegg- og himlingsflater belagt med trepanel.
Kjøkken:
Vinkelformet kjøkkeninnredning med lyse, profilerte fronter og benkeplate av laminat. Frittstående komfyr og kjøleskap.
Oppussing
Noe oppussing må påregnes.
Adkomst
Fra Fredrikstad. Følg riksveien til Kirkøy og ta til venstre ved kirken.
Hold til venstre i T-kryss mot Botnekilen. Kjør forbi avgjøring til Botne og følg veien et lite stykke til. På venstre side er det en stor parkeringsplass.
Parker her og følg sti i sydvestlig retning. Hytta ligger ca 2 minutter unna.
Parkering
Det medfølger 1 umerket parkeringsplass på grunneiers tomt. Det foreligger ingen avtale.
Selgers egenerklæringsskjema
Selger har ikke kommentert noen av spørsmålene i egenerklæringsskjema. Vi anbefaler allikevel at egenerklæringsskjema leses.
Tilleggskommentar:
Selger har ikke bebodd eiendommen og har derfor ikke spesifikk kunnskap om den. Det kan i denne sammenheng eksistere feil og skader på eiendommen som ikke er spesifikt opplyst. Kjøper oppfordres derfor til å foreta en særlig grundig besiktigelse, gjerne med bistand av teknisk sakkyndig.
Se hele egenerklæringen fra selger som vedlegg i salgsoppgave.
Tilstandsgrader (TG2/TG3) fra tilstandsrapport
Det foreligger tilstandsrapport fra Anticimex v/Magnus Langvik datert 13.03.2025. Tilstandsrapporten er utarbeidet iht. forskrift til avhendingsloven som trådte i kraft 1.1.2022. Tilstandsrapporten angir avvik for ulike bygningsdeler i form av tilstandsgrader (TG) på en skala fra TG0 til TG3 der TG0 er beste tilstandsgrad. Tilstandsgrader angitt med TG2 kan kreve tiltak. Tilstandsgrader angitt med TG3 angir store, eller alvorlige avvik som krever tiltak utbedring straks, eller innen kort tid. For TG2 og TG3 skal det angis et kostnadsoverslag for det enkelte bygningselement. For bygningsdeler som ikke er undersøkt, eller som ikke har vært tilgjengelig for undersøkelse angis disse med tilstandsgrad TG IU.
I tilstandsrapporten for denne eiendommer er det angitt tilstandsgrader for ulike bygningsdeler. Av disse er 4% bygningselementer gitt TG0, eller 1. 73% (22 enkeltelementer) er gitt tilstandsgrad 2. 19% (2 enkeltelementer) er gitt TG3. Nærmere beskrivelse av disse finnes i tilstandsrapporten.
Det forutsettes at interessenter til eiendommen har lest og satt seg inn i tilstandsrapportens innhold, herunder de respektive bygningselementers tilstandsgrader og begrunnelsen for disse. Det anbefales å rådføre seg med fagfolk slik at den enkelte interessent får rett forståelse av tilstandsgradenes omfang og konsekvens. Tilstandsrapporten utgjør en del av salgsoppgaven.
Oppsummering av avvik med tilstandsgrad 2 (TG2) og tilstandsgrad 3 (TG3) fra vedlagt tilstandsrapport:
Følgende bygningsdeler har fått TG2 (vesentlig avvik) i tilstandsrapporten:
Kjøkken:
-Vannrør: Rørenes alder er ikke kjent. Risiko for skjulte avvik, svekket funksjon, usikker restlevetid eller lignende forhold som utvikles over tid.
-Avløpsrør: Rørenes alder er ikke kjent. Risiko for skjulte avvik, svekket funksjon, usikker restlevetid eller lignende forhold som utvikles over tid.
-Ventilasjon og avtrekk: Ventilatoren ble funksjonstestet på befaringsdagen. Avtrekk ble testet ved hjelp av et papir. Avtrekkseffekten vurderes som ikke tilfredsstillende. Viften hadde en unormal lyd mens den var i gang. Utskiftning/reparasjon bør påregnes.
-Innfelte/gjennomgående installasjoner: Det ble registrert utettheter i diffusjonsperre (plastfolie) ved gjennomføring av ventilasjonsrør fra kjøkkenventilatoren. Dette kan føre til kondensproblematikk. Tiltak anbefales.
-Annet: Det ble registrert spor etter mus i kjøkkeninnredningen. Når sporene har oppstått er ikke kjent.
Øvrige rom:
-Overflater vegger: Det er registrert fuktmerker på karmlister rundt vindu i soverom 1, i vinduskarmer i soverom 2 og 3, samt ved veggventil i soverom 2. Nøyaktig årsak er ikke kjent. Det ble utført fuktmåling med pigg i treverk i og utenfor områdene med fuktmerker. Det ble registrert høye fuktverdier ved veggventil i soverom 2. Målingene viste vektprosent mellom 16 og 20. Mulige årsaker kan være fuktgjennomtrengning fra utsiden eller kondens. Risiko for skjulte skader. Ytterligere undersøkelser anbefales.
-Overflater gulv: Gulvflater bærer generelt preg av slitasje. Det er stedvis registrert knirk.
-Innerdører: Innerdører bærer generelt preg av alder/slitasje.
-Ventilasjon: Ventilasjonsluke i soverom 3 er skadet.
Ildsteder / skorsteiner innvendig. (Omfatter ikke funksjonalitet og innvendig pipeløp):
-Helhetsvurdering: TG2 er satt med bakgrunn i skorsteinens alder for å belyse risiko. Behov for tiltak kan ikke utelukkes. Det er registrert stedvise riss i teglstein og fuger.
Etasjeskiller - 1. etg.:
-Skjevhetsmåling: Det er registrert noe skjevheter i hytten. Forskjellen mellom høyeste og laveste punkt på 2,0 meter er på tilfeldig sted målt til ca. 10 mm i stue og ca. 11 mm i gang. Målingene er foretatt i en eldre bygning og bør ses i den sammenheng. Skjevheter er mer påregnelige i eldre bygninger enn i nye. Årsaken til skjevhetene er ikke vurdert.
Tekniske anlegg, VVS anlegg (Sjekkpunkter utover det som er inkludert i andre rom):
-Vannrør (Sjekkpunkter utover det som er inkludert i andre rom): Rørenes alder er ikke kjent. Risiko for skjulte avvik, svekket funksjon, usikker restlevetid eller lignende forhold som utvikles over tid.
-Avløpsrør. (Sjekkpunkter utover det som er inkludert i andre rom): Rørenes alder er ikke kjent. Risiko for skjulte avvik, svekket funksjon, usikker restlevetid eller lignende forhold som utvikles over tid.
Elektrisk anlegg:
-Forenklet vurdering av det elektriske anlegget: Varmtvannsbereder i frittstående bod er koblet med skjøteledning. Det er ikke fremlagt samsvarserklæring/dokumentasjon for det elektriske anlegget. Med bakgrunn i ovennevnte avvik bør det gjennomføres en utvidet el-kontroll av en kvalifisert elektrofaglig person.
Yttervegger inkl. fasader og konstruksjon:
-Konstruksjon: TG2 er satt med bakgrunn i konstruksjonens alder for å belyse risiko.
-Fasader ink. kledning: Kledningen bærer preg av slitasje spesielt på fasader mot syd og vest. Utskiftninger og vedlikehold bør påregnes.
Dører og vinduer:
-Vinduer: Vinduer er hovedsakelig av eldre dato, og bærer preg av slitasje. Det må forventes høyere varmetap fra disse vinduene sammenlignet med vinduer fra nyere dato. Tiltak bør påregnes.
-Dører: Entrédør og dør til bod/toalettrom er av eldre dato og bærer preg av slitasje. Det må forventes høyere varmetap fra disse dørene sammenlignet med dører fra nyere dato. Entrédøren har treghet i åpne/lukkemekanisme. Boddør kan ikke låses. Dørbladet til boddør og verandadør har kontakt med dørterskel/dørkarm, noe som gjør at døren henger når den åpnes og lukkes. Tiltak bør påregnes.
Yttertak:
-Helhetsvurdering: Taket er inspisert fra bakkeplan og fra toppen av stige. Taket bærer generelt preg av slitasje. Det er ikke etablert beslag mellom undertak og takrenne. Dette medfører økt fuktbelastning på nedre del av undertaket. Forkantbord har høy slitasje. Innfestinger (spiker) har stedvis løsnet noe fra undertaket. Kobling mellom takrenne og nedløp mot sydvest har løsnet. Det er ikke tilgang til inspeksjon av loftsrom mellom flat himling og undertak. Det er registrert stedvise fuktmerker i innvendig himling. Med bakgrunn i dette og konstruksjonens alder kan skjulte skader ikke utelukkes. Det er målt høye fuktverdier i innvendig himling ved gjennomføring av skorstein. Forholdet er vurdert til TG3 i avsnitt "Øvrige rom". Dette indikerer fuktgjennomtrengning fra utsiden. Risiko for skjulte skader. Tak over toalettrom er vurdert til TG3 i avsnitt "Toalettrom". Tiltak bør påregnes.
Terrasser / platting på terreng:
-Helhetsvurdering: Verandaen/ terrassen bærer generelt preg av slitasje. Det er registrert råteskader og løse bord i rekkverk mot sydøst. Trapp tilknyttet verandaen mangler rekkverk. Tiltak bør påregnes.
Utvendige trapper:
-Helhetsvurdering: Trappen bærer generelt preg av slitasje. Det er ikke etablert rekkverk. Tiltak anbefales.
Frittstående byggverk:
-Helhetsvurdering: Boden har ikke vært gjenstand for detaljerte undersøkelser. Overordnet forenklet vurdering er at bygningen bærer generelt preg av slitasje. Det er blant annet registrert råteskader i vegg ved dør. Teknisk anlegg er ikke vurdert.
Følgende bygningsdeler har fått TG3 (store eller alvorlige avvik) i tilstandsrapporten:
Øvrige rom:
-Overflater himling: Det er registrert fuktmerker i himling i soverom, gang og i kjøkken og ved gjennomføring av skorstein. Nøyaktig årsak eller når merkene har oppstått er ikke kjent. Det ble utført fuktmåling med pigg i treverk i og utenfor området med fuktmerker. Det ble registrert høye fuktverdier ved gjennomføring av skorstein. Årsaker kan være utettheter i taktekking rundt skorsteinen og/eller fuktgjennomtrengning fra innvendig pipeløp. Risiko for skjulte skader. Ytterligere undersøkelser og tiltak bør påregnes.
Toalettrom (Ikke våtrom):
-Helhetsvurdering: Helhetsvurdering av tilbygget: Rommets innvendige overflater bærer generelt preg av slitasje. Det er registrert råteskader i himling og i gulvlist, samt i takutstikk og utvendig kledning. Dette skyldes trolig utettheter i taktekkingen. Risiko for skjulte skader. Ytterligere undersøkelser og tiltak bør påregnes. Snurredoen er ikke tilstandsvurdert.
Byggemåte
Hytte over ett plan oppført på pilarer av lettklinkerblokker, betong og naturstein. Bjelkelag i trekonstruksjon. Yttervegger i trekonstruksjon, utvendig kledd med stående og liggende trekledning. Saltak, utvendig tekket med takplater av stål. Verandadør og vinduer med to-lags glass fra 2019. Vinduer med enkle glass fra byggeår.
Tilbygg toalettrom og uthus er ikke byggemeldt.
Tomt
Denne tomten er festet. Punktfeste med en radius på 17,7 meter i henhold til festekontrakt tilsvarer 983. NB Tomten er ikke oppmålt.
Romslig naturtomt bestående av fjell og noe furuvegetasjon.
Festet tomt
Festenummer:18
Bortfester: Aase Eriksen,
Festeavgift pr. år: 4 100
Festeavgift endret dato:01.02.2022
Festekontraktsdato: 01.02.1972
Festekontrakt start dato: 01.02.1972
Festekontrakt utløpsdato: 31.01.2052
Kreves samtykke til overdragelse: NEI.
Det gjøres oppmerksom på at festeavgiften - i utgangspunktet - blir å avregne direkte mellom partene pr. overtakelse.
Ferdigattest/brukstillatelse
Det foreligger ikke ferdigattest eller midlertidig brukstillatelse iflg. kommunen. I henhold til plan- og bygningsloven § 21-10 (5) utstedes det ikke lengre ferdigattest for tiltak det er søkt om før 1/1-98. Dette innebærer at byggverkene lovlig kan brukes og omsettes uten at det foreligger ferdigattest. Det betyr imidlertid ikke at ulovlige bygde tiltak blir lovlige.
Oppvarming / energiforbruk
Boligen er oppvarmet med elektrisitet og vedfyring.
Energikarakter: G - Rød
Energiforbruk foregående år var 4 600 kwh.
Energiforbruket er opplyst av selger og vil variere fra husstand til husstand.
Tekniske installasjoner og VVS
Eiendommen er ikke tilknyttet kommunal eller privat VA-ledning.
Dagens system med sisternevann, som slippes direkte ut på mark er ikke lov.
Økonomi
Beregnet totalpris
Prisantydning kr 1 950 000,-
I tillegg til prisantydning og ev. fellesgjeld, påløper følgende omkostninger:
48 750,00,- (Dokumentavgift)
1,00,- (Tryg Boligkjøperpakke Hytte (Valgfri))
500,00,- (Tingl.gebyr skjøte)
500,00,- (Tingl.gebyr pantedokument)
19 900,00,- (Boligkjøperpakke - selveid bolig/fritid (Valgfri))
_______________________________________________________
2 019 651,- Totalpris inkl. omkostninger og fellesgjeld
_______________________________________________________
Det ovenstående forutsetter at eiendommen selges til prisantydning og at det kun tinglyses ett pantedokument. Det tas forbehold om endringer i offentlige gebyr.
Kommunale avgifter
Kr. 7 389,- for 2025.
Inkludert eiendomsskatt, renovasjon og branntilsyn.
Andre løpende kostnader (vei, vann, feiing m.m.)
Eiendomsskatt
Eiendomsskatten tilsvarer kr. 2 919,- og inngår i kommunale avgifter.
Formuesverdi
Primær formuesverdi kr. 512 279,00.
Sekundær formuesverdi kr. 0,00.
Gjeldende for ligningsåret 2023.
Offentlige forhold
Forsikring
Eiendommen er forsikret i Tryg Forsikring.
Regulering
Eiendommen er ikke regulert.
Eiendommen omfattes av kommuneplan 2019 - 2031 med formål 5200 - LNFR - spredt bolig- fritids eller næringsbebyggelse, 5 - byggegrense.
Rettigheter og heftelser
Eiendommen overdras fri for pengeheftelser. Kommunen har lovbestemt legalpant i eiendommen som sikkerhet for betaling av kommunale gebyr.
Dnr. 303547, tgl. 28.08.1972 - Festekontrakt
Festeforhold
For servitutter eldre enn fradelingsdato og eventuelle arealoppføringer som kan ha betydning for denne matrikkelenhet henvises det til avgivereiendommen. Ta kontakt med megler for mer informasjon.
Konsesjon og odel
Boplikt
Det er ikke boplikt på fritidseiendom. Ved kjøp av denne eiendom må kjøpere signere egenerklæring der man bekrefter at eiendommen skal brukes iht. gjeldende regulering.
Diverse
Løsøre og tilbehør
Eiendommen selges med løsøre inne og ute.
Noen private gjenstander vil bli fjernet.
Overtagelse
Overtagelse skjer etter nærmere avtale og avtales normalt senest i forbindelse med budaksept. Vennligst oppgi ønsket overtagelsesdato i bud.
Om salgsoppgaven
Salgsoppgaven er basert på selgers opplysninger gitt til bygningssakkyndig, eiendomsmegler og opplysninger innhentet fra kommunen, evt. forretningsfører og andre tilgjengelige kilder. Interessenter oppfordres til å undersøke eiendommen godt, gjerne sammen med sakkyndig, og til å lese gjennom fullstendig salgsoppgave med vedlegg før bud inngis. Det er ikke kontrollert om tomtegrensene stemmer med de grenser/gjerde som fysisk er satt. Det kan være avvik fra dagens rombruk/rombenevnelse i forhold til det opprinnelige byggemeldte/godkjente. Salgsoppgaven er lest og godkjent av selger.
Boligselgerforsikring
Selger har i forbindelse med salget tegnet boligselgerforsikring gjennom Anticimex forsikring. Selgers egenerklæringsskjema følger vedlagt salgsoppgaven og interessenter må sette seg inn i dette dokumentet før bud inngis. Boligselgerforsikringen dekker selges ansvar etter avhendingsloven. Dersom kjøper oppdager forhold ved eiendommen som man mener utgjør en mangel, vil Claims handling AS behandle reklamasjonen på vegne av selger. Forsikringsvilkår kan fås ved henvendelse til megler.
Boligkjøperforsikring
Sammen med Tryg har vi skreddersydd boligkjøperpakke slik at du kan være trygg på at du har alle forsikringene du trenger. Enten du har kjøpt hus, leilighet eller hytte. Denne gunstige pakken fra Tryg inkluderer også juridisk hjelp hvis du oppdager feil og mangler ved boligen utover det som er opplyst om.
Boligkjøperpakken inneholder innboforsikring, renteforsikring for situasjoner der kjøper ikke får solgt nåværende bolig, samt en flytteforsikring for alle de tre boligtypene. For hus og hytte omfatter den i tillegg bygningsforsikring hvor kostnader for å reparere eller gjenoppbygge huset ditt er inkludert.
Les mer om forsikringen i produktark for Boligkjøperpakke som ligger vedlagt i salgsoppgaven. Boligkjøperpakken må tegnes senest i forbindelse med kontraktsmøte. Kjøper mottar ingen særskilt faktura for Boligkjøperpakken siden kostnaden det første året legges til oppgjøret for kjøpesummen for boligen. Forsikringen kan deretter forlenges årlig i opp til totalt fem år. Megler/meglerforetak mottar honorar for denne formidlingen.
Kjøpsvilkår
Budgivning
Vi oppfordrer alle til å lese Forbrukerinformasjon om budgivning før bud inngis. Alle bud og budforhøyelser skal inngis skriftlig til megler. I tillegg er megler pålagt å innhente gyldig legitimasjon og signatur fra budgiver før bud kan formidles til selger. Det informeres om at det ikke er angrerett ved kjøp av eiendom og ved aksept av bud er bindende avtale mellom selger og kjøper inngått.
Kravet til legitimasjon og signatur er oppfylt for budgivere som benytter Bank-ID og vi oppfordrer derfor alle til å gi bud elektronisk ved å benytte GI BUD knappen på eiendommens hjemmeside. Eventuelle forhøyelser kan sendes ved å svare direkte på mottatt sms fra meglers system, til megler Henning Hesselberg per e-post henning.hesselberg@stavlund.no eller sms: +47 95 85 01 92. Alle budforhøyelser skal bekreftes av megler.
For at budene skal kunne bli behandlet og videreformidlet skriftlig til alle involverte parter, må alle bud ha en tilstrekkelig lang akseptfrist, jf. eiendomsmeglingsforskriften § 6-3. Selger må også skriftlig akseptere budet før aksept kan formidles til budgiver. Akseptfrist på alle bud skal være minimum 30 minutter, og budforhøyelser må skje i god tid før fristens utløp. Bud som ikke er skriftlig, eller som har kortere akseptfrist enn til kl. 12.00 dagen etter siste annonserte visning, vil ikke bli formidlet til selger. Selger står fritt til å akseptere eller forkaste et hvert bud og er således ikke forpliktet til å akseptere det høyeste budet på eiendommen. Etter at eiendommen er solgt vil kjøper og selger få tilsendt budjournal. Øvrige budgivere kan få utlevert kopi av budjournalen i anonymisert form.
Det gjøres oppmerksom på at budgiver også vil være den som vil stå som kjøper av eiendommen. Dersom man etter at bud er akseptert ønsker å endre hvem som skal stå som eier, forutsetter dette at selger godkjenner en slik endring. Alle involverte parter skal signere kjøpekontrakt og er solidarisk ansvarlig for kjøpet frem til oppgjør er gjennomført. For seksjon/andel/akjse-bolig vil forretningsfører normalt kreve ekstra eierskiftegebyr dersom de har mottatt eierskiftemelding og det i ettertid skal legges til/endre kjøper. Eierskiftemelding sendes normalt fra megler til forretningsfører samme dag som budaskept.
Lov om hvitvasking
Eiendomsmeglingsforetak plikter etter lov om hvitvasking å gjennomføre kontrollhandlinger knyttet til kjøper og selgers identitet og forhold knyttet til gjennomføringen av handelen. Dette omfatter også opplysninger om kundeforholdets formål og tilsikrede art. For kjøper må kontroll av legitimasjon skje senest ved inngåelse av kontrakt. Signering med bankID er regnet som gyldig legitimasjonskontroll. Ved oppdrag hvor juridiske personer (selskap) er part må eiendomsmegler også gjennomføre kontroll av hvilke fysiske personer som kontrollerer selskapet (reelle rettighetshavere). Dersom megler ikke klarer å gjennomføre pålagte kundetiltak må megler avvise kunden og oppdraget. Megler har også plikt å melde forhold som ikke er avklart og fremstår som mistenkelige til Økokrim. Megler kan også i enkelte tilfeller ha plikt til å stanse gjennomføringen av handelen.
Eiendomsmegler plikter å gjennomføre undersøkelser av kjøpers egenkapital og eventuelt andre forhold knyttet til kjøper. Den delen av kjøpesummen som er egenkapital skal innbetales fra kjøpers konto i norsk finansinstitusjon.
Salgsbetingelser
Eiendommen skal overleveres kjøper i tråd med det som er avtalt. Det er viktig at kjøper setter seg grundig inn i alle salgsdokumentene, herunder salgsoppgave, tilstandsrapport og selgers egenerklæring. Kjøper anses kjent med forhold som er tydelig beskrevet i salgsdokumentene. Forhold som er beskrevet i salgsdokumentene kan ikke påberopes som mangler. Dette gjelder uavhengig av om kjøper har lest dokumentene. Alle interessenter oppfordres til å undersøke eiendommen nøye, gjerne sammen med fagkyndig før bud inngis. Kjøper som velger å kjøpe usett kan ikke gjøre gjeldende som mangel noe han burde blitt kjent med ved undersøkelsen.
Dersom det er behov for avklaringer, anbefaler vi at kjøper rådfører seg med eiendomsmegler eller en bygningssakyndig før det legges inn bud.
Hvis eiendommen ikke er i samsvar med det kjøperen må kunne forvente ut ifra alder, type og synlig tilstand, kan det være en mangel. Det samme gjelder hvis det er holdt tilbake eller gitt uriktige opplysninger om eiendommen og dette har virket inn på avtalen. En bolig som har blitt brukt i en viss tid, har vanligvis blitt utsatt for slitasje og skader kan ha oppstått. Slik bruksslitasje må kjøper regne med, og det kan avdekkes enkelte forhold etter overtakelse som nødvendiggjør utbedringer. Normal slitasje og skader som nødvendiggjør utbedring, er innenfor hva kjøper må forvente og vil ikke utgjøre en mangel.
Boligen kan ha en mangel dersom det er avvik mellom opplyst og faktisk areal, forutsatt at avviket er på 2% eller mer og minimum 1 kvm.
Ved beregning av et eventuelt prisavslag eller erstatning må kjøper selv dekke tap/kostnader opptil et beløp på kr 10 000 (egenandel).
Dersom kjøper ikke er forbruker selges eiendommen som den er , og selgers ansvar er da begrenset jf. avhl. § 3-9, 2. pktm. Informasjon om kjøpers undersøkelsesplikt, herunder oppfordringen om å undersøke eiendommen nøye, gjelder også for kjøpere som ikke anses som forbrukere.
Eiendomsmegler sin standardkontrakt inneholder bl.a. bestemmelser om at dersom det foreligger vesentlig mislighold, har selger rett til å heve etter 30 dager fra avtalt betalingstid. Kjøper aksepterer dette som bindende for seg.
Det forutsettes at hjemmel til eiendommen overføres til kjøper. Dersom dette ikke er ønskelig må det tas forbehold i budet.
Lov om avhending av fast eigedom (avhendingslova)
Frivillig salg av fast eiendom reguleres av Lov om avhending av fast eiendom av 3. juli 1992 nr. 93.
Vedlegg til salgsoppgave og kjøpekontrakt
Vedlagt i salgsoppgaven følger egenerklæring selger, tilstandsrapport, kommunale opplysninger (f. eks reguleringskart med bestemmelser), informsajon fra forretningsfører (gjelder kun sameie, borettslag og aksjelag), energiattest mm. Alle interessenter forutsettes å ha satt seg inn i salgsoppgave med vedlegg før bud inngis. Ta gjerne kontakt med megler dersom du ønsker utlevert dine egne kopier av dokumentene.
Det gjøres oppmerksom på at STAVLUND AS sine standard kjøpekontrakter blir benyttet i handelen, dersom det ikke avtales noe annet før handel har kommet i stand.
Finansiering
Vi samarbeider med Sparebanken Øst som de tilbyr gode betingelser til våre kunder. Kontakt din megler om dette og vi setter deg i kontakt med finansiell rådgiver. Meglerforetaket mottar ikke honorar ved formidling av finansielle tjenester.
Behandling av personopplysninger
Det gjøres oppmerksom på at foretaket behandler personopplysninger og all behandling skjer iht. personvernregelverket. Meglerforetaket behandler kun personopplysninger som er nødvendig for å gjennomføre oppdraget. Det gjøres oppmerksom på at vi deler dine personopplysninger med offentlige myndigheter i den utstrekning det er nødvendig og med virksomheter som tilbyr tjenester for gjennomføring av oppdraget. For mer informasjon se personvernerklæring på www.partners.no.
Om oppdraget
Eier
Eier er Karsten Gerdrup.
Adresse, matrikkel og oppdragsnummer
Eiendommens adresse er Reffsfjellet 3.
Matrikkel tilhørende eiendommen: gnr. 16, bnr. 1, fnr. 18 i Hvaler.
Vårt oppdragsnummer er 192250010.
Megler og meglers vederlag
Følgende er avtalt om meglers vederlag, og skal betales av selger:
Provisjon 2,200 % av salgssummen inkl. mva (minimum 45 000 inkl. mva)
Tilrettelegging : 9 750,00
Markedpakke Premium : 19 900,00
www.stavlund.no: 750,00
Dersom handel ikke kommer i stand eller oppdraget sies opp, har oppdragstaker krav på rimelig vederlag for medgått tid/utført arbeid og avtalte utgifter (utgifter til påløpte visninger, innhenting av opplysninger, markedspakke og tilrettelegging), samt eventuelle utlegg. Alle priser er inkl. mva.
Ansvarlig megler er Henning Hesselberg / +47 95 85 01 92/ henning.hesselberg@stavlund.no.
Salgsoppgaven beskriver vesentlig og lovpålagt informasjon om eiendommen
Se komplett salgsoppgaveNærområdet
STAVLUND AS
Annonseinformasjon
| FINN-kode | 397843656 |
|---|---|
| Sist endret | 26. mai 2025 15:24 |
| Referanse | 192250010 |
Annonsene kan være mangelfulle i forhold til lovpålagt opplysningsplikt. Før bindende avtale inngås oppfordres interessenter til å innhente komplett informasjon fra meglerforetaket, selger eller utleier.




















































