Bildegalleri

Eiendomsmegler Norge ved Kristian Lossius har gleden av å ønske deg velkommen til Kirkeveien 4!
Inaktiv
Lund
En stor 5-roms selveier beliggende i 3. etg. Flott utsikt, romslig, solrik balkong og garasje i bakgård.
Prisantydning7 250 000 kr
Nøkkelinfo
- Boligtype
- Leilighet
- Eieform
- Eier (Selveier)
- Soverom
- 3
- Internt bruksareal
- 148 m² (BRA-i)
- Bruksareal
- 154 m²
- Eksternt bruksareal
- 6 m² (BRA-e)
- Balkong/Terrasse
- 17 m² (TBA)
- Etasje
- 3
- Byggeår
- 1978
- Rom
- 5
- Tomteareal
- 622 m² (eiet)
Fasiliteter
Balkong/Terrasse
Garasje/P-plass
Heis
Peis/Ildsted
Rolig
Sentralt
Utsikt
Turterreng
Om boligen
Eiendomsmegler Norge ved Kristian Lossius har gleden av å ønske deg velkommen til Kirkeveien 4.
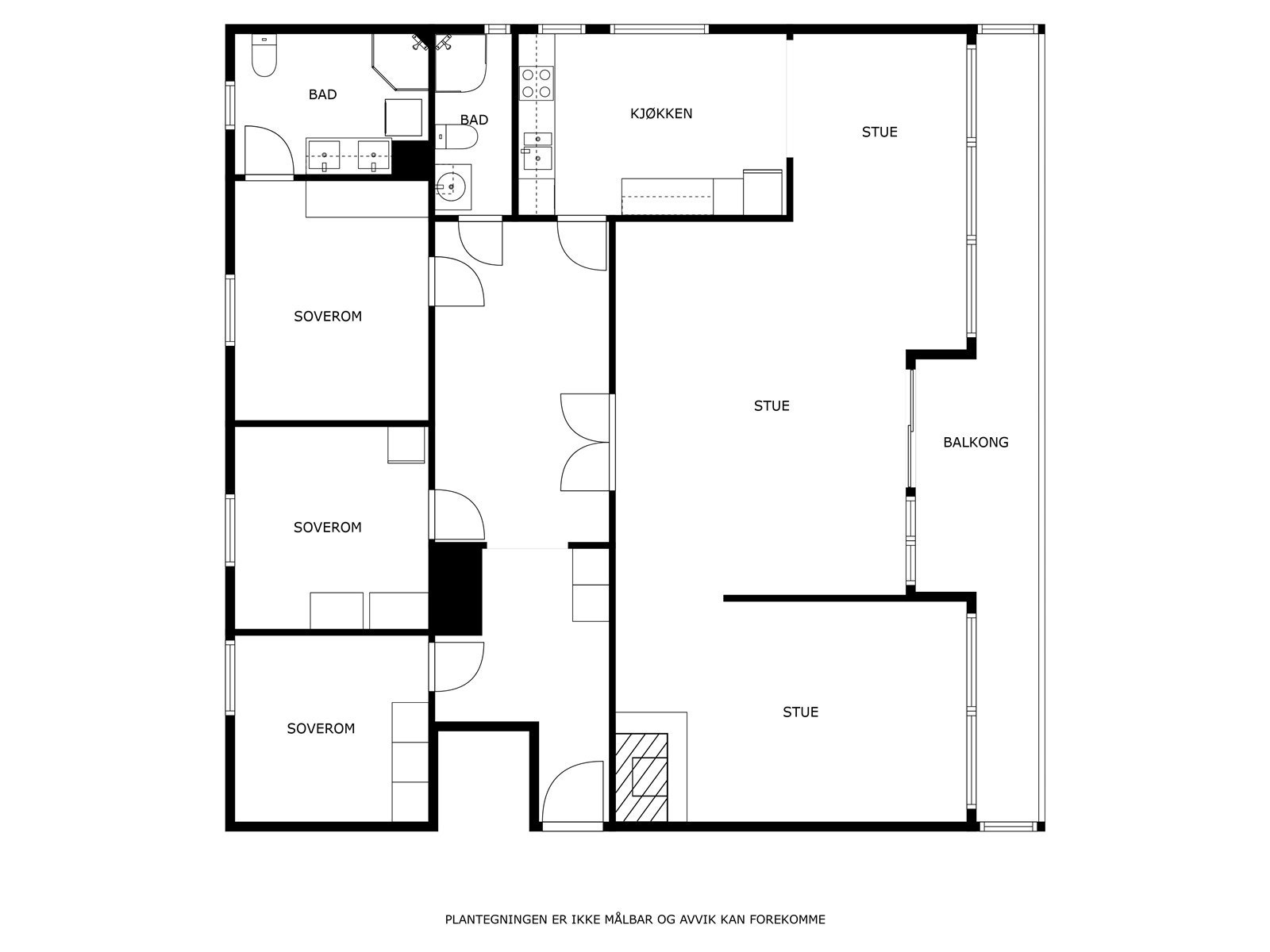
Gang/entrè med plass til å henge av seg ytterklær og sko. Plass til klesskap. Romslig mellomgang. Inngang til stue med god plass til sofagruppe eller spisebord. Utgang til stor solrik balkong med flott utsikt. Stue nr. 2 med peis. Rikelig med vindusflater mot Kirkeveien. Fra spisestuen er det inngang til kjøkken. Kjøkken med mørke malte, profilerte fronter. Fra hovedsoverom er det inngang til flislagt bad med varme i gulv. Bad nr. 2. i forlengelse av mellomgang har også fliser og varmekabler i gulv. Totalet har leiligheten 3 soverom som vender ut mot bakgård.
Medfølger en bod i kjeller.
Gang/entrè med plass til å henge av seg ytterklær og sko. Plass til klesskap. Romslig mellomgang. Inngang til stue med god plass til sofagruppe eller spisebord. Utgang til stor solrik balkong med flott utsikt. Stue nr. 2 med peis. Rikelig med vindusflater mot Kirkeveien. Fra spisestuen er det inngang til kjøkken. Kjøkken med mørke malte, profilerte fronter. Fra hovedsoverom er det inngang til flislagt bad med varme i gulv. Bad nr. 2. i forlengelse av mellomgang har også fliser og varmekabler i gulv. Totalet har leiligheten 3 soverom som vender ut mot bakgård.
Medfølger en bod i kjeller.
NB: Knappen for å vise hele beskrivelsen har kun en visuell effekt.
NB: Knappen for å vise hele beskrivelsen har kun en visuell effekt.
Salgsoppgaven beskriver vesentlig og lovpålagt informasjon om eiendommen
Se komplett salgsoppgaveNyttige lenker
Nærområdet
Eiendomsmegler Norge Kristiansand
Best der du bor
Annonsene kan være mangelfulle i forhold til lovpålagt opplysningsplikt. Før bindende avtale inngås oppfordres interessenter til å innhente komplett informasjon fra meglerforetaket, selger eller utleier.






































