Bildegalleri

Nordvik Tønsberg v/Jørgen Nyhus har gleden av å presentere Dukenveien 29C, en fantastisk eiendom med umiddelbar nærhet til sjøen! (Foto: Fotograf Magik).
Solgt
Nøtterøy / Duken
Klassisk og tiltalende villa m/bla 3 sov, 2 stuer og 2 bad | Sjøutsikt og idyllisk m/umiddelbar nærhet til sjøen
Prisantydning6 690 000 kr
Nøkkelinfo
- Boligtype
- Enebolig
- Eieform
- Eier (Selveier)
- Soverom
- 3
- Bruksareal
- 207 m²
- Byggeår
- 1928
- Energimerking
- Rom
- 4
- Tomteareal
- 655 m² (eiet)
Fasiliteter
Balkong/Terrasse
Barnevennlig
Hage
Kjæledyr tillatt
Ingen gjenboere
Kabel-TV
Offentlig vann/kloakk
Parkett
Peis/Ildsted
Rolig
Utsikt
Bademulighet
Turterreng
Om boligen
Nordvik Tønsberg v/Jørgen Nyhus har gleden av å presentere Dukenveien 29C, en klassisk og flott villa hvor det moderne og klassiske kombineres til det fulle! Her har man bevart husets sjel og egenart og kombinert det med tidsriktige og smakfulle fargevalg!
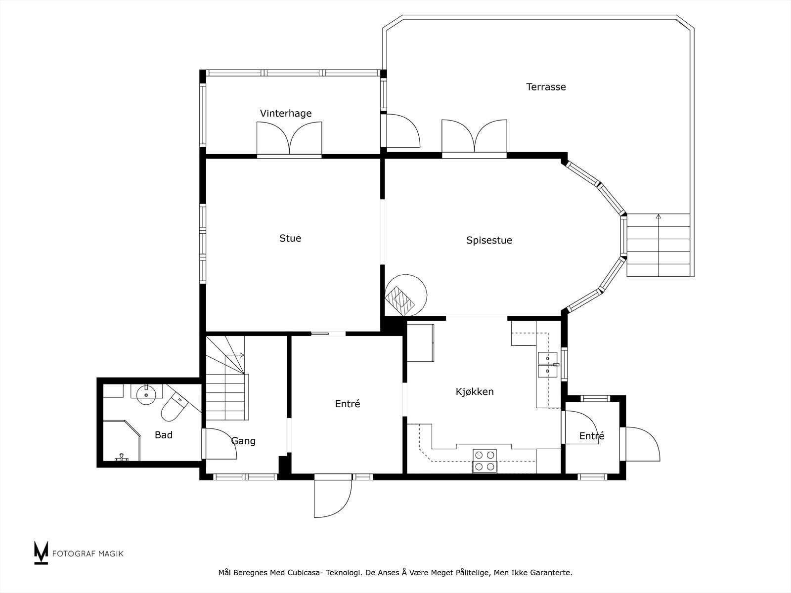
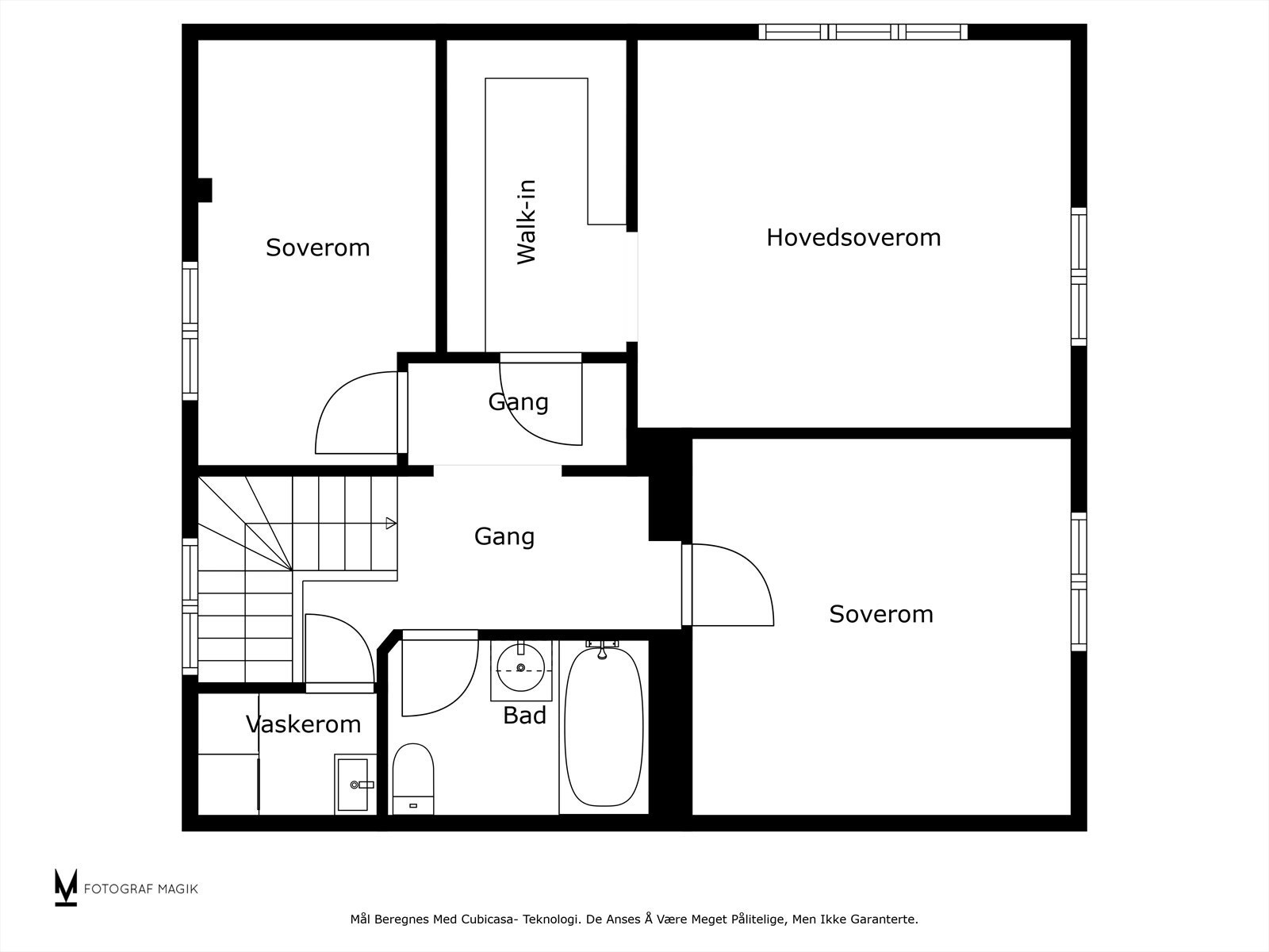
Eneboligen har en praktisk og barnevennlig planløsning, innredet m/bl.a. 3 soverom og 2 bad Videre danner de to stuene og det innholdsrike kjøkkenet en sosial romløsning, hvor de store vindusflater slipper inn både utsikt og naturlig lys!
Meget hyggelig og pent opparbeidet eiertomt m/bl.a. solrike uteplasser, plenarealer, steinlagt inngangsparti og gruslagt gårdsplass.
Eiendommen er beliggende i et av Nøtterøys mest ettertraktede boligområder på Duken m/sjøutsikt, umiddelbar nærhet til sjøen, småbåthavn og bademuligheter.
Eneboligen har en praktisk og barnevennlig planløsning, innredet m/bl.a. 3 soverom og 2 bad Videre danner de to stuene og det innholdsrike kjøkkenet en sosial romløsning, hvor de store vindusflater slipper inn både utsikt og naturlig lys!
Meget hyggelig og pent opparbeidet eiertomt m/bl.a. solrike uteplasser, plenarealer, steinlagt inngangsparti og gruslagt gårdsplass.
Eiendommen er beliggende i et av Nøtterøys mest ettertraktede boligområder på Duken m/sjøutsikt, umiddelbar nærhet til sjøen, småbåthavn og bademuligheter.
NB: Knappen for å vise hele beskrivelsen har kun en visuell effekt.
NB: Knappen for å vise hele beskrivelsen har kun en visuell effekt.
Salgsoppgaven beskriver vesentlig og lovpålagt informasjon om eiendommen
Se komplett salgsoppgaveNyttige lenker
Nærområdet
Nordvik Tønsberg
Annonseinformasjon
| FINN-kode | 398926720 |
|---|---|
| Sist endret | 09. mars 2026 13:54 |
| Referanse | 25-0096/22 |
Annonsene kan være mangelfulle i forhold til lovpålagt opplysningsplikt. Før bindende avtale inngås oppfordres interessenter til å innhente komplett informasjon fra meglerforetaket, selger eller utleier.





















































