Bildegalleri

Velkommen til Kunterudveien 13!
Solgt
Linneslia
Pen enebolig i kjede med 3 etasjer. Flotte uteplasser m/sen kveldssol & fjordutsikt. Gårdsplass & garasje. Barnevennlig!
Prisantydning5 000 000 kr
Nøkkelinfo
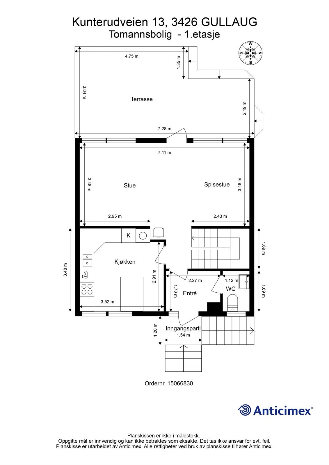
- Boligtype
- Tomannsbolig
- Eieform
- Eier (Selveier)
- Soverom
- 3
- Internt bruksareal
- 148 m² (BRA-i)
- Bruksareal
- 160 m²
- Eksternt bruksareal
- 12 m² (BRA-e)
- Balkong/Terrasse
- 46 m² (TBA)
- Etasje
- 3
- Byggeår
- 1977
- Energimerking
- E - Oransje
- Rom
- 4
- Tomteareal
- 229 m² (eiet)
Fasiliteter
Balkong/Terrasse
Barnevennlig
Garasje/P-plass
Hage
Kjæledyr tillatt
Offentlig vann/kloakk
Parkett
Peis/Ildsted
Rolig
Utsikt
Turterreng
Om boligen
Pen enebolig i kjede med 3 etasjer.
- Lys stue med peisovn og luft-til-luft varmepumpe
- Pent kjøkken med fronter fra 2021 og hvitevarer fra 2018-2022
- Pent flislagt bad fra 2013 med regnfallsdusj og gulvvarme
- Ekstra wc-rom i 1. etg og separat vaskerom i kjeller
- 3 romslige soverom i 2. etg med skyvedørsgarderobe
- Vestvendt veranda på ca. 19 kvm med fin utsikt mot fjorden
- Lun vestvendt terrasse på ca. 25 kvm og skjermet hage
- Parkering ved boligen med el-billader (2022) og disponibel garasjeplass
- Attraktiv beliggenhet i Linneslia som ligger på Liers solside (sen kveldssol i sommerhalvåret)
- Stille og rolig boligfelt som egner seg godt for barn
- Kort gangavstand til kommunal lekeplass og flotte turområder
Velkommen til visning!
NB: Knappen for å vise hele beskrivelsen har kun en visuell effekt.
NB: Knappen for å vise hele beskrivelsen har kun en visuell effekt.
Salgsoppgaven beskriver vesentlig og lovpålagt informasjon om eiendommen
Se komplett salgsoppgaveNyttige lenker
Nærområdet
Krogsveen Drammen
Verdien av en god megler.
Annonseinformasjon
| FINN-kode | 399075995 |
|---|---|
| Sist endret | 03. apr. 2025 10:24 |
| Referanse | KR20.255 |
Annonsene kan være mangelfulle i forhold til lovpålagt opplysningsplikt. Før bindende avtale inngås oppfordres interessenter til å innhente komplett informasjon fra meglerforetaket, selger eller utleier.
















































