Bildegalleri

Kristoffer Eastwood i Nordvik presenterer Rådhusgaten 4!
Solgt
Tyholmen
Klassisk og eksklusiv leilighet med sjøutsikt - P-plass og tilgang til terrasse - 3 sov, 2 bad - Heis - Plassbygde løsn.
Prisantydning8 750 000 kr
Nøkkelinfo
- Boligtype
- Leilighet
- Eieform
- Eier (Selveier)
- Soverom
- 3
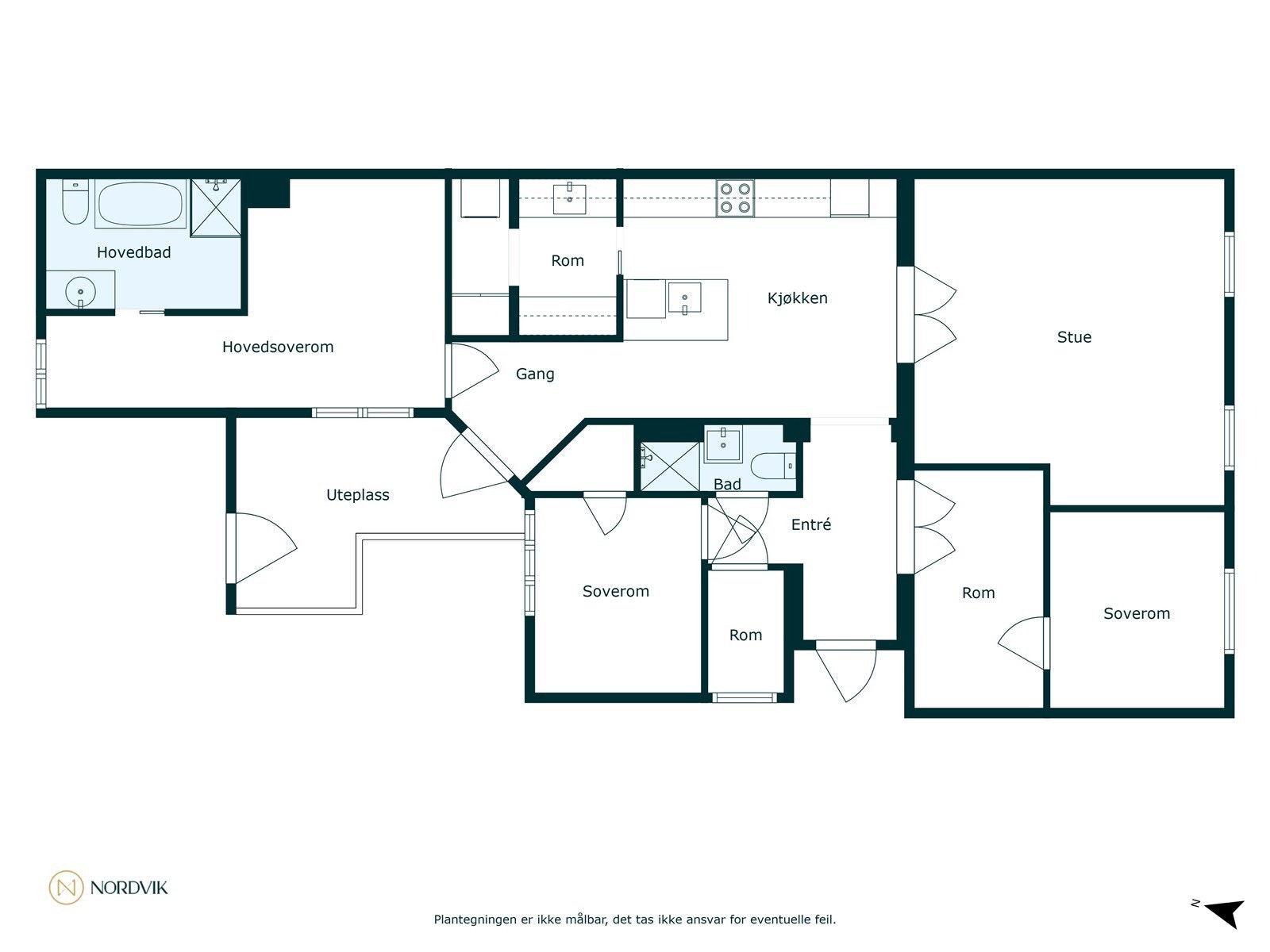
- Internt bruksareal
- 115 m² (BRA-i)
- Bruksareal
- 115 m²
- Etasje
- 1
- Byggeår
- 1886
- Energimerking
- G - Oransje
- Rom
- 5
- Tomteareal
- 319 m² (eiet)
Fasiliteter
Balkong/Terrasse
Garasje/P-plass
Heis
Parkett
Rolig
Sentralt
Utsikt
Om boligen
Elegant leilighet midt i sentrum, tilbaketrukket fra støy. Her får du en perfekt kombinasjon mellom bylivet og sørlandsidyll. Morgenbadet kan gjøres rett fra bryggekanten, eller fra bystranda. Leiligheten ligger i en ærverdig bygård med moderne løsninger som heis, terrasse og vannbåren varme. Leiligheten har blitt omfattende ombygd og betydelig påkostet i 2016/17, hvor det har vært fokus på smarte/ praktiske løsninger i alle rom og høy kvalitet. Innredninger og kjøkken er levert av Grindberg og Vegårshei Trevare.
- Praktisk spiskammers/ grovkjøkken og vaskerom
- Parkering i p-hus ca. 50 steg unna
- Plassbygd kjøkken og garderober
- Kommunale båtplasser i området
- Luftig takhøyde opptil 3,05m
- Vannbåren varme i alle gulv
- 3 soverom, 2 bad
- Heis
NB: Knappen for å vise hele beskrivelsen har kun en visuell effekt.
NB: Knappen for å vise hele beskrivelsen har kun en visuell effekt.
Salgsoppgaven beskriver vesentlig og lovpålagt informasjon om eiendommen
Se komplett salgsoppgaveNyttige lenker
Nærområdet
Nordvik Arendal
Vi vet hva det er verdt
Annonseinformasjon
| FINN-kode | 399893819 |
|---|---|
| Sist endret | 08. sep. 2025 15:14 |
| Referanse | 39-0021/25 |
Annonsene kan være mangelfulle i forhold til lovpålagt opplysningsplikt. Før bindende avtale inngås oppfordres interessenter til å innhente komplett informasjon fra meglerforetaket, selger eller utleier.



















































