Bildegalleri

Velkommen til Indra Rabbavika 25E - Presentert av Eiendomsmegler Vest v/Pål Kristian Fogge.
Solgt
AUSTEVOLL/RABBEN - Rorbu ved sjø og gode solforhold. 2 soverom, hems og stort allrom/naust. Brygge med båtplass.
Prisantydning2 800 000 kr
- Omkostninger
- 88 590 kr
- Totalpris
- 2 888 590 kr
- Kommunale avg.
- 12 008 kr per år
Nøkkelinfo
- Beliggenhet
- Ved sjøen
- Boligtype
- Hytte
- Eieform
- Eier (Selveier)
- Internt bruksareal
- 82 m² (BRA-i)
- Bruksareal
- 82 m²
- Tomteareal
- 69 m² (eiet)
- Byggeår
- 2003
- Soverom
- 2
- Rom
- 3
- Overtakelse
- Overtagelsesdato skal fastsettes før aksept av bud. Ved spesielle ønsker skal dette fremkomme som forbehold i evt. bud.
Om boligen
Velkommen til Indra Rabbavika 25E!
Eiendommen ligger ved sjø i Rabben båthavn på Selbjørn i Austevoll. Eiendommen ligger sør/vestvendt til og har gode solforhold. Det er nydelig sjøutsikt fra eiendommen. Det er ca. 5 minutter kjøring til Bekkjarvik med godt utvalg av butikker. I tillegg finner du Bekkjarvik Gjestgiveri, en populær gjestehavn for båtturister samt et yrende liv i sommermånedene. Havneområdet ligger lunt til i forhold til vær og vind. Gode fiskemuligheter i umiddelbar nærhet og den flotte skjærgården i Austevoll er like rundt hjørnet. Det er ca. 1.5 timers reisetid fra Bergen.
Rorbuen inneholder følgende:
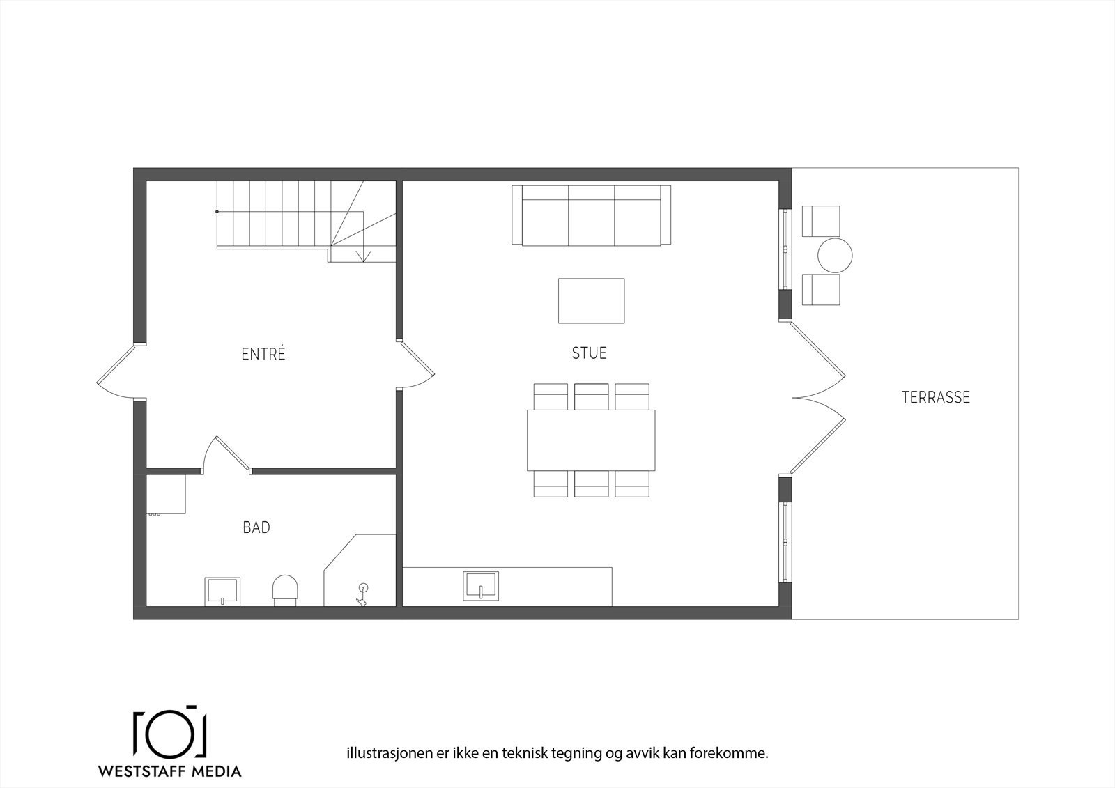
1. etasje: Hall med trapp, bad/vaskerom og allrom/naust.
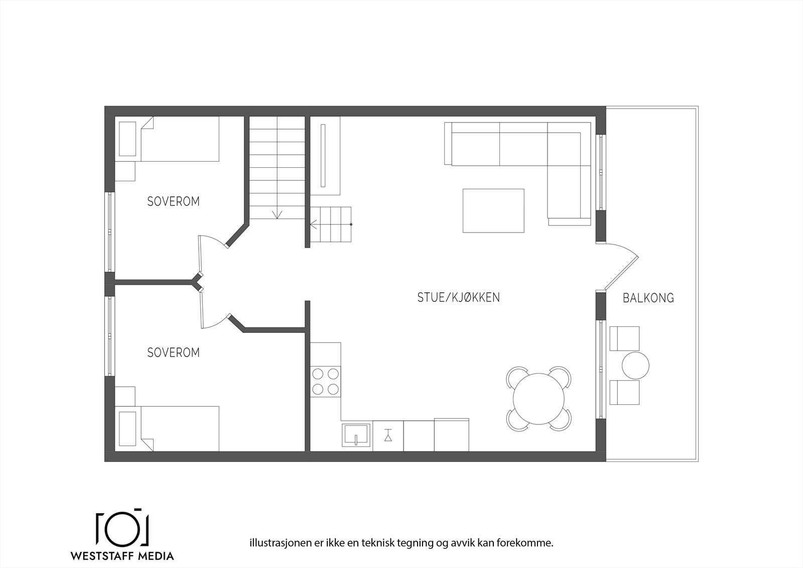
2. etasje: Stue/kjøkken og 2 soverom.
Hems.
Brygge med båtplass (ikke dokumentasjon på anlegget.)
Eiendommen ligger ved sjø i Rabben båthavn på Selbjørn i Austevoll. Eiendommen ligger sør/vestvendt til og har gode solforhold. Det er nydelig sjøutsikt fra eiendommen. Det er ca. 5 minutter kjøring til Bekkjarvik med godt utvalg av butikker. I tillegg finner du Bekkjarvik Gjestgiveri, en populær gjestehavn for båtturister samt et yrende liv i sommermånedene. Havneområdet ligger lunt til i forhold til vær og vind. Gode fiskemuligheter i umiddelbar nærhet og den flotte skjærgården i Austevoll er like rundt hjørnet. Det er ca. 1.5 timers reisetid fra Bergen.
Rorbuen inneholder følgende:
1. etasje: Hall med trapp, bad/vaskerom og allrom/naust.
2. etasje: Stue/kjøkken og 2 soverom.
Hems.
Brygge med båtplass (ikke dokumentasjon på anlegget.)
NB: Knappen for å vise hele beskrivelsen har kun en visuell effekt.
NB: Knappen for å vise hele beskrivelsen har kun en visuell effekt.
Salgsoppgaven beskriver vesentlig og lovpålagt informasjon om eiendommen
Se komplett salgsoppgaveNyttige lenker
Nærområdet
Eiendomsmegler Norge Fana
Best der du bor
Annonseinformasjon
| FINN-kode | 399938420 |
|---|---|
| Sist endret | 04. juli 2025 15:04 |
| Referanse | 14250046 |
Annonsene kan være mangelfulle i forhold til lovpålagt opplysningsplikt. Før bindende avtale inngås oppfordres interessenter til å innhente komplett informasjon fra meglerforetaket, selger eller utleier.


















































