Bildegalleri

Velkommen Dyrefaret 1 i Slemmestad
Solgt
Slemmestad
Flott familiebolig med flotte uteområder - 3 garasjer - God og sentral beliggenhet - 4 soverom og 2 stuer
Prisantydning7 500 000 kr
Nøkkelinfo
- Boligtype
- Enebolig
- Eieform
- Eier (Selveier)
- Soverom
- 4
- Internt bruksareal
- 163 m² (BRA-i)
- Bruksareal
- 231 m²
- Eksternt bruksareal
- 68 m² (BRA-e)
- Balkong/Terrasse
- 87 m² (TBA)
- Byggeår
- 1996
- Energimerking
- D - Gul
- Rom
- 9
- Tomteareal
- 675 m² (eiet)
Fasiliteter
Balkong/Terrasse
Barnevennlig
Garasje/P-plass
Hage
Offentlig vann/kloakk
Parkett
Peis/Ildsted
Rolig
Sentralt
Om boligen
Flott enebolig med god planløsning og attraktiv beliggenhet. Det er stor og åpen stue med flere møbleringsmuligheter. Fra stuen er det utgang til en meget koselig og skjermet uteplass og utestue. Det er 4 sov som holder en god størrelse. Boligen har også et stort og moderne kjøkken og 2 bad samt et vaskerom. Her får du også en dobbel garasje og en garasje i tilknytning til huset. Gangavstand til Rortunet kjøpesenter som åpnet i oktober 2021, samt buss og hurtigbåtforbindelse til Oslo fra Slemmestad brygge.
- 2 bad og eget vaskerom
- 4 soverom og 2 stuer
- 3 garasjeplasser
- Solrik eiendom med koselige uteplasser inkl utestue - Sol fra morgen til sen kveld
- Kort vei til skoler
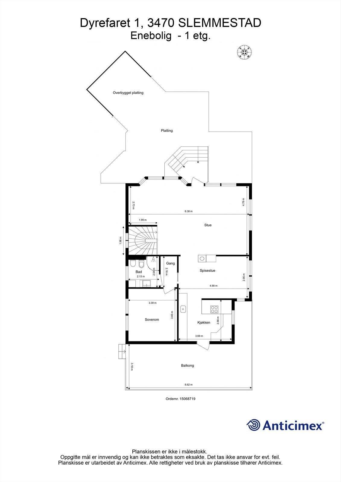
Inneholder
U.etg: Entré, bad, vaskerom, kontor, kott og 4 soverom
1.etg: Gang, kjøkken, bad, stue og soverom
- 2 bad og eget vaskerom
- 4 soverom og 2 stuer
- 3 garasjeplasser
- Solrik eiendom med koselige uteplasser inkl utestue - Sol fra morgen til sen kveld
- Kort vei til skoler
Inneholder
U.etg: Entré, bad, vaskerom, kontor, kott og 4 soverom
1.etg: Gang, kjøkken, bad, stue og soverom
NB: Knappen for å vise hele beskrivelsen har kun en visuell effekt.
NB: Knappen for å vise hele beskrivelsen har kun en visuell effekt.
Salgsoppgaven beskriver vesentlig og lovpålagt informasjon om eiendommen
Se komplett salgsoppgaveNyttige lenker
Nærområdet
Krogsveen Røyken
Verdien av en god megler.
Annonseinformasjon
| FINN-kode | 400007522 |
|---|---|
| Sist endret | 04. aug. 2025 08:08 |
| Referanse | KR16.2487 |
Annonsene kan være mangelfulle i forhold til lovpålagt opplysningsplikt. Før bindende avtale inngås oppfordres interessenter til å innhente komplett informasjon fra meglerforetaket, selger eller utleier.











































