Bildegalleri

Velkommen til Rødbergveien 13A - Presentert av Krogsveen v/Hallvard Taasen
Solgt
Årvoll/Tonsenhagen
Rålekker og gjennomgående 3-roms m/ sørvendt balkong og god beliggenhet. Kort vei til kollektivtransport. Markanært.
Prisantydning4 950 000 kr
Nøkkelinfo
- Boligtype
- Leilighet
- Eieform
- Andel
- Soverom
- 2
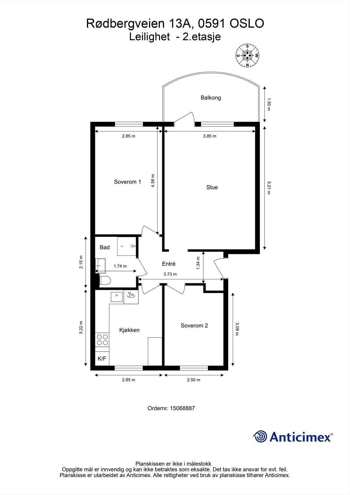
- Internt bruksareal
- 66 m² (BRA-i)
- Bruksareal
- 74 m²
- Eksternt bruksareal
- 8 m² (BRA-e)
- Balkong/Terrasse
- 5 m² (TBA)
- Etasje
- 2
- Byggeår
- 1953
- Energimerking
- F - Mørkegrønn
- Rom
- 3
- Tomteareal
- 29 456 m² (eiet)
Fasiliteter
Alpinanlegg
Balkong/Terrasse
Barnevennlig
Bredbåndstilknytning
Fellesvaskeri
Kjæledyr tillatt
Ingen gjenboere
Kabel-TV
Offentlig vann/kloakk
Rolig
Sentralt
Utsikt
Vaktmester-/vektertjeneste
Bademulighet
Fiskemulighet
Turterreng
Om boligen
Velkommen til Rødbergveien 13A. Denne flotte, gjennomgående 3-roms leiligheten kan bli din!
Leiligheten holder god standard og ble betydelig oppgradert i 2023/24 med nymalte vegger i stue, gang og soverom, ny baderomsinnredning fra 2023 og nytt terrassegulv på balkong som ble beiset i 2024. Planløsningen er godt fordelt med entré, separat kjøkken, stue med utgang til balkong, bad og 2 soverom. Det er godt med skapplass i leiligheten, og godt med bodplass i kjeller og på loftet.
Årvoll Øst borettslag er et godt drevet borettslag, med god oppgraderingshistorikk.
- 3-roms med 2 store soverom
- Gode kollektivforbindelser
- Solrik, sørvendt balkong
- Bad oppgradert i 2023
- Sentral beliggenhet
- Nymalt i 2023
- Rolig området
- Høy standard
Leiligheten holder god standard og ble betydelig oppgradert i 2023/24 med nymalte vegger i stue, gang og soverom, ny baderomsinnredning fra 2023 og nytt terrassegulv på balkong som ble beiset i 2024. Planløsningen er godt fordelt med entré, separat kjøkken, stue med utgang til balkong, bad og 2 soverom. Det er godt med skapplass i leiligheten, og godt med bodplass i kjeller og på loftet.
Årvoll Øst borettslag er et godt drevet borettslag, med god oppgraderingshistorikk.
- 3-roms med 2 store soverom
- Gode kollektivforbindelser
- Solrik, sørvendt balkong
- Bad oppgradert i 2023
- Sentral beliggenhet
- Nymalt i 2023
- Rolig området
- Høy standard
NB: Knappen for å vise hele beskrivelsen har kun en visuell effekt.
NB: Knappen for å vise hele beskrivelsen har kun en visuell effekt.
Salgsoppgaven beskriver vesentlig og lovpålagt informasjon om eiendommen
Se komplett salgsoppgaveNyttige lenker
Nærområdet
Krogsveen Årvoll
Verdien av en god megler.
Annonseinformasjon
| FINN-kode | 400280439 |
|---|---|
| Sist endret | 07. aug. 2025 11:58 |
| Referanse | KR39.2554 |
Annonsene kan være mangelfulle i forhold til lovpålagt opplysningsplikt. Før bindende avtale inngås oppfordres interessenter til å innhente komplett informasjon fra meglerforetaket, selger eller utleier.































