Bildegalleri

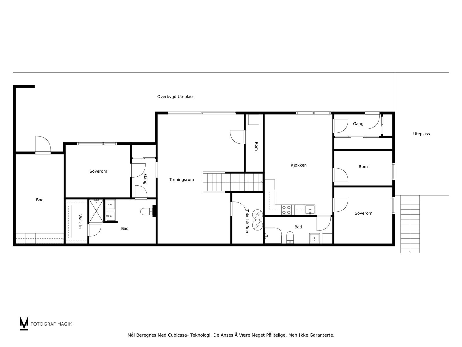
Boligen strekker seg over to plan hvor utleiedelen i underetasjen måler 54 kvm.
Solgt
Skjeggestadåsen
Rålekker og meget romslig funkisbolig på 337 kvm. | Utleiedel med 2 sov | Nydelig utsikt og solforhold | Barnevennlig!
Prisantydning8 990 000 kr
Nøkkelinfo
- Boligtype
- Enebolig
- Eieform
- Eier (Selveier)
- Soverom
- 6
- Internt bruksareal
- 283 m² (BRA-i)
- Bruksareal
- 337 m²
- Eksternt bruksareal
- 54 m² (BRA-e)
- Balkong/Terrasse
- 111 m² (TBA)
- Byggeår
- 2014
- Energimerking
- B - Oransje
- Rom
- 7
- Tomteareal
- 838 m² (eiet)
Fasiliteter
Balkong/Terrasse
Barnevennlig
Bredbåndstilknytning
Garasje/P-plass
Golfbane
Hage
Offentlig vann/kloakk
Parkett
Peis/Ildsted
Rolig
Sentralt
Utsikt
Turterreng
Lademulighet
Balansert ventilasjon
Om boligen
Nordvik Tønsberg V/Jørgen Nyhus presenterer Sigurd Jarls vei 14, en perle av en eiendom som kombinerer egenart og det moderne til det fulle! Høytliggende og flott eiendom m/panoramautsikt og solforhold av de sjeldne!
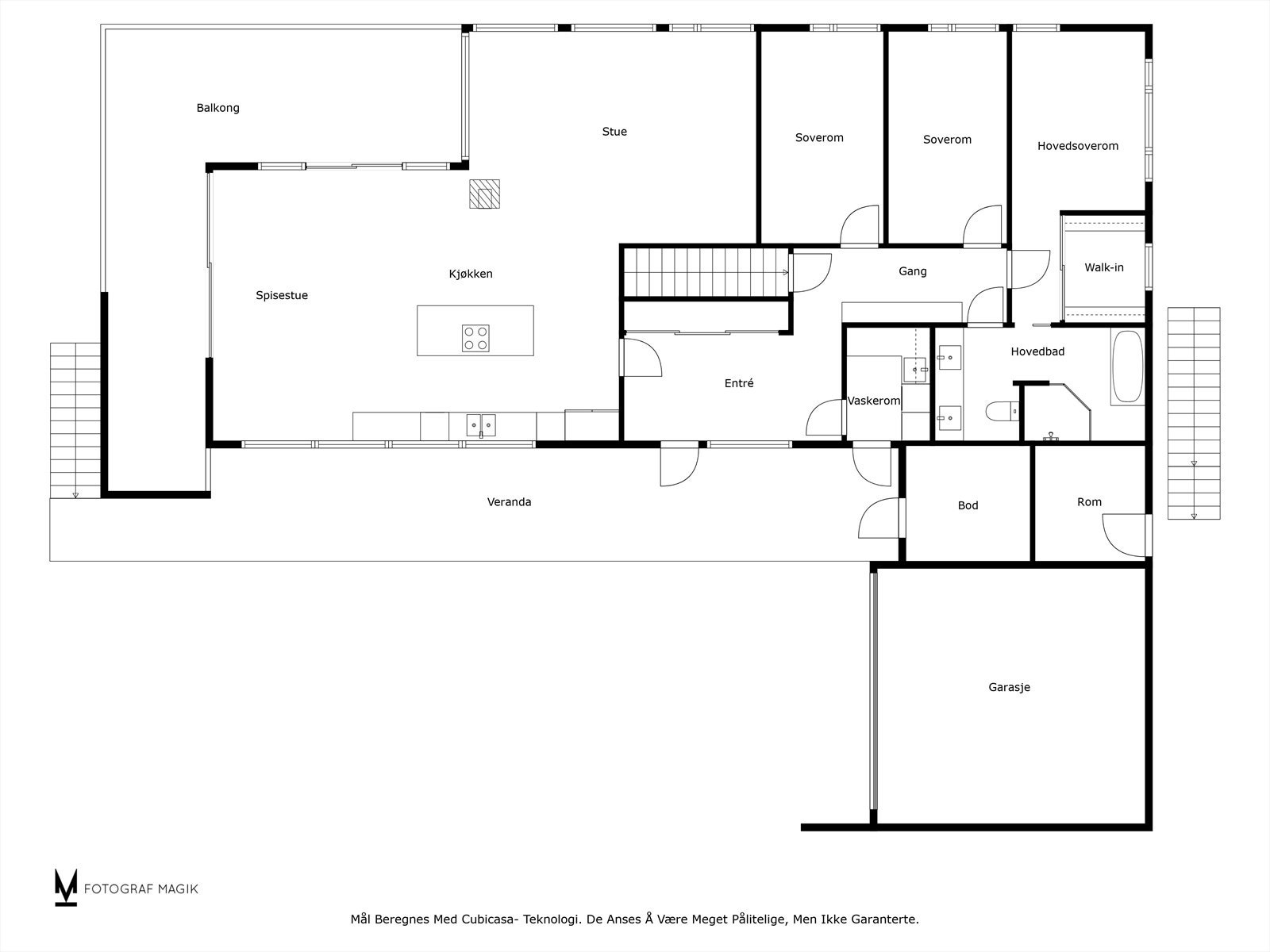
Den rålekre boligen er arkitekttegnet av Vårdal Arkitekter, har et areal på hele 337 kvm. og er innredet m/bl.a. 4 soverom, 2 stuer og 2 bad i hoveddelen, samt utleieleilighet m/2 ytterligere soverom. Hoveddelens sosiale allrom er noe helt for seg selv m/ekstra god takhøyde, særdeles store vindusflater for lys og utsikt, skyvedører til overbygget terrasse og innholdsrikt kjøkken.
Det bør også nevnes dobbel garasje, rikelig m/bodareal, pent opparbeidet eiertomt på 837 kvm m/plenareal, steinlagt gårdsplass og uteplasser, samt adskilt parkering til utleiedel.
Må oppleves
Den rålekre boligen er arkitekttegnet av Vårdal Arkitekter, har et areal på hele 337 kvm. og er innredet m/bl.a. 4 soverom, 2 stuer og 2 bad i hoveddelen, samt utleieleilighet m/2 ytterligere soverom. Hoveddelens sosiale allrom er noe helt for seg selv m/ekstra god takhøyde, særdeles store vindusflater for lys og utsikt, skyvedører til overbygget terrasse og innholdsrikt kjøkken.
Det bør også nevnes dobbel garasje, rikelig m/bodareal, pent opparbeidet eiertomt på 837 kvm m/plenareal, steinlagt gårdsplass og uteplasser, samt adskilt parkering til utleiedel.
Må oppleves
NB: Knappen for å vise hele beskrivelsen har kun en visuell effekt.
NB: Knappen for å vise hele beskrivelsen har kun en visuell effekt.
Salgsoppgaven beskriver vesentlig og lovpålagt informasjon om eiendommen
Se komplett salgsoppgaveNyttige lenker
Nærområdet
Nordvik Tønsberg
Annonseinformasjon
| FINN-kode | 400302788 |
|---|---|
| Sist endret | 28. aug. 2025 10:34 |
| Referanse | 25-0082/24 |
Annonsene kan være mangelfulle i forhold til lovpålagt opplysningsplikt. Før bindende avtale inngås oppfordres interessenter til å innhente komplett informasjon fra meglerforetaket, selger eller utleier.


















































































