Bildegalleri

Velkommen til Solåsen 19!
Solgt
Solåsen - Kragerø | Flott og innholdsrik tomannsbolig - solrikt og barnevennlig!
Prisantydning3 700 000 kr
Nøkkelinfo
- Boligtype
- Tomannsbolig
- Eieform
- Eier (Selveier)
- Soverom
- 4
- Internt bruksareal
- 128 m² (BRA-i)
- Bruksareal
- 141 m²
- Eksternt bruksareal
- 13 m² (BRA-e)
- Balkong/Terrasse
- 71 m² (TBA)
- Byggeår
- 2014
- Energimerking
- C - Rød
- Rom
- 6
- Tomteareal
- 1 050 m² (eiet)
Fasiliteter
Balkong/Terrasse
Garasje/P-plass
Peis/Ildsted
Sentralt
Moderne
Rolig
Balansert ventilasjon
Om boligen
Velkommen til Solåsen 19!
Pen og innholdsrik tomannsbolig med carport, solrike uteområder og stor terrasse. Her kan man nyte solen fra morgen til kveld, enten på den store terrassen eller gjennom kjøkkenvinduet.
Tomannsboligen inneholder:
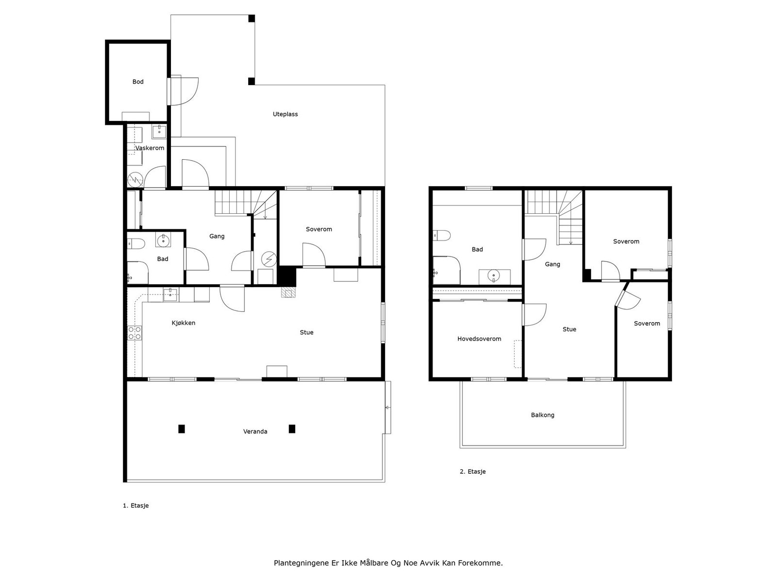
1.etasje: Gang, bad, vaskerom, kjøkken, stue, og soverom.
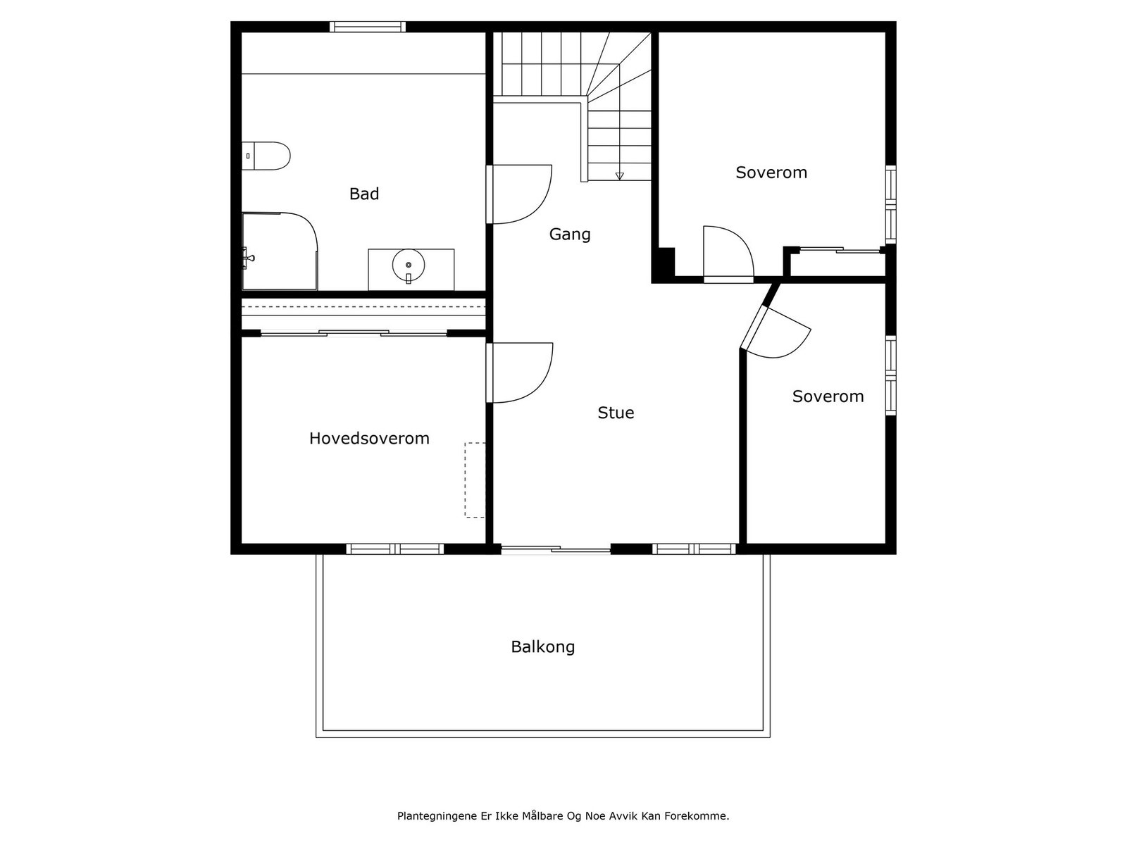
2.etasje: Loftstue, bad og tre soverom.
Bod
Eiendommen ligger sentralt på Kalstad i rolige omgivelser, med gangavstand til dagligvarebutikker, treningssenter og andre nødvendige fasiliteter. For barnefamilier er det kort vei til skoler og en flott lekeplass på Solåsen. Kragerø sentrum med sitt sjarmerende byliv er bare en kort tur unna. Her får du en perfekt kombinasjon av naturnær ro og praktisk hverdagsliv.
Velkommen på visning!
Pen og innholdsrik tomannsbolig med carport, solrike uteområder og stor terrasse. Her kan man nyte solen fra morgen til kveld, enten på den store terrassen eller gjennom kjøkkenvinduet.
Tomannsboligen inneholder:
1.etasje: Gang, bad, vaskerom, kjøkken, stue, og soverom.
2.etasje: Loftstue, bad og tre soverom.
Bod
Eiendommen ligger sentralt på Kalstad i rolige omgivelser, med gangavstand til dagligvarebutikker, treningssenter og andre nødvendige fasiliteter. For barnefamilier er det kort vei til skoler og en flott lekeplass på Solåsen. Kragerø sentrum med sitt sjarmerende byliv er bare en kort tur unna. Her får du en perfekt kombinasjon av naturnær ro og praktisk hverdagsliv.
Velkommen på visning!
NB: Knappen for å vise hele beskrivelsen har kun en visuell effekt.
NB: Knappen for å vise hele beskrivelsen har kun en visuell effekt.
Salgsoppgaven beskriver vesentlig og lovpålagt informasjon om eiendommen
Se komplett salgsoppgaveNyttige lenker
Nærområdet
Privatmegleren Kragerø
Kun det beste på dine vegne
Annonseinformasjon
| FINN-kode | 401106886 |
|---|---|
| Sist endret | 14. apr. 2025 10:24 |
| Referanse | 322250023 |
Annonsene kan være mangelfulle i forhold til lovpålagt opplysningsplikt. Før bindende avtale inngås oppfordres interessenter til å innhente komplett informasjon fra meglerforetaket, selger eller utleier.

















































