Bildegalleri

Velkommen til Kilebryggaveien!
Solgt
Kirkøy
Flott helårshytte med bilvei helt fram og båtplass - Romsundet/Hvaler
Prisantydning7 700 000 kr
- Omkostninger
- 213 491 kr
- Totalpris
- 7 913 491 kr
- Kommunale avg.
- 22 857 kr per år
- Formuesverdi
- 419 139 kr
Nøkkelinfo
- Beliggenhet
- Ved sjøen
- Boligtype
- Hytte
- Eieform
- Eier (Selveier)
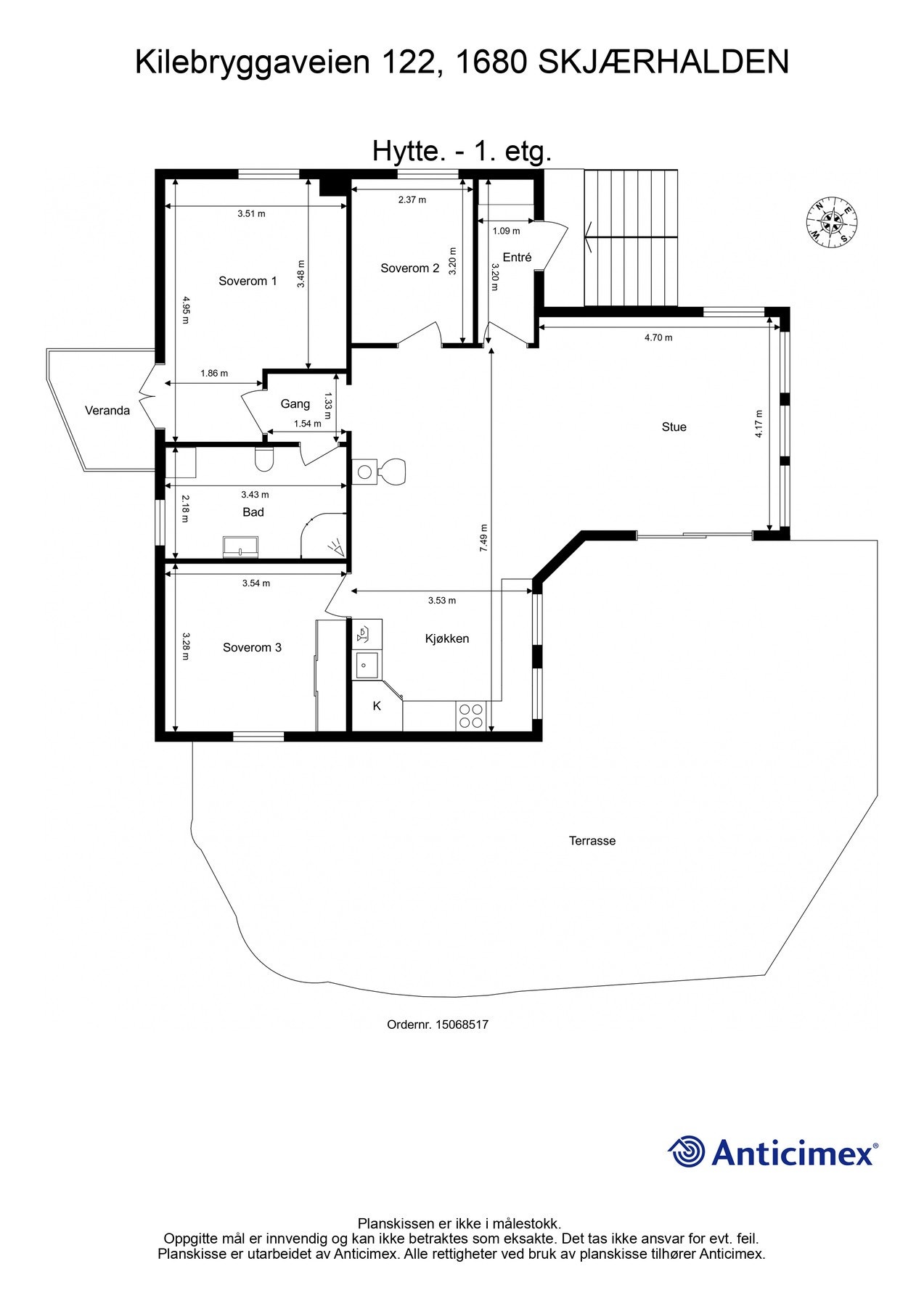
- Internt bruksareal
- 99 m² (BRA-i)
- Bruksareal
- 103 m²
- Eksternt bruksareal
- 4 m² (BRA-e)
- Balkong/Terrasse
- 78 m² (TBA)
- Tomteareal
- 1 142 m² (festet)
- Festeavgift
- 3 225 kr
- Byggeår
- 1992
- Soverom
- 3
- Rom
- 4
- Sengeplasser
- 8
- Energimerking
- F - Oransje
Fasiliteter
Balkong/Terrasse
Garasje/P-plass
Fiskemulighet
Offentlig vann/kloakk
Turterreng
Utsikt
Bilvei frem
Innlagt strøm
Om boligen
Velholdt og romslig hytte sjønært beliggende ved vakre Romsundet på Kirkøy. Hytta ligger solrikt og usjenert på et privat platå med bilvei helt fram. Stor tomt med diverse parkeringsplasser samt mulighet for båtopplag. Hytta er tilkoblet kommunalt VA og holder god standard med moderne kjøkken og bad. Flotte og solrike uteplasser i form av veranda som dels er overbygget og steinplatting. Eiendommen ligger i nærheten av Edholmen Marina med restaurant, drivstoff og kioskvarer. Med båt er det kort vei gjennom Romsundet til Skjærhalden med diverse servicetilbud og Gravningsund.
NB: Knappen for å vise hele beskrivelsen har kun en visuell effekt.
NB: Knappen for å vise hele beskrivelsen har kun en visuell effekt.
Salgsoppgaven beskriver vesentlig og lovpålagt informasjon om eiendommen
Se komplett salgsoppgaveNærområdet
STAVLUND AS
Vi kan også selge din bolig
Annonseinformasjon
| FINN-kode | 402453069 |
|---|---|
| Sist endret | 10. juli 2025 13:59 |
| Referanse | 192250039 |
Annonsene kan være mangelfulle i forhold til lovpålagt opplysningsplikt. Før bindende avtale inngås oppfordres interessenter til å innhente komplett informasjon fra meglerforetaket, selger eller utleier.



























































