Bildegalleri

Bergby Partners v/ Kim-André Arnesen og Torbjørn Folgerø presenterer Søråshøgda 274! En praktisk familiebolig i særdeles barnevennlige omgivelser.
Inaktiv
Søråshøgda
Innholdsrik familiebolig i særdeles barnevennlige omgivelser. Fast parkering. Kort vei til buss, skole og nærbutikk
Prisantydning4 790 000 kr
Nøkkelinfo
- Boligtype
- Leilighet
- Eieform
- Eier (Selveier)
- Soverom
- 1
- Internt bruksareal
- 112 m² (BRA-i)
- Bruksareal
- 118 m²
- Eksternt bruksareal
- 6 m² (BRA-e)
- Balkong/Terrasse
- 11 m² (TBA)
- Byggeår
- 1995
- Rom
- 2
- Tomteareal
- 2 240 m² (eiet)
Fasiliteter
Barnevennlig
Balkong/Terrasse
Garasje/P-plass
Kabel-TV
Offentlig vann/kloakk
Parkett
Peis/Ildsted
Turterreng
Utsikt
Sentralt
Bredbåndstilknytning
Moderne
Rolig
Lademulighet
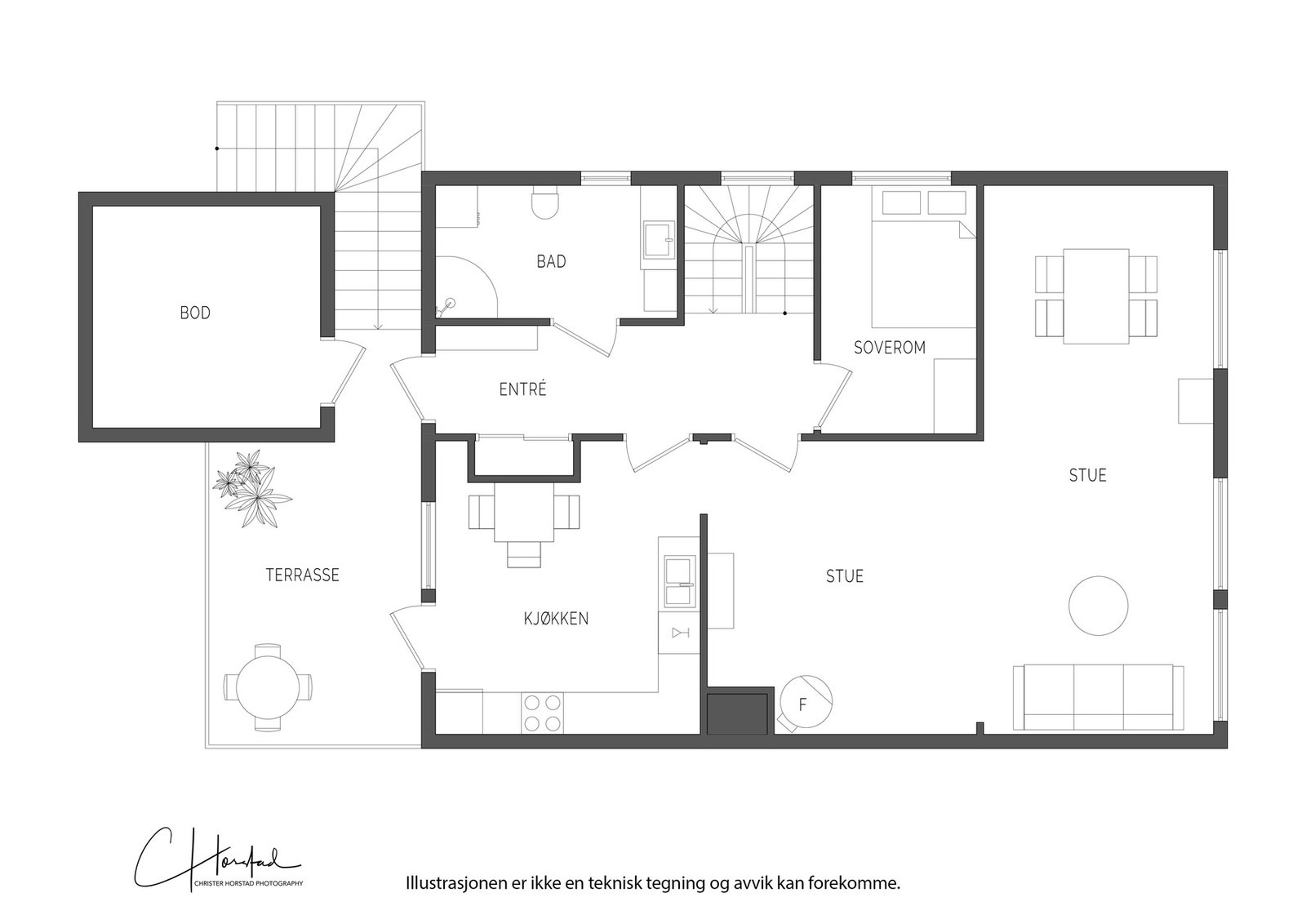
Om boligen
Søråshøgda 274 har en barnevennlig og sentral beliggenhet i et populært og rolig boligområde.
Her er det flere lekeplasser for de minste, og velholdte fellesområder.
Høydepunkter bolig:
- Fantastiske utsiktsforhold
- Romslig stue med ildsted
- Lekkert baderom, nytt i 2017
- Kjøkken med tidløs innredning
- 2 rom benyttet som soverom
- Med tillegg av loftstue og kontor/gjesterom ikke bruksendret)
- Mulighet for å endre spisestue til et 3 soverom
- Hovedsoverom med walk-in-garderobe
- Fast parkeringsplass
- Koselig veranda ved inngangsparti
Høydepunkter beliggenhet:
- Gangavstand til barnehager og skole
- Få minutter til Kilden Senter
- Gangavstand til Lagunen Storsenter
- Bussholdeplass like ved
- Gangavstand til Bybanen
- Varierte turløyper like utenfor egen dør
- Lekeplass like ved
- Fine fellesområder
Velkommen til hyggelig visning!
Her er det flere lekeplasser for de minste, og velholdte fellesområder.
Høydepunkter bolig:
- Fantastiske utsiktsforhold
- Romslig stue med ildsted
- Lekkert baderom, nytt i 2017
- Kjøkken med tidløs innredning
- 2 rom benyttet som soverom
- Med tillegg av loftstue og kontor/gjesterom ikke bruksendret)
- Mulighet for å endre spisestue til et 3 soverom
- Hovedsoverom med walk-in-garderobe
- Fast parkeringsplass
- Koselig veranda ved inngangsparti
Høydepunkter beliggenhet:
- Gangavstand til barnehager og skole
- Få minutter til Kilden Senter
- Gangavstand til Lagunen Storsenter
- Bussholdeplass like ved
- Gangavstand til Bybanen
- Varierte turløyper like utenfor egen dør
- Lekeplass like ved
- Fine fellesområder
Velkommen til hyggelig visning!
NB: Knappen for å vise hele beskrivelsen har kun en visuell effekt.
NB: Knappen for å vise hele beskrivelsen har kun en visuell effekt.
Salgsoppgaven beskriver vesentlig og lovpålagt informasjon om eiendommen
Se komplett salgsoppgaveNyttige lenker
Nærområdet
Bergby & Partners
Annonsene kan være mangelfulle i forhold til lovpålagt opplysningsplikt. Før bindende avtale inngås oppfordres interessenter til å innhente komplett informasjon fra meglerforetaket, selger eller utleier.










































