Bildegalleri

Dette er Måkekollen 36 - en moderne bolig med høy standard. Velkommen til visning.
Solgt
Kråkerøy
Påkostet bolig med god beliggenhet på Langøya, like ved vannet. Solrik beliggenhet med fine uteplasser og god komfort.
Prisantydning6 950 000 kr
Nøkkelinfo
- Boligtype
- Enebolig
- Eieform
- Eier (Selveier)
- Soverom
- 3
- Internt bruksareal
- 106 m² (BRA-i)
- Bruksareal
- 124 m²
- Eksternt bruksareal
- 6 m² (BRA-e)
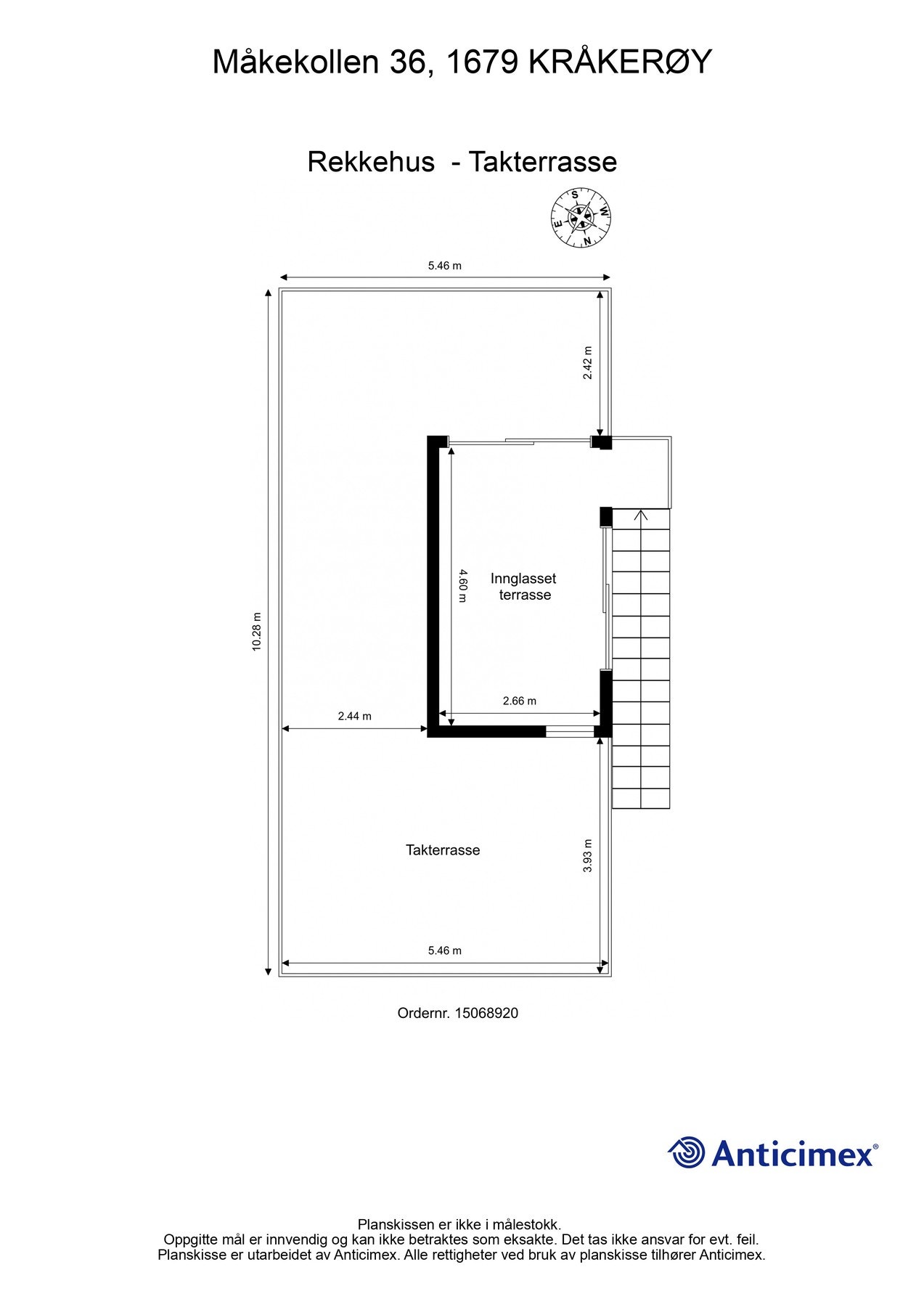
- Innglasset balkong
- 12 m² (BRA-b)
- Balkong/Terrasse
- 93 m² (TBA)
- Byggeår
- 2018
- Energimerking
- C - Oransje
- Tomteareal
- 16 734 m² (eiet)
Fasiliteter
Barnevennlig
Balkong/Terrasse
Garasje/P-plass
Fiskemulighet
Offentlig vann/kloakk
Parkett
Peis/Ildsted
Turterreng
Utsikt
Moderne
Rolig
Bademulighet
Lademulighet
Om boligen
Dette er en pen og påkostet bolig med god beliggenhet i et rolig og populært boligområde langs Vesterelven på Langøya, Kråkerøy. Boligen er over tre plan med flere fine solrike uteplasser i hver etasje. Dette er et godt sted for barn å vokse opp, og et godt sted for deg som ønsker en enklere hverdag med lite vedlikehold. Huset er nytt i 2018 og fremstår i svært god stand - nærmest som nytt. Det har en velfungerende planløsning med oppholdsrom og utgang til en sydvestvendt markterrasse i 1. etasje, soverom og vaskerom i 2. etasje og en solrik takterrasse med innglassetutestue i 3. etasje. Biloppstillingsplass i carport og utenfor carport med elbillader. Måkekollen ligger kun noen få minutters kjøring fra Fredrikstad sentrum. Her befinner du deg kun steinkast fra elvebredden og på den fine takterrassen har du solen fra morgen til kveld. I nærområdet er det fine turområder langs elven og innover i furuskogen på Langøya.
NB: Knappen for å vise hele beskrivelsen har kun en visuell effekt.
NB: Knappen for å vise hele beskrivelsen har kun en visuell effekt.
Salgsoppgaven beskriver vesentlig og lovpålagt informasjon om eiendommen
Se komplett salgsoppgaveNærområdet
STAVLUND AS
Vi kan også selge din bolig
Annonseinformasjon
| FINN-kode | 403397773 |
|---|---|
| Sist endret | 02. mai 2025 10:24 |
| Referanse | 192250045 |
Annonsene kan være mangelfulle i forhold til lovpålagt opplysningsplikt. Før bindende avtale inngås oppfordres interessenter til å innhente komplett informasjon fra meglerforetaket, selger eller utleier.
































































