Bildegalleri

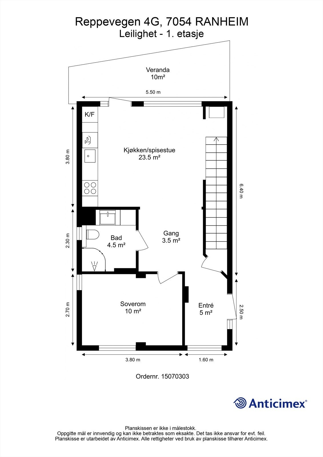
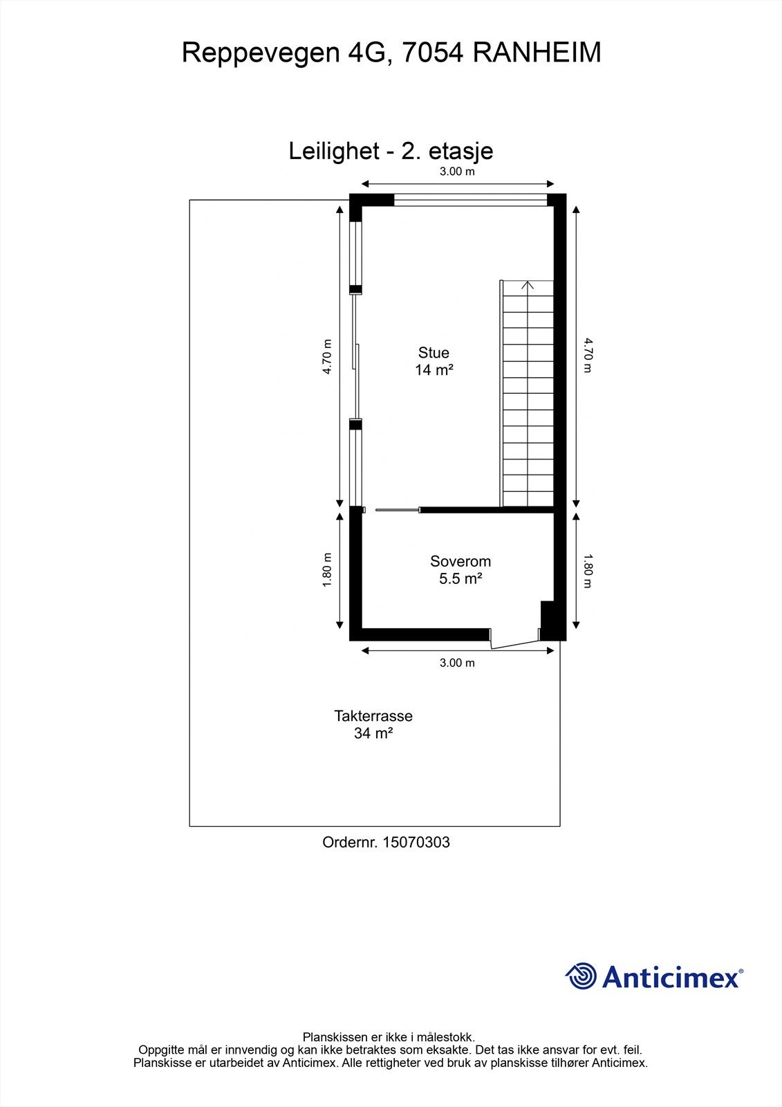
Leiligheten går over to plan og holder en god standard med smarte og tidsriktige løsninger.
Solgt
Ranheim
Lys og pen 3-roms selveier | Stor takterrasse med sol og utsikt | Heis, P-kjeller og bod | Rolig og attraktivt område
Prisantydning3 590 000 kr
Nøkkelinfo
- Boligtype
- Leilighet
- Eieform
- Eier (Selveier)
- Soverom
- 2
- Internt bruksareal
- 71 m² (BRA-i)
- Bruksareal
- 76 m²
- Eksternt bruksareal
- 5 m² (BRA-e)
- Balkong/Terrasse
- 44 m² (TBA)
- Etasje
- 1
- Byggeår
- 2013
- Energimerking
- C - Rød
- Rom
- 3
- Tomteareal
- 2 202 m² (eiet)
Fasiliteter
Takterrasse
Balkong/Terrasse
Barnevennlig
Bredbåndstilknytning
Garasje/P-plass
Heis
Kjæledyr tillatt
Kabel-TV
Offentlig vann/kloakk
Parkett
Rolig
Sentralt
Utsikt
Vaktmester-/vektertjeneste
Bademulighet
Fiskemulighet
Turterreng
Lademulighet
Balansert ventilasjon
Om boligen
Velkommen til en lys og innbydende 3-roms selveierleilighet beliggende i et veletablert boligområde på Reppe! Leiligheten går over to plan og holder en god standard med smarte og tidsriktige løsninger. Leiligheten ligger i et attraktivt og rolig boligområde på populære Ranheim. Her bor du høyt og fritt, med en romslig terrasse som byr på svært gode solforhold og nydelig panoramautsikt.
Verdt å nevne:
- To romslige soverom med plass til ønsket soveromsmøblement.
- Fra spisestuen har man også direkte utgang til en solfylt balkong med fantastisk utsikt.
- Parkeringsplass med elbil lader.
- Praktisk lagringsplass i romslig kjellerbod.
- Pent flislagt bad med varme i gulv og opplegg for vaskemaskin.
- Kort vei til både marka, bussforbindelser og dagligvare.
Velkommen til visning!
Verdt å nevne:
- To romslige soverom med plass til ønsket soveromsmøblement.
- Fra spisestuen har man også direkte utgang til en solfylt balkong med fantastisk utsikt.
- Parkeringsplass med elbil lader.
- Praktisk lagringsplass i romslig kjellerbod.
- Pent flislagt bad med varme i gulv og opplegg for vaskemaskin.
- Kort vei til både marka, bussforbindelser og dagligvare.
Velkommen til visning!
NB: Knappen for å vise hele beskrivelsen har kun en visuell effekt.
NB: Knappen for å vise hele beskrivelsen har kun en visuell effekt.
Salgsoppgaven beskriver vesentlig og lovpålagt informasjon om eiendommen
Se komplett salgsoppgaveNyttige lenker
Nærområdet
Krogsveen Trondheim
Velkommen til en enklere boligreise.
Annonseinformasjon
| FINN-kode | 404608964 |
|---|---|
| Sist endret | 10. des. 2025 13:59 |
| Referanse | KR68.2547 |
Annonsene kan være mangelfulle i forhold til lovpålagt opplysningsplikt. Før bindende avtale inngås oppfordres interessenter til å innhente komplett informasjon fra meglerforetaket, selger eller utleier.




































