Bildegalleri

Velkommen til Ormøybakken 32! Boligen er presentert av Tobias Due v/Nordvik Bolig avd. Frogner. Rolig og barnevennlig område. Dette er et drømmested for enhver barnefamilie!
Solgt
Ormøya
Ormøya idyll - Velholdt enebolig med vidstrakt fjordutsikt, nære sjøen, solrike uteplasser, garasje og privat strand*
Prisantydning21 000 000 kr
Nøkkelinfo
- Boligtype
- Enebolig
- Eieform
- Eier (Selveier)
- Soverom
- 4
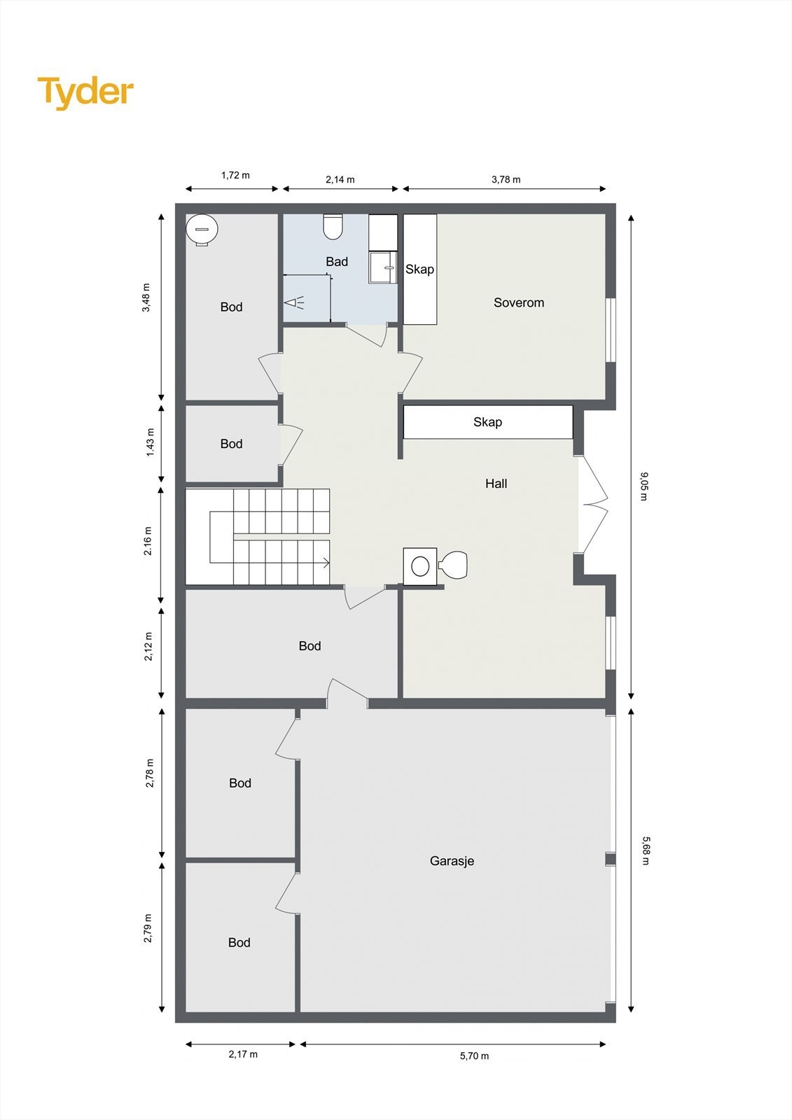
- Internt bruksareal
- 281 m² (BRA-i)
- Bruksareal
- 293 m²
- Innglasset balkong
- 12 m² (BRA-b)
- Balkong/Terrasse
- 42 m² (TBA)
- Byggeår
- 1995
- Energimerking
- E - Oransje
- Tomteareal
- 555 m² (eiet)
Fasiliteter
Balkong/Terrasse
Barnevennlig
Bredbåndstilknytning
Garasje/P-plass
Hage
Kjæledyr tillatt
Offentlig vann/kloakk
Peis/Ildsted
Rolig
Sentralt
Utsikt
Bademulighet
Turterreng
Lademulighet
Om boligen
Noen steder føles som ferie hver dag - Ormøya er ett av dem. Omgitt av sjø, grønne trær og et rolig nabolag finner du et hjem som er skapt for å nyte livet.
Velkommen til Ormøybakken 32. En fantastisk eiendom med flott utsikt. Innerst i en stille blindvei omgitt av frodige hager og villaer finner du en romslig enebolig som passer perfekt for familien. Boligen har en gjennomtenkt planløsning med store vindusflater som slipper inn rikelig med lys, og som rammer inn utsikten mot fjorden og øyene. Ute venter store uteplasser med optimale solforhold.
Moderne og stilrent kjøkken fra Tvis
Praktisk og familievennlig planløsning
Mulighet for å etablere utleiedel i u. etg. samt godt med lagring.
*Bruksrett til Solanger strand, delt med 15 andre hus
Sørlandsidyll kun 10 minutter fra sentrum
Velkommen til Ormøybakken 32. En fantastisk eiendom med flott utsikt. Innerst i en stille blindvei omgitt av frodige hager og villaer finner du en romslig enebolig som passer perfekt for familien. Boligen har en gjennomtenkt planløsning med store vindusflater som slipper inn rikelig med lys, og som rammer inn utsikten mot fjorden og øyene. Ute venter store uteplasser med optimale solforhold.
Moderne og stilrent kjøkken fra Tvis
Praktisk og familievennlig planløsning
Mulighet for å etablere utleiedel i u. etg. samt godt med lagring.
*Bruksrett til Solanger strand, delt med 15 andre hus
Sørlandsidyll kun 10 minutter fra sentrum
NB: Knappen for å vise hele beskrivelsen har kun en visuell effekt.
NB: Knappen for å vise hele beskrivelsen har kun en visuell effekt.
Salgsoppgaven beskriver vesentlig og lovpålagt informasjon om eiendommen
Se komplett salgsoppgaveNyttige lenker
Nærområdet
Nordvik Frogner
Annonseinformasjon
| FINN-kode | 406015577 |
|---|---|
| Sist endret | 27. sep. 2025 16:59 |
| Referanse | 14-0290/25 |
Annonsene kan være mangelfulle i forhold til lovpålagt opplysningsplikt. Før bindende avtale inngås oppfordres interessenter til å innhente komplett informasjon fra meglerforetaket, selger eller utleier.











































































