Bildegalleri

Helge Børsand i Holmskau & Partners gleder seg til å vise deg Skonnertveien 5 på Vesten
Årum/Vesten: Praktisk, velholdt og pen enebolig m/ garasje m/el-bil-lader og potensiale i kjeller
Nøkkelinfo
- Boligtype
- Enebolig
- Eieform
- Eier (Selveier)
- Soverom
- 3
- Internt bruksareal
- 191 m² (BRA-i)
- Bruksareal
- 191 m²
- Balkong/Terrasse
- 25 m² (TBA)
- Byggeår
- 1977
- Tomteareal
- 619 m² (eiet)
Fasiliteter
Om boligen
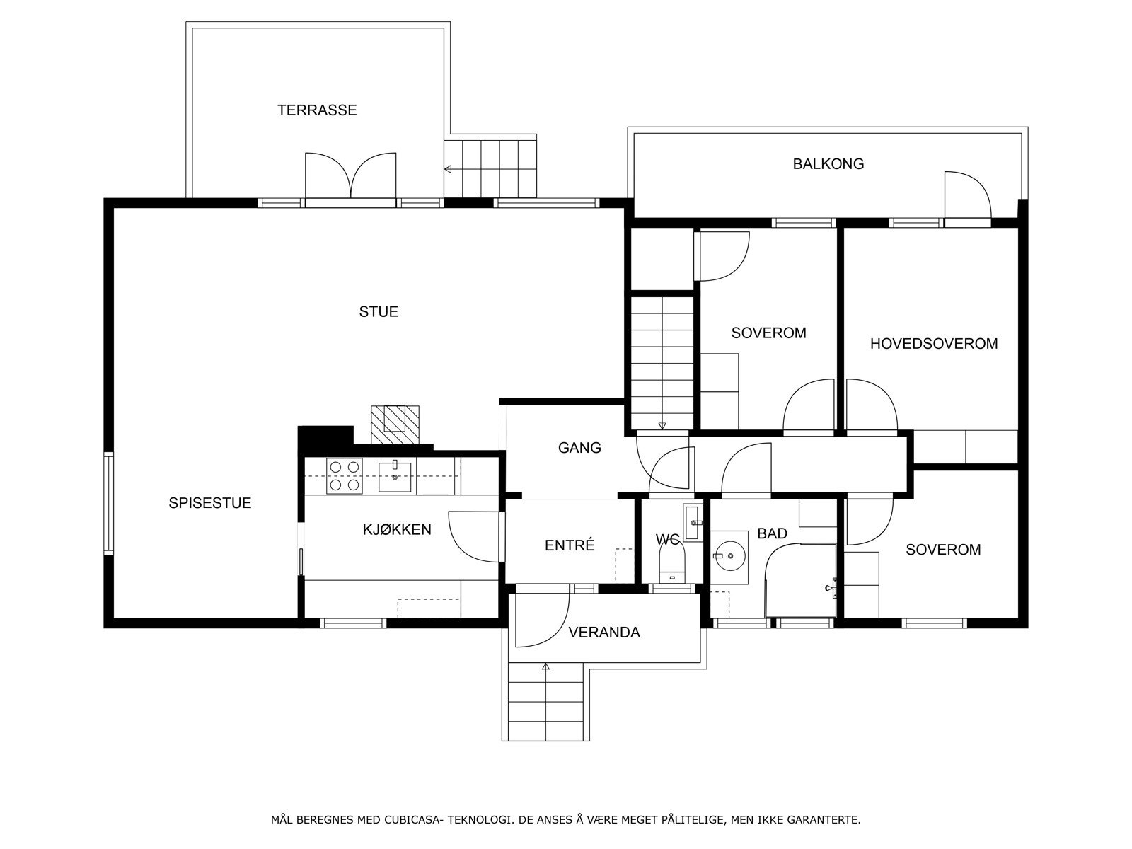
Helge Børsand i Holmskau & Partners gleder seg til å vise frem fine og praktiske Skonnertveien 5. Eneboligen ligger i et rolig område i blindvei, så det er meget barnevennlig. Samtidig er det kort vei til E6, Fredrikstad og Sarpsborg. Tomten har god tilgang til sol og lys, og det er veranda mot vest og hyggelige uteområder. Garasje med el-bil-lader og stor gårdsplass.
Boligen er velholdt, og det kan nevnes at taket er byttet i 2003, noen vinduer er byttet, automatsikringer i 2014, drenering mot gårdsplass i 2019, varmepumpe 2021, og det er malt utvendig i 24.
Inne er det gjort overflatebehandlinger, montert en del downlights og satt inn delikat kjøkken fra JKE.
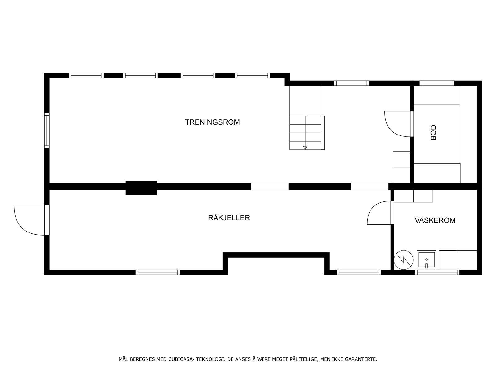
Det er enkelt flislagt bad m/ separat WC-rom, og eget vaskerom i kjeller som for øvrig har egen inngang og et bra potensiale!
KOM!
Salgsoppgaven beskriver vesentlig og lovpålagt informasjon om eiendommen
Se komplett salgsoppgaveNyttige lenker
Nærområdet
Holmskau & Partners
Annonseinformasjon
| FINN-kode | 406408880 |
|---|---|
| Sist endret | 26. juni 2025 16:29 |
| Referanse | 194250065 |
Annonsene kan være mangelfulle i forhold til lovpålagt opplysningsplikt. Før bindende avtale inngås oppfordres interessenter til å innhente komplett informasjon fra meglerforetaket, selger eller utleier.












































