Bildegalleri

Velkommen til Skogfaret 9A, presentert av Schala & Partners ved Henrik Jensen, tlf. 996 92 427.
Enderekkehus over fire halvetasjer | 2 bad | Solrike uteområder | Garasje med lader | Barnevennlig beliggenhet
Nøkkelinfo
- Boligtype
- Rekkehus
- Eieform
- Eier (Selveier)
- Soverom
- 3
- Internt bruksareal
- 140 m² (BRA-i)
- Bruksareal
- 186 m²
- Eksternt bruksareal
- 46 m² (BRA-e)
- Balkong/Terrasse
- 58 m² (TBA)
- Byggeår
- 1965
- Energimerking
- F - Gul
- Tomteareal
- 589 m²
Fasiliteter
Visning
Om boligen
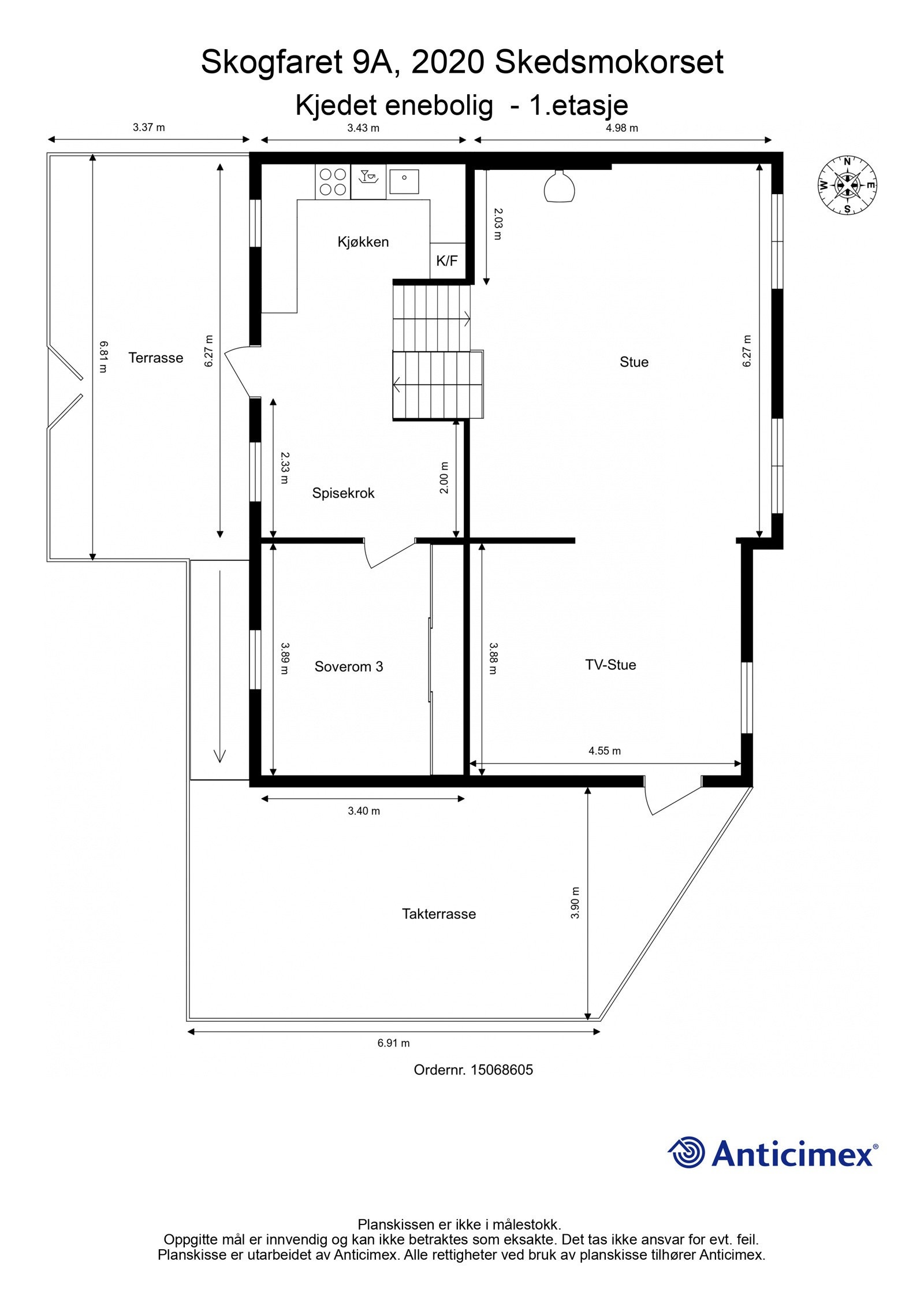
Velkommen til et romslig og innholdsrik enderekkehus. Boligen går over fire halvetasjer og byr blant annet på entré, 4 soverom, kjøkken, 2 stuer, 2 bad og god bodplass. Videre har boligen flott uteområde med gode solforhold. Garasje med lader og gårdsplass med plass til 3-4 biler.
Boligen ligger i et etablert og barnevennlig nabolag med kort vei til skoler, barnehager og gode kollektivtilbud. Dagligvarebutikker og Skedsmo Senter med et bredt utvalg av butikker og servicetilbud er lett tilgjengelig. Flotte turområder i umiddelbar nærhet.
- Fantastisk uteområde med stor terrasse og hage
- God planløsning
- Kvik kjøkken fra 2013 med integrerte hvitevarer
- 2 baderom (ene oppusset i 2022)
- Peis og varmepumpe
- Nyere vinduer
- Altibox fiber
- Garasje
- Sentralt og skjermet
- Ca 30 minutter med kollektiv til Oslo
Salgsoppgaven beskriver vesentlig og lovpålagt informasjon om eiendommen
Se komplett salgsoppgaveNyttige lenker
Nærområdet
Schala & Partners Bjørvika/Gamle Oslo
Annonseinformasjon
| FINN-kode | 406537622 |
|---|---|
| Sist endret | 24. sep. 2025 02:36 |
| Referanse | 55250046 |
Annonsene kan være mangelfulle i forhold til lovpålagt opplysningsplikt. Før bindende avtale inngås oppfordres interessenter til å innhente komplett informasjon fra meglerforetaket, selger eller utleier.







































