Bildegalleri

Velkommen til Indrebøvegen 60. Presenteres av Salte i PrivatMegleren Jæren.
Svært sjelden og unik eiendom på totalt ca. 85 mål. Landlig beliggenhet med kort avstand til sentrale strøk.
Nøkkelinfo
- Boligtype
- Enebolig
- Eieform
- Eier (Selveier)
- Soverom
- 4
- Internt bruksareal
- 617 m² (BRA-i)
- Bruksareal
- 664 m²
- Eksternt bruksareal
- 16 m² (BRA-e)
- Innglasset balkong
- 31 m² (BRA-b)
- Byggeår
- 1991
- Energimerking
- D - Gul
- Tomteareal
- 85 699 m² (eiet)
- Boligselgerforsikring
- Ja
Visning
Om boligen
Velkommen til Indrebøvegen 60!
Kort fortalt:
Ca. 85 mål eiendom i landlige omgivelser med panoramautsikt over jærlandskapet og havet
Gjennomført uteområde med steingarder, tegl, frodig beplantning og flotte soner
Lys og romslig bolig med 4 soverom, 2 bad og flere sosiale soner
Eksklusiv hagestue med glasskyvedører og helårs sommerfølelse
Unikt redskapshus ombygd til stilfull stue/bar med lounge og kjøkken, perfekt til fest eller hobby
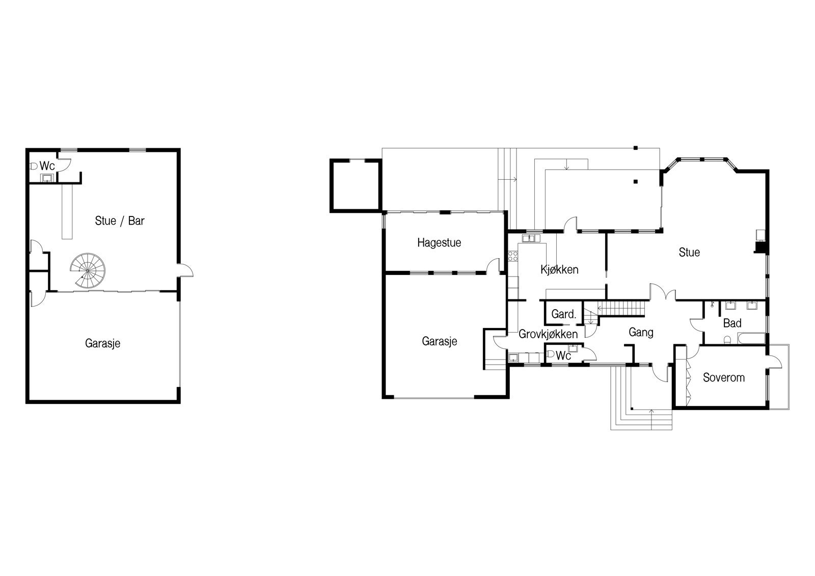
Dobbel garasje med direkte inngang til huset.
Innhold:
1.etasje: Entrè/gang, stue, kjøkken, grovkjøkken/bakgang, bad, toalettrom og soverom.
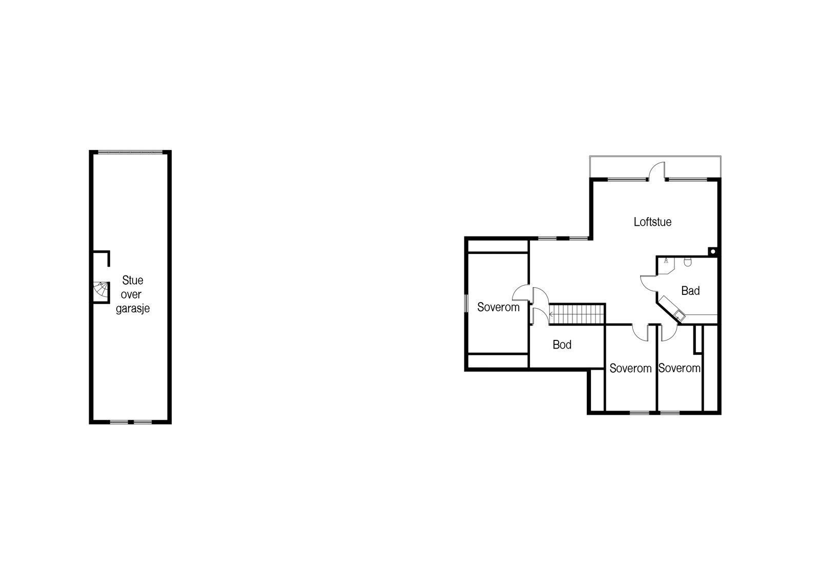
2.etasje: Gang, stue, bad og tre soverom.
Kjeller: Bakgang/hobbyrom og gang.
Redskapshus
1.etasje: Allrom m/bar/tekjøkken og toalettrom.
Loft: Loftstue.
Salgsoppgaven beskriver vesentlig og lovpålagt informasjon om eiendommen
Se komplett salgsoppgaveNyttige lenker
Nærområdet

Privatmegleren Jæren
Annonseinformasjon
| FINN-kode | 409137515 |
|---|---|
| Sist endret | 24. okt. 2025 02:12 |
| Referanse | 310250023 |
Annonsene kan være mangelfulle i forhold til lovpålagt opplysningsplikt. Før bindende avtale inngås oppfordres interessenter til å innhente komplett informasjon fra meglerforetaket, selger eller utleier.

























































































