Bildegalleri

Velkommen til Skanseveien 19!
Solgt
Krapfoss
Flott høytliggende enebolig med god standard, beliggende i blindvei. Utsikt og svært gode solforhold. Dobbelgarasje
Prisantydning7 490 000 kr
Nøkkelinfo
- Boligtype
- Enebolig
- Eieform
- Eier (Selveier)
- Soverom
- 4
- Internt bruksareal
- 284 m² (BRA-i)
- Bruksareal
- 284 m²
- Balkong/Terrasse
- 142 m² (TBA)
- Byggeår
- 1988
- Energimerking
- D - Gul
- Tomteareal
- 1 127 m² (eiet)
Fasiliteter
Barnevennlig
Balkong/Terrasse
Garasje/P-plass
Peis/Ildsted
Turterreng
Sentralt
Moderne
Rolig
Om boligen
Hasan Øzbal v/ Privatmegleren Moss har gleden av å presentere Skanseveien 19!
- Huset ligger høyt og fritt, med flott utsikt og svært gode solforhold fra morgen til kveld.
- Her bor du skjermet og tilbaketrukket i en rolig blindvei, omgitt av natur, barnevennlig og hyggelig nabolag.
- Det er kort vei til butikker, skoler, barnehager og turstier ved Vansjø.
- Huset er gjennomgående godt vedlikeholdt og betydelig oppgradert, både teknisk og estetisk i nyere tid- her kan du flytte rett inn uten å bekymre deg for store oppussingsbehov.
- Med sin solrike beliggenhet, vakre utearealer og innholdsrike planløsning er Skanseveien 19 en eiendom du virkelig må oppleve.
Innhold
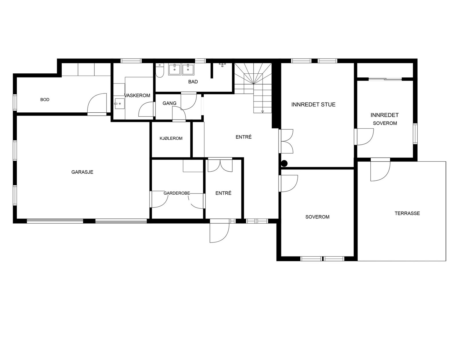
Underetasje: Dobbelgarasje og bod. Entré, garderobe, gang, bad, vaskerom, kjølerom, soverom, innredet stue og innredet soverom med utgang til terrasse på 42 m².
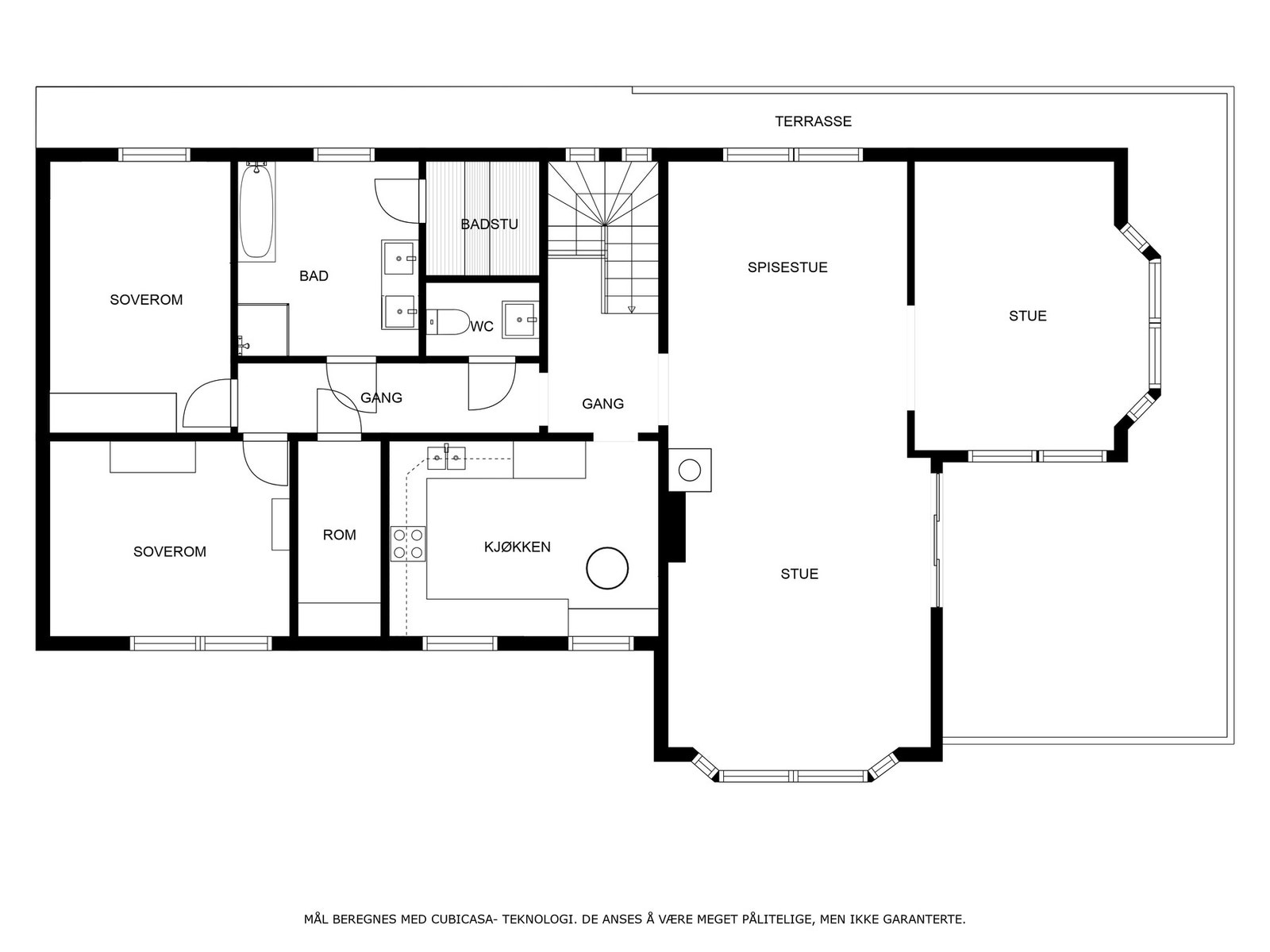
1. etasje: Gang, toalettrom, bad, badstue, garderoberom, 2 soverom, kjøkken, spisestue og stue med utgang til terrasse og veranda på ca. 100 m².
- Huset ligger høyt og fritt, med flott utsikt og svært gode solforhold fra morgen til kveld.
- Her bor du skjermet og tilbaketrukket i en rolig blindvei, omgitt av natur, barnevennlig og hyggelig nabolag.
- Det er kort vei til butikker, skoler, barnehager og turstier ved Vansjø.
- Huset er gjennomgående godt vedlikeholdt og betydelig oppgradert, både teknisk og estetisk i nyere tid- her kan du flytte rett inn uten å bekymre deg for store oppussingsbehov.
- Med sin solrike beliggenhet, vakre utearealer og innholdsrike planløsning er Skanseveien 19 en eiendom du virkelig må oppleve.
Innhold
Underetasje: Dobbelgarasje og bod. Entré, garderobe, gang, bad, vaskerom, kjølerom, soverom, innredet stue og innredet soverom med utgang til terrasse på 42 m².
1. etasje: Gang, toalettrom, bad, badstue, garderoberom, 2 soverom, kjøkken, spisestue og stue med utgang til terrasse og veranda på ca. 100 m².
NB: Knappen for å vise hele beskrivelsen har kun en visuell effekt.
NB: Knappen for å vise hele beskrivelsen har kun en visuell effekt.
Salgsoppgaven beskriver vesentlig og lovpålagt informasjon om eiendommen
Se komplett salgsoppgaveNyttige lenker
Nærområdet

PrivatMegleren Moss
Kun det beste på dine vegne
Annonseinformasjon
| FINN-kode | 410779284 |
|---|---|
| Sist endret | 16. okt. 2025 15:29 |
| Referanse | 116250127 |
Annonsene kan være mangelfulle i forhold til lovpålagt opplysningsplikt. Før bindende avtale inngås oppfordres interessenter til å innhente komplett informasjon fra meglerforetaket, selger eller utleier.


















































