Bildegalleri

Det er med stor glede vi i Verdi &Partners V/Therese Kane kan presentere for salg en trivelig fritidsbolig på Tjørn i Bjerkreim.
Solgt
Bjerkreim
Flott fritidsbolig med idyllisk beliggenhet på Tjørn i Bjerkreim | Fantastisk nydelig hage med gode solforhold
Prisantydning1 250 000 kr
- Omkostninger
- 32 340 kr
- Totalpris
- 1 282 340 kr
- Kommunale avg.
- 3 670 kr per år
Nøkkelinfo
- Boligtype
- Hytte
- Eieform
- Eier (Selveier)
- Internt bruksareal
- 51 m² (BRA-i)
- Bruksareal
- 55 m²
- Eksternt bruksareal
- 4 m² (BRA-e)
- Balkong/Terrasse
- 71 m² (TBA)
- Tomteareal
- 1 450 m² (eiet)
- Byggeår
- 1968
- Soverom
- 2
- Rom
- 4
Fasiliteter
Balkong/Terrasse
Garasje/P-plass
Peis/Ildsted
Turterreng
Utsikt
Om boligen
Det er med stor glede vi i Verdi &Partners V/Therese Kane kan presentere for salg en meget trivelig fritidsbolig med romslig og pent opparbeidet hage. Dette er den perfekte fritidseiendom for deg som ønsker et sted hvor du kan senke skuldrene, nyte live, rømme fra by støy og travle hverdager. Beliggende kun ca. 1 time fra Stavanger. Området er fredfylt, landlig og byr på en rekke fine turområde.
Fritidsboligen byr på en sjarmerende hyttestemning, dekorert med unike og fine detaljer. Dette er er virkelig en hytte som gir den gode hyttekosen. Hytten kan brukes hele året og har en fantastisk fin hage på sommerhalvåret.
Beliggende i et naturskjønt område med romslig hage med gode solforhold.
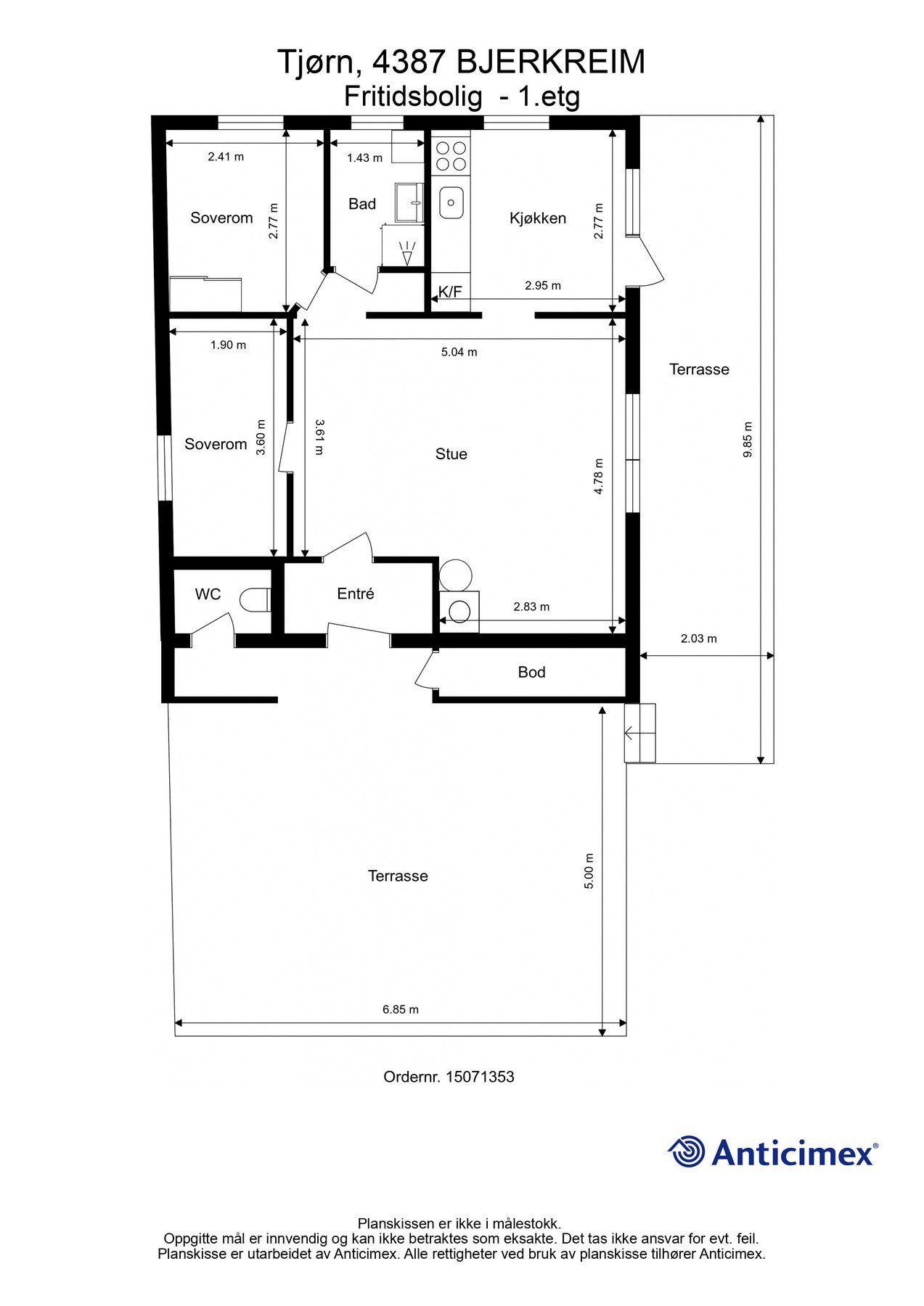
Hytten har en arealeffektiv planløsning med stue, kjøkken, bad, toalettrom og to soverom. Ett av soverommene kan deles til to soverom.
Dette er det perfekte stedet for hygge og kos.
Velkommen til visning!
Fritidsboligen byr på en sjarmerende hyttestemning, dekorert med unike og fine detaljer. Dette er er virkelig en hytte som gir den gode hyttekosen. Hytten kan brukes hele året og har en fantastisk fin hage på sommerhalvåret.
Beliggende i et naturskjønt område med romslig hage med gode solforhold.
Hytten har en arealeffektiv planløsning med stue, kjøkken, bad, toalettrom og to soverom. Ett av soverommene kan deles til to soverom.
Dette er det perfekte stedet for hygge og kos.
Velkommen til visning!
NB: Knappen for å vise hele beskrivelsen har kun en visuell effekt.
NB: Knappen for å vise hele beskrivelsen har kun en visuell effekt.
Salgsoppgaven beskriver vesentlig og lovpålagt informasjon om eiendommen
Se komplett salgsoppgaveNyttige lenker
Nærområdet
Verdi &Partners Sandnes
Verdien av lokalkunnskap
Annonseinformasjon
| FINN-kode | 410830381 |
|---|---|
| Sist endret | 19. juni 2025 10:39 |
| Referanse | 203250050 |
Annonsene kan være mangelfulle i forhold til lovpålagt opplysningsplikt. Før bindende avtale inngås oppfordres interessenter til å innhente komplett informasjon fra meglerforetaket, selger eller utleier.




























