Bildegalleri

Velkommen til Huldreveien 186!
Nytt rekkehus fra 2024 | Sentralt og barnevennlig | Solrik hage og takterrasse | Garasje med EL-lader | Rett ved skogen
Nøkkelinfo
- Boligtype
- Rekkehus
- Eieform
- Eier (Selveier)
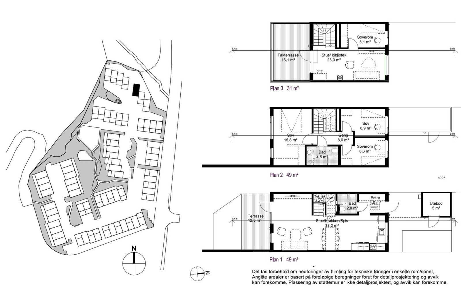
- Soverom
- 4
- Internt bruksareal
- 131 m² (BRA-i)
- Bruksareal
- 136 m²
- Eksternt bruksareal
- 5 m² (BRA-e)
- Byggeår
- 2024
- Tomt
- Eiet
Fasiliteter
Om Boligen
Velkommen til et nytt og moderne rekkehus fra 2024 med gjennomgående høy standard. Her bor du i et barnevennlig og rolig område med grønne omgivelser – samtidig som beliggenheten er sentral med kort vei til Asker sentrum, skoler og kollektivtransport.
Nøkkel informasjon:
• Enderekkehus fra 2024 med nybygg-garanti frem til 2029
• Skjermet beliggenhet innerst i rekken – rett ved skogen
• 3 solrike uteplasser – terrasse, takterrasse og inngangsparti
• 2 bad, 4 soverom + ekstra stue – plass til hele familien
• Garasjeplass med elbillader, mulighet for ekstra plass
• Sportsbod og lagring under trapp
Beliggenhet
Boligen har en attraktiv og barnevennlig beliggenhet i et nytt, etablert boligområde med kort vei til alt du trenger i hverdagen:
• Ca. 10 minutters gange til Asker togstasjon
• Nær Asker sentrum med butikker, servering og kulturtilbud
• Kort vei til både offentlige og private barnehager og skoler
• Nærområdet byr på golfbane, seilforening, badeplasser og flotte turområder
Standard
Boligen holder en gjennomgående høy standard med moderne materialvalg og gode løsninger for bokomfort:
• Elektrisk terrassemarkise
• Gulvvarme i hele 1. etasje
• Kjøkken fra Sigdal med integrerte hvitevarer fra Siemens
• 1-stavs eikeparkett
• Balansert ventilasjon med varmegjenvinning
• Peisovn som gir ekstra varme og hygge
Boligen er i topp teknisk stand – tilstandsrapporten viser kun TG1 (ingen avvik).
Annet
Felleskostnader:
De månedlige felleskostnadene utgjør totalt kr 3 205 og fordeler seg slik:
Felleskostnader: kr 2 698
TV/internett (grunnpakke): kr 507
Felleskostnadene inkluderer blant annet TV og internett (grunnpakke), garasjeplass, renhold av fellesarealer, felles bygningsforsikring, forretningsførerhonorar samt drift og øvrig vedlikehold. Det tas forbehold om justeringer basert på vedtak i sameiet.
Info Kommunale Avgifter:
Kommunale avgifter består av både et fastledd og en forbruksbasert del knyttet til vann og avløp.
Den årlige kostnaden som er oppgitt i annonsen gjelder fastleddet, og utgjør kr 5 643 (inkl. mva.) per 2025. I tillegg kommer variable kostnader basert på faktisk vannforbruk:
-Vann: kr 28,54 + mva. per m³
-Avløp: kr 30,39 + mva. per m³
Tallene er basert på faktura fra Asker kommune for første kvartal 2025. Det tas forbehold om endringer i avgiftene.
Parkering:
Det medfølger én parkeringsplass med elbillader i felles garasjeanlegg. I tillegg er det etablert ca. 13 gjesteparkeringsplasser i garasjen til bruk for besøkende.
Per i dag har flere beboere lagt ut sine parkeringsplasser for salg, og det er dermed gode muligheter for å kjøpe en ekstra plass. Eventuelt kjøp avtales direkte med den enkelte selger i sameiet.
Omkostninger
228 750 kr (Dokumentavgift)
545 kr (Tinglysing av pantedokument)
545 kr (Tinglysing av skjøte)
---
229 840 kr (Omkostninger totalt)
---
9 379 840 kr (Totalpris inkl. omkostninger)
NB: Regnestykket forutsetter at det kun tinglyses én låneobligasjon og at eiendommen selges til prisantydning.
Det tas forbehold om endringer i offentlige og private gebyrer.
Selger er selv ansvarlig for følgende gebyr:
6 570 kr (Eierskiftegebyr)
545 kr (Panterett med urådighet)
Salgsoppgaven beskriver vesentlig og lovpålagt informasjon om eiendommen
Se komplett salgsoppgaveNyttige lenker
Nærområdet
Annonsene kan være mangelfulle i forhold til lovpålagt opplysningsplikt. Før bindende avtale inngås oppfordres interessenter til å innhente komplett informasjon fra meglerforetaket, selger eller utleier.







































