Bildegalleri

Velkommen til denne unike muligheten på toppen av Nevlunghavn!
Unik utsiktsperle i Nevlunghavn uten boplikt - sol fra morgen til sen kveld - helt usjenert
- Omkostninger
- 196 440 kr
- Totalpris
- 7 996 440 kr
- Kommunale avg.
- 7 038 kr per år
- Formuesverdi
- 698 291 kr
Nøkkelinfo
- Beliggenhet
- Ved sjøen
- Boligtype
- Hytte
- Eieform
- Eier (Selveier)
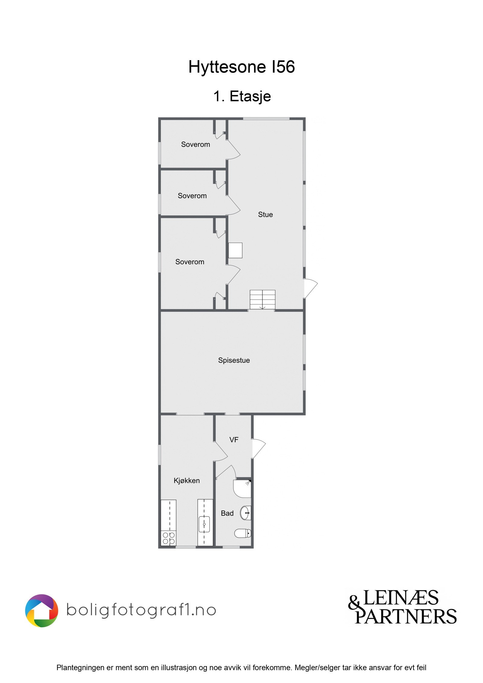
- Internt bruksareal
- 81 m² (BRA-i)
- Bruksareal
- 92 m²
- Eksternt bruksareal
- 11 m² (BRA-e)
- Tomteareal
- 2 961 m² (eiet)
- Byggeår
- 1950
- Soverom
- 3
- Rom
- 4
Fasiliteter
Visning
Husk å lese komplett salgsoppgave før visning. Bestill komplett, utskriftsvennlig salgsoppgave.
VisningspåmeldingOm boligen
Drømmer du om å skape din egen hytteperle ved sjøen? Nå har du en sjelden anledning til å sikre deg en eiendom med stort potensial i vakre Nevlunghavn! Her får du en stor selveiertomt beliggende høyt og fritt, med nydelig utsikt mot sjøen - et sjeldent perle for deg som vil skape noe eget.
På eiendommen står en eldre hytte som bærer preg av høy alder og det må påregnes betydelige investeringer for dem som ønsker å bevare hele eller deler av dagens bygg. Selger har begrenset kunnskap om byggenes faktiske tilstand, og interessenter oppfordres derfor til å ta med egen bygningskyndig på befaring.
Tegninger av en ny hytte utarbeidet av arkitekt medfølger. Tegningene er ikke byggesøkt, og er ment som inspirasjon.
Selger har lagt ut bøye for stor båt på svai.
Salgsoppgaven beskriver vesentlig og lovpålagt informasjon om eiendommen
Se komplett salgsoppgaveNyttige lenker
Nærområdet
Leinæs & Partners
Annonseinformasjon
| FINN-kode | 411571498 |
|---|---|
| Sist endret | 12. okt. 2025 02:18 |
| Referanse | 22250096 |
Annonsene kan være mangelfulle i forhold til lovpålagt opplysningsplikt. Før bindende avtale inngås oppfordres interessenter til å innhente komplett informasjon fra meglerforetaket, selger eller utleier.









































