Bildegalleri

Velkommen til Kantarellen terrasse 29, presentert av Schala & Partners avd. Bjørvika / Gamle Oslo ved Hanna Skiaker, tlf. 93 00 00 35.
Inaktiv
# MORTENSRUD
Lys og innbydende 2-roms | Stor, innglasset terrasse | Egen hagedel | Garasjeplass | IN-ordning
Prisantydning3 400 000 kr
Nøkkelinfo
- Boligtype
- Leilighet
- Eieform
- Andel
- Soverom
- 1
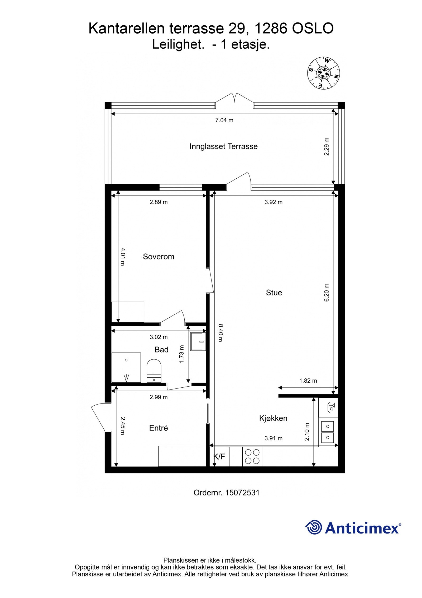
- Internt bruksareal
- 59 m² (BRA-i)
- Bruksareal
- 87 m²
- Eksternt bruksareal
- 10 m² (BRA-e)
- Innglasset balkong
- 18 m² (BRA-b)
- Etasje
- 1
- Byggeår
- 1988
- Energimerking
- E - Rød
- Rom
- 2
- Tomteareal
- 42 335 m² (eiet)
Fasiliteter
Balkong/Terrasse
Parkett
Heis
Barnevennlig
Rolig
Moderne
Garasje/P-plass
Turterreng
Vaktmester-/vektertjeneste
Visning
Vi oppfordrer til å benytte visningspåmelding, dette sikrer god oppfølging fra megler.
Ta gjerne kontakt med megler i forkant av visning dersom du har spørsmål.
Husk å lese salgsoppgaven før visningen.
Velkommen!
VisningspåmeldingOm boligen
Velkommen til en lys og romslig 2-roms tilhørende garasjeplass! Fra stuen er det utgang til en innglasset terrasse på hele 18 kvm med direkte utgang til hyggelig hageflekk. Boligen er beliggende i et lunt og tilbaketrukket boligområde på Mortensrud, her vil du trives!
- Lys og innbydende 2-roms
- Med tilhørende garasjeplass
- Innglasset balkong på 18 kvm
- Hyggelig hageflekk utenfor terrasse
- Romslig stue med gode møbleringsmuligheter
- Hyggelig soverom med garderobeskap
- Bad med opplegg for vaskemaskin
- Entré med gulvvarme og garderobeskap
- IN-ordning: F.kost kan red. til 4.632,-
- V.vann & fyring inkl. (a-konto)
- Ekstern bod på 10 kvm
NB: Knappen for å vise hele beskrivelsen har kun en visuell effekt.
NB: Knappen for å vise hele beskrivelsen har kun en visuell effekt.
Salgsoppgaven beskriver vesentlig og lovpålagt informasjon om eiendommen
Se komplett salgsoppgaveNyttige lenker
Nærområdet
Schala & Partners Bjørvika/Gamle Oslo
Verdien av lokalkunnskap
Annonseinformasjon
| FINN-kode | 413033793 |
|---|---|
| Sist endret | 30. juli 2025 09:34 |
| Referanse | 55250093 |
Annonsene kan være mangelfulle i forhold til lovpålagt opplysningsplikt. Før bindende avtale inngås oppfordres interessenter til å innhente komplett informasjon fra meglerforetaket, selger eller utleier.



































