Bildegalleri

Velkommen til et helt nytt og moderne enderekkehus i familievennlige omgivelser ved foten av marka.
Nytt og moderne enderekkehus med strøken standard, solrik terrasse og rolige, familievennlige omgivelser. Garasjeplass
Nøkkelinfo
- Boligtype
- Rekkehus
- Eieform
- Eier (Selveier)
- Soverom
- 3
- Internt bruksareal
- 96 m² (BRA-i)
- Bruksareal
- 101 m²
- Eksternt bruksareal
- 5 m² (BRA-e)
- Balkong/Terrasse
- 13 m² (TBA)
- Byggeår
- 2024
- Energimerking
- B - Mørkegrønn
- Rom
- 4
- Tomteareal
- 3 679 m² (eiet)
Fasiliteter
Visning
Om boligen
Bosett deg ved foten av marka, i et svært rolig og familievennlig boligområde mellom Steinan og Utleira. Boligområdet er helt nytt og har fellesareal i parkmessig utførelse med lekeapparater, ballbaner og turløypene innover Estenstadmarka som nærmeste nabo.
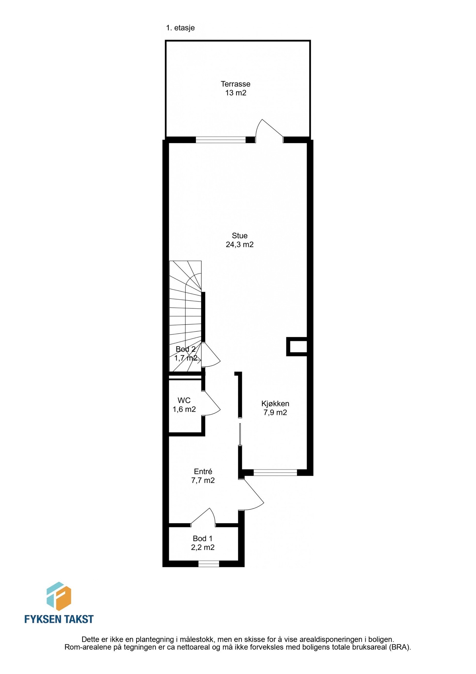
Rekkehuset har en fin planløsning over 2 plan og har en moderne standard. Lekre farge- og materialvalg.
Boligen har en herlig terrasse med glimrende solforhold. Det er totalt 3 soverom, hvor alle befinner seg i 2. etasjen sammen med et baderom. I hovedetasjen er det inngangsparti, gjestetoalett, stue, kjøkken og 2 boder. I tillegg følger det med én romslig sportsbod for oppbevaring ved garasjeanlegget.
Egen p-plass i oppvarmet garasjeanlegg med elbillader. Det er mulighet for kjøp av ekstra garasjeplass til rabatterte priser frem mot jul
Salgsoppgaven beskriver vesentlig og lovpålagt informasjon om eiendommen
Se komplett salgsoppgaveNyttige lenker
Nærområdet
Proaktiv Eiendomsmegling Trondheim Øst
Annonseinformasjon
| FINN-kode | 413440437 |
|---|---|
| Sist endret | 10. jan. 2026 03:16 |
| Referanse | 52250120 |
Annonsene kan være mangelfulle i forhold til lovpålagt opplysningsplikt. Før bindende avtale inngås oppfordres interessenter til å innhente komplett informasjon fra meglerforetaket, selger eller utleier.














































