Bildegalleri

Helge Børsand i Holmskau & Partners gleder seg til å vise deg Karlsøyveien 127
Karlsøya: Nybygget "funkishytte" m/ sjøutsikt, takterrasse, stor eiet & solrik tomt. Mulig båtplass
- Omkostninger
- 51 289 kr
- Totalpris
- 5 801 289 kr
- Kommunale avg.
- 11 008 kr per år
Nøkkelinfo
- Beliggenhet
- Ved sjøen
- Boligtype
- Hytte
- Eieform
- Eier (Selveier)
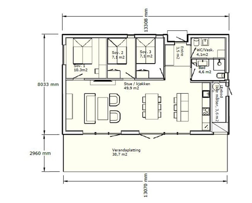
- Internt bruksareal
- 89 m² (BRA-i)
- Bruksareal
- 89 m²
- Balkong/Terrasse
- 50 m² (TBA)
- Tomteareal
- 1 198 m² (eiet)
- Byggeår
- 2025
- Soverom
- 3
- Rom
- 4
Fasiliteter
Visning
Husk å lese komplett salgsoppgave før visning. Bestill komplett, utskriftsvennlig salgsoppgave.
VisningspåmeldingOm boligen
Helge Børsand i Holmskau & Partners gleder seg til å vise deg denne nybygde, moderne og praktiske hytta på Nordre Karlsøy i Ullerøy i Sarpsborg. Den er ferdigstilt i juni 2025, og har en meget arealeffektiv & praktisk planløsning hvor lys & luft har vært i fokus. Det sosiale kjøkkenalrommet er perfekt for sosiale sammenkomster, og man kan åpne dører rett ut til terrassen/hagen. Det er 3 soverom, og i tillegg til det flotte, flislagte baderommet har man eget vaskerom med ekstra WC. Det er takterrasse for å utnytte sol, lys og utsiktsforholdene optimalt, men dette er tilgjengelig ellers også. Det er stor & eiet tomt med plass til flere biler, og denne kan du selv utvikle videre. Vil du nyte den fantastiske skjærgården i nærområdet kan eier leie ut en båtplass i hyggelig Nøtsund rett ved!
Salgsoppgaven beskriver vesentlig og lovpålagt informasjon om eiendommen
Se komplett salgsoppgaveNyttige lenker
Nærområdet
Holmskau & Partners
Annonseinformasjon
| FINN-kode | 414498669 |
|---|---|
| Sist endret | 17. jan. 2026 03:28 |
| Referanse | 194250076 |
Annonsene kan være mangelfulle i forhold til lovpålagt opplysningsplikt. Før bindende avtale inngås oppfordres interessenter til å innhente komplett informasjon fra meglerforetaket, selger eller utleier.
















































