Bildegalleri

Velkommen til Lijordveien 8 B presentert av Ellen Maxine Onsum Eiendomsmegler MNEF / Partner/DL
Solgt
Lijordet/Eiksmarka
3 roms leil med flotte detaljer! Peis. Balkong. Parkering.
Prisantydning4 950 000 kr
Nøkkelinfo
- Boligtype
- Leilighet
- Eieform
- Aksje
- Soverom
- 2
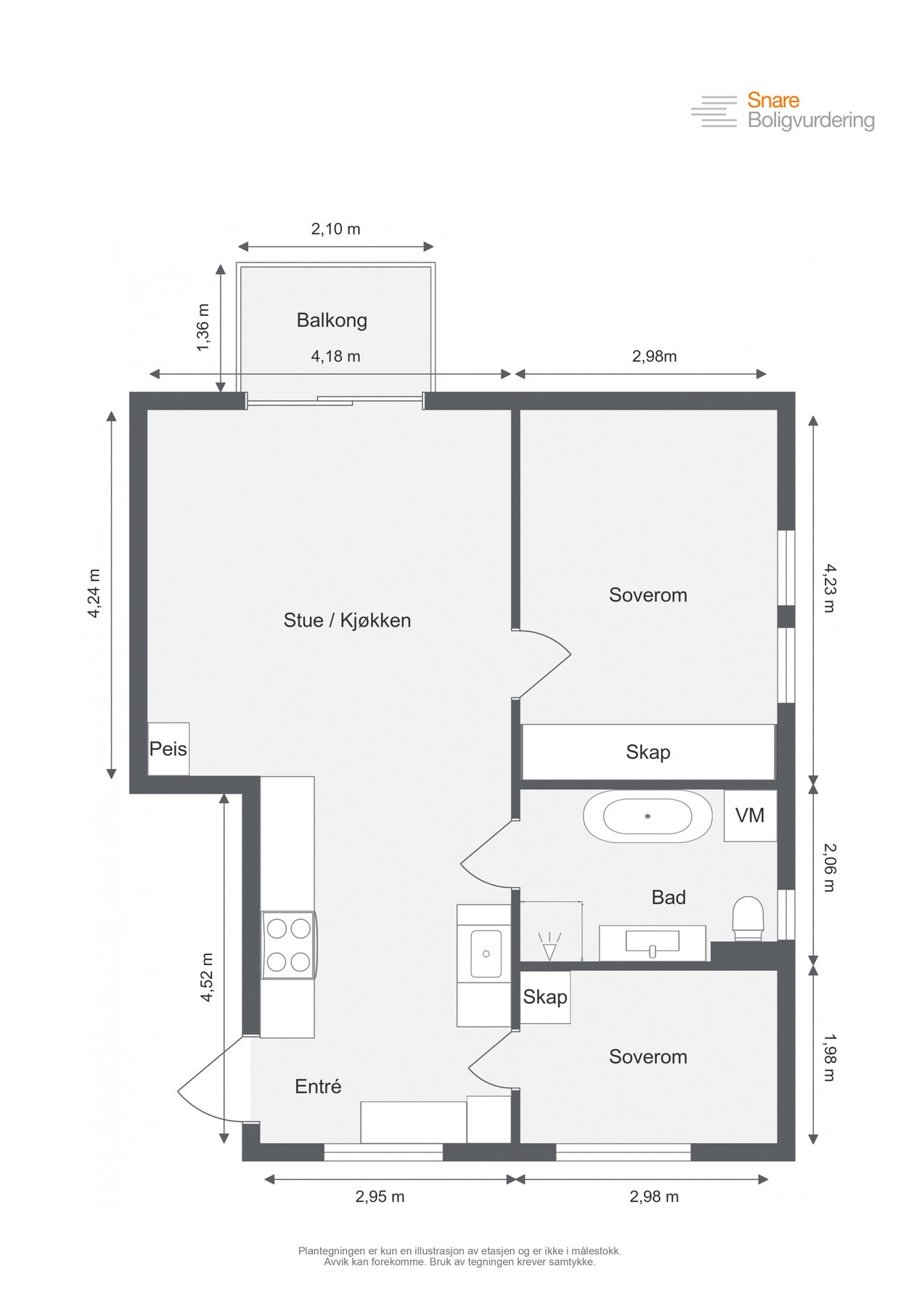
- Internt bruksareal
- 57 m² (BRA-i)
- Bruksareal
- 57 m²
- Balkong/Terrasse
- 3 m² (TBA)
- Etasje
- 2
- Byggeår
- 1953
- Energimerking
- G - Oransje
- Rom
- 3
- Tomteareal
- 25 163 m²
Fasiliteter
Barnevennlig
Balkong/Terrasse
Ingen gjenboere
Parkett
Peis/Ildsted
Sentralt
Moderne
Rolig
Om boligen
Lijordet/Eiksmarka - 3 roms leil med flotte detaljer! Peis. Balkong. Parkering.
Stor stue med utgang balkong
Balkong med ettermiddagssol
Peisovn i stue, merke Rais (dansk design, høy kvalitet)
Nytt kjøkken 2022 i åpen løsning. Ny stekeovn juni 2025.
Nytt bad 2022 med mange påkostede detaljer og løsninger, bl.a. marmorfliser på vegger og gulv.
2 soverom
Ny heltre eik parkett 2025 i stue/spisestue/kjøkken.
Alle flater foruten tak er malt i 2025.
Fliser over kjøkkenbenk og bak peis er håndlagde, norskproduserte
Biloppstillingsplass
Kort vei til "alt" skole, barnehage, nærbutikk, off komm. etc
Stor stue med utgang balkong
Balkong med ettermiddagssol
Peisovn i stue, merke Rais (dansk design, høy kvalitet)
Nytt kjøkken 2022 i åpen løsning. Ny stekeovn juni 2025.
Nytt bad 2022 med mange påkostede detaljer og løsninger, bl.a. marmorfliser på vegger og gulv.
2 soverom
Ny heltre eik parkett 2025 i stue/spisestue/kjøkken.
Alle flater foruten tak er malt i 2025.
Fliser over kjøkkenbenk og bak peis er håndlagde, norskproduserte
Biloppstillingsplass
Kort vei til "alt" skole, barnehage, nærbutikk, off komm. etc
NB: Knappen for å vise hele beskrivelsen har kun en visuell effekt.
NB: Knappen for å vise hele beskrivelsen har kun en visuell effekt.
Salgsoppgaven beskriver vesentlig og lovpålagt informasjon om eiendommen
Se komplett salgsoppgaveNærområdet
ASK Oslo Vest
Velkommen hjem
Annonseinformasjon
| FINN-kode | 415670258 |
|---|---|
| Sist endret | 14. aug. 2025 10:49 |
| Referanse | 76250009 |
Annonsene kan være mangelfulle i forhold til lovpålagt opplysningsplikt. Før bindende avtale inngås oppfordres interessenter til å innhente komplett informasjon fra meglerforetaket, selger eller utleier.























