Bildegalleri

Gunn Margit Andreassen v/Privatmegleren Hønefoss har gleden av å presentere Benterudstranda 9!
Solgt
Moderne sentrumsnær leilighet i 6. etasje m/ nydelig utsikt til elven, og stor tilhørende bod i kjeller. Heis i bygget
Prisantydning2 250 000 kr
Nøkkelinfo
- Boligtype
- Leilighet
- Eieform
- Eier (Selveier)
- Soverom
- 0
- Internt bruksareal
- 29 m² (BRA-i)
- Bruksareal
- 34 m²
- Eksternt bruksareal
- 5 m² (BRA-e)
- Byggeår
- 2021
- Energimerking
- A - Lysegrønn
- Rom
- 1
- Tomteareal
- 444 m² (eiet)
Fasiliteter
Heis
Offentlig vann/kloakk
Turterreng
Utsikt
Vaktmester-/vektertjeneste
Sentralt
Bredbåndstilknytning
Moderne
Balansert ventilasjon
Om boligen
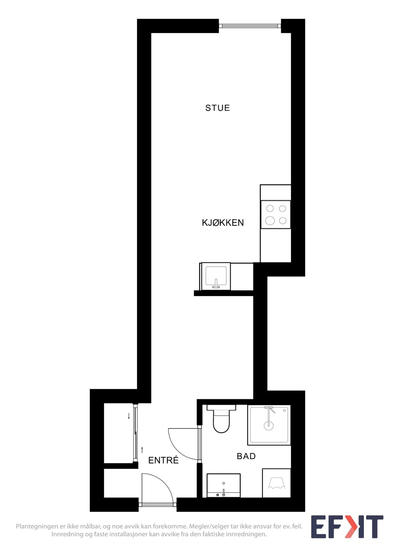
Velkommen til en moderne og arealeffektiv 1-roms leilighet med fantastisk utsikt i retning elven, beliggende i 6. etasje i Benterudstranda 9 - midt på populære Eikli. Her bor du sentralt, med gangavstand til alt Hønefoss har å by på, som butikker, kaféer, restauranter, treningssentre og kollektivtransport. Den urbane, men fredelige beliggenheten gjør hverdagen både enkel og behagelig.
Blokken har selvsagt heis, og mulighet for parkering i kjeller med eller uten elbil lader. Leiligheten holder en gjennomgående moderne standard og har fjernvarme, samt en praktisk planløsning med entré, bad/vaskerom, sovealkove, stue og kjøkken i åpen løsning, samt en stor tilhørende bod i kjeller. Store vindusflater gir godt med naturlig lys og utsyn over det flotte nærområdet. Her bor man med elven og naturen tett innpå seg.
Dette er en perfekt leilighet for deg som ønsker en lettstelt og moderne leilighet med byliv og bekvemmeligheter rett utenfor døren. Bør ses!
Husk å melde deg på visning!
Blokken har selvsagt heis, og mulighet for parkering i kjeller med eller uten elbil lader. Leiligheten holder en gjennomgående moderne standard og har fjernvarme, samt en praktisk planløsning med entré, bad/vaskerom, sovealkove, stue og kjøkken i åpen løsning, samt en stor tilhørende bod i kjeller. Store vindusflater gir godt med naturlig lys og utsyn over det flotte nærområdet. Her bor man med elven og naturen tett innpå seg.
Dette er en perfekt leilighet for deg som ønsker en lettstelt og moderne leilighet med byliv og bekvemmeligheter rett utenfor døren. Bør ses!
Husk å melde deg på visning!
NB: Knappen for å vise hele beskrivelsen har kun en visuell effekt.
NB: Knappen for å vise hele beskrivelsen har kun en visuell effekt.
Salgsoppgaven beskriver vesentlig og lovpålagt informasjon om eiendommen
Se komplett salgsoppgaveNyttige lenker
Nærområdet
Privatmegleren Hønefoss
Kun det beste på dine vegne
Annonseinformasjon
| FINN-kode | 417697463 |
|---|---|
| Sist endret | 02. sep. 2025 13:34 |
| Referanse | 14250135 |
Annonsene kan være mangelfulle i forhold til lovpålagt opplysningsplikt. Før bindende avtale inngås oppfordres interessenter til å innhente komplett informasjon fra meglerforetaket, selger eller utleier.






















