Bildegalleri

Madeleine Skjevik v/EIE eiendomsmegling har gleden av å presentere Åråsveien 28F!
Solgt
Velkommen til Kjeller!
SOLGT| Påkostet familiebolig over 3 plan | Sydvestvendt terrasse på 73 m² | Stor hage med lite innsyn
Prisantydning6 500 000 kr
Nøkkelinfo
- Boligtype
- Rekkehus
- Eieform
- Eier (Selveier)
- Soverom
- 3
- Internt bruksareal
- 102 m² (BRA-i)
- Bruksareal
- 117 m²
- Eksternt bruksareal
- 15 m² (BRA-e)
- Balkong/Terrasse
- 73 m² (TBA)
- Etasje
- 3
- Byggeår
- 1964
- Energimerking
- C - Oransje
- Rom
- 4
- Tomteareal
- 14 246 m² (eiet)
Fasiliteter
Barnevennlig
Balkong/Terrasse
Garasje/P-plass
Offentlig vann/kloakk
Sentralt
Moderne
Rolig
Om boligen
Madeleine Skjevik v/EIE Lillestrøm har gleden av å presentere Åråsveien 28F!
Dette er et påkostet familievennlige rekkehuset ligger i et attraktivt område på Kjeller i Lillestrøm, svært barnevennlig i en blindvei. Beliggenheten gir nærhet til alle nødvendige fasiliteter som offentlig transport, skoler, barnehager, samt tur- og rekreasjonsområder.
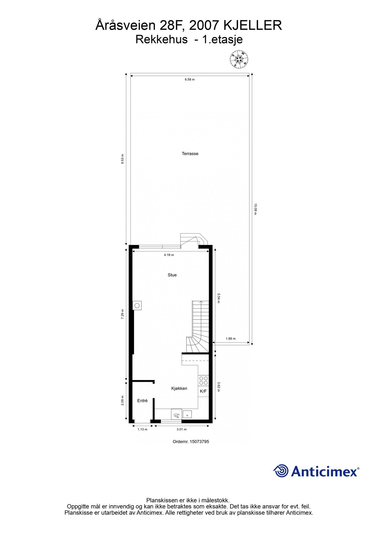
Ditt nye hjem har en spennende planløsning over tre plan, med utgang til terrasse og stor hage med lite innsyn fra første etasje. Boligen har blitt renovert de siste årene med blant annet ny kledning, isolasjon og vinduer i 2025.
Planløsningen inkluderer en åpen stue-/ kjøkkenløsning i hovedplanet, tre soverom og et lekkert bad i andre etasje, samt kjeller innredet som TV-stue. Boligen disponerer to eksterne kjellerboder og en garasjeplass i felles rekke. Det er også varmepumpe og balansert ventilasjon.
Velkommen til visning!
Dette er et påkostet familievennlige rekkehuset ligger i et attraktivt område på Kjeller i Lillestrøm, svært barnevennlig i en blindvei. Beliggenheten gir nærhet til alle nødvendige fasiliteter som offentlig transport, skoler, barnehager, samt tur- og rekreasjonsområder.
Ditt nye hjem har en spennende planløsning over tre plan, med utgang til terrasse og stor hage med lite innsyn fra første etasje. Boligen har blitt renovert de siste årene med blant annet ny kledning, isolasjon og vinduer i 2025.
Planløsningen inkluderer en åpen stue-/ kjøkkenløsning i hovedplanet, tre soverom og et lekkert bad i andre etasje, samt kjeller innredet som TV-stue. Boligen disponerer to eksterne kjellerboder og en garasjeplass i felles rekke. Det er også varmepumpe og balansert ventilasjon.
Velkommen til visning!
NB: Knappen for å vise hele beskrivelsen har kun en visuell effekt.
NB: Knappen for å vise hele beskrivelsen har kun en visuell effekt.
Salgsoppgaven beskriver vesentlig og lovpålagt informasjon om eiendommen
Se komplett salgsoppgaveNyttige lenker
Nærområdet
EIE eiendomsmegling Lillestrøm
Annonseinformasjon
| FINN-kode | 417982022 |
|---|---|
| Sist endret | 13. okt. 2025 09:30 |
| Referanse | 77250120 |
Annonsene kan være mangelfulle i forhold til lovpålagt opplysningsplikt. Før bindende avtale inngås oppfordres interessenter til å innhente komplett informasjon fra meglerforetaket, selger eller utleier.










































