Bildegalleri

Velkommen til Taranger 6, presentert av Remi Hereide ved Eiendomsmegler Norge!
Solgt
Torangsvåg
Eldre enebolig med flott utsikt og grense til sjø - Carport - 4 soverom - Oppussingsbehov!
Prisantydning1 890 000 kr
Nøkkelinfo
- Boligtype
- Enebolig
- Eieform
- Eier (Selveier)
- Soverom
- 4
- Internt bruksareal
- 104 m² (BRA-i)
- Bruksareal
- 151 m²
- Eksternt bruksareal
- 47 m² (BRA-e)
- Etasje
- 3
- Byggeår
- 1957
- Energimerking
- F - Gul
- Rom
- 5
- Tomteareal
- 600 m² (eiet)
Fasiliteter
Balkong/Terrasse
Barnevennlig
Garasje/P-plass
Rolig
Utsikt
Fiskemulighet
Turterreng
Om boligen
Velkommen til Taranger 6!
Eiendommen har en landlig og naturskjønn beliggenhet på Torangsvåg på Hundvåkøy, like ved med sjø, fotballbane, ballbinge og aktivitetspark. Fra eiendommen er det ca. 7 minutters kjøretid til Storebø hvor man finner det meste av servicetilbud, med blant annet skole, dagligvare og barnehage. Boligen er sør-øst vendt og byr på en flott utsikt over nærområdet, sjø og flott natur. Det er gode turmuligheter i nærområdet. Boligen holder en eldre standard og trenger oppussing.
- Usjenert eiendom med lite innsyn
- Stort potensiale, her kan man skape sitt drømmehjem
- 4 soverom
- Fine sol- og utsiktsforhold
- Carport
- Stor altan på ca. 40 m²
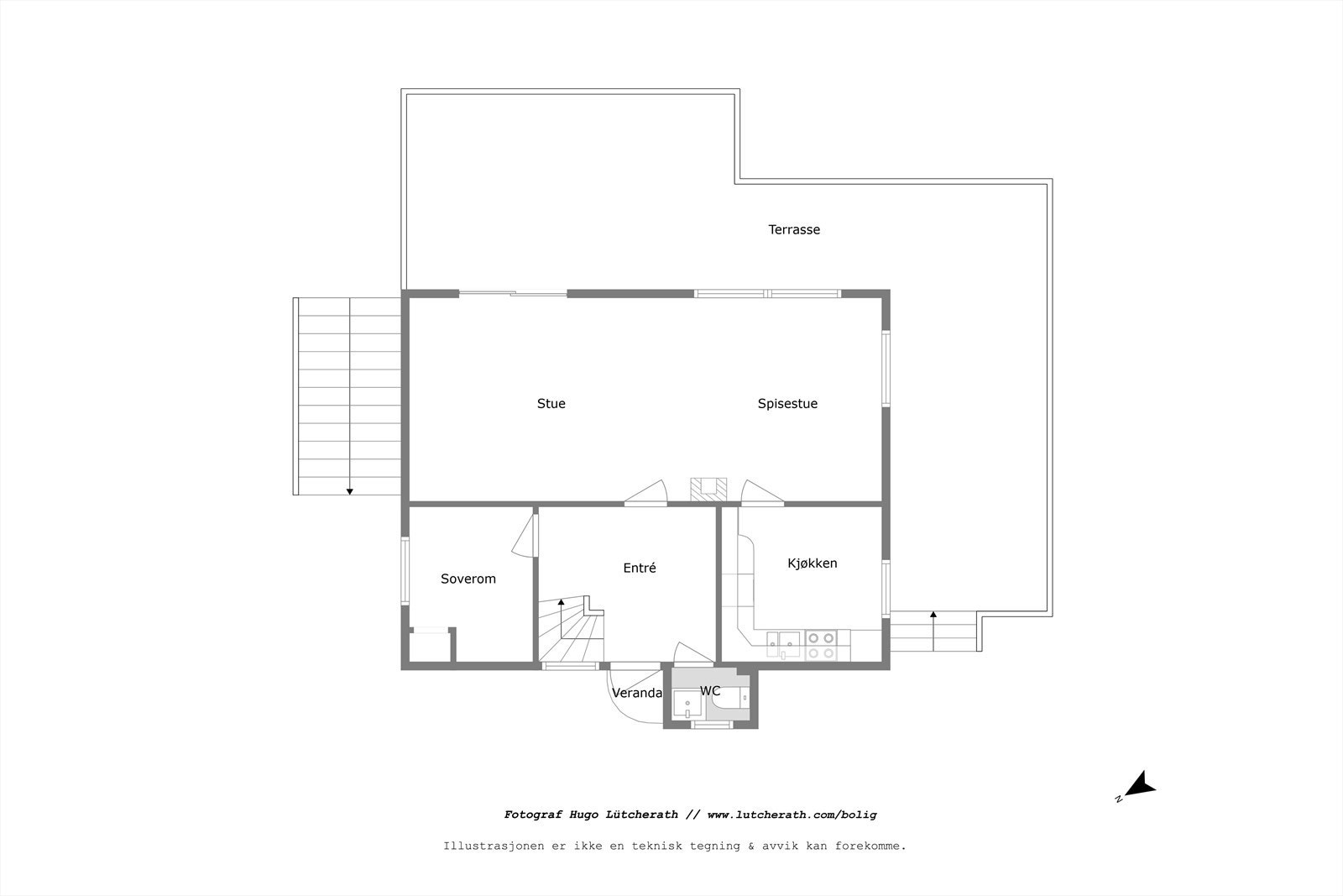
Innhold:
1. et: Entré m/trapp, stue, kjøkken, soverom, toalettrom
2. et: Gang m/trapp, 3 soverom, bad
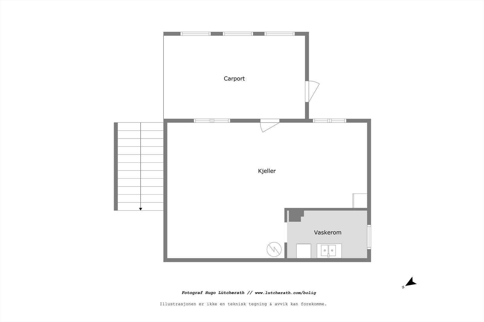
Kjeller: 2 kjellerrom
Eiendommen har en landlig og naturskjønn beliggenhet på Torangsvåg på Hundvåkøy, like ved med sjø, fotballbane, ballbinge og aktivitetspark. Fra eiendommen er det ca. 7 minutters kjøretid til Storebø hvor man finner det meste av servicetilbud, med blant annet skole, dagligvare og barnehage. Boligen er sør-øst vendt og byr på en flott utsikt over nærområdet, sjø og flott natur. Det er gode turmuligheter i nærområdet. Boligen holder en eldre standard og trenger oppussing.
- Usjenert eiendom med lite innsyn
- Stort potensiale, her kan man skape sitt drømmehjem
- 4 soverom
- Fine sol- og utsiktsforhold
- Carport
- Stor altan på ca. 40 m²
Innhold:
1. et: Entré m/trapp, stue, kjøkken, soverom, toalettrom
2. et: Gang m/trapp, 3 soverom, bad
Kjeller: 2 kjellerrom
NB: Knappen for å vise hele beskrivelsen har kun en visuell effekt.
NB: Knappen for å vise hele beskrivelsen har kun en visuell effekt.
Salgsoppgaven beskriver vesentlig og lovpålagt informasjon om eiendommen
Se komplett salgsoppgaveNyttige lenker
Nærområdet
Eiendomsmegler Norge Nesttun
Best der du bor
Annonsene kan være mangelfulle i forhold til lovpålagt opplysningsplikt. Før bindende avtale inngås oppfordres interessenter til å innhente komplett informasjon fra meglerforetaket, selger eller utleier.









































