Bildegalleri

Velkommen til Trondheimsveien 197A, presentert av Schala & Partners ved Henrik Jensen, tlf. 996 92 427.
Innbydende og romslig 2-roms med fantastisk utsikt | Heis | Varmtvann inkl. | Felles takterrasse | Mulig garasjeleie!
Nøkkelinfo
- Boligtype
- Leilighet
- Eieform
- Eier (Selveier)
- Soverom
- 1
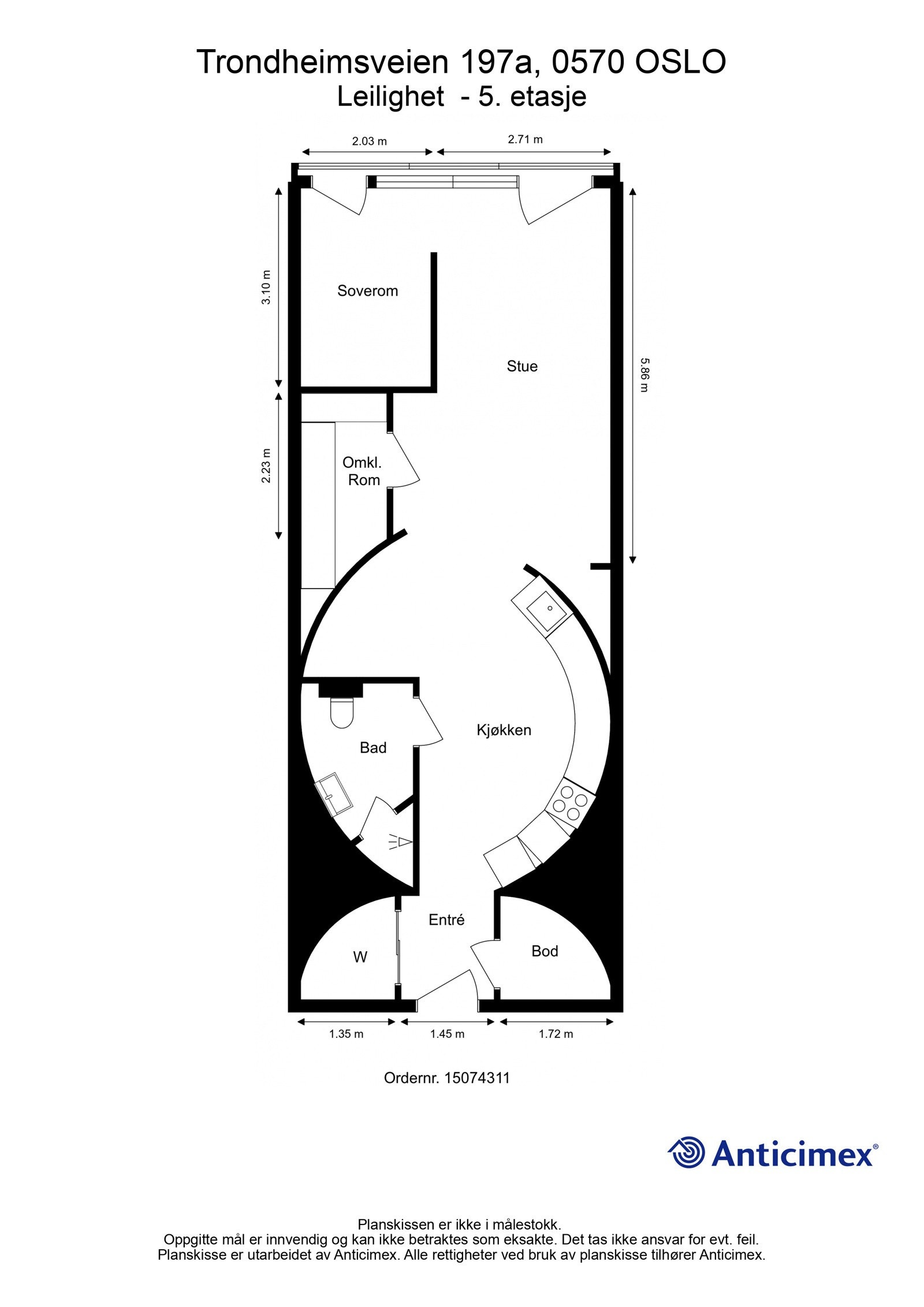
- Internt bruksareal
- 58 m² (BRA-i)
- Bruksareal
- 62 m²
- Eksternt bruksareal
- 4 m² (BRA-e)
- Etasje
- 5
- Byggeår
- 2003
- Energimerking
- D - Rød
- Rom
- 2
- Tomteareal
- 6 814 m² (eiet)
Fasiliteter
Om boligen
Velkommen til en lys og innbydende 2-roms utsiktsleilighet på toppen av Torshovdalen. Leiligheten ligger fint til i byggets 5.etasje godt skjermet fra både innsyn og støy. Det er store, takhøye vindusflater med fantastisk utsikt. Her bor du i et av Oslos mest karakteristiske bygg, opprinnelig en kornsilo.
- Leiligheten ble omgjort fra næring til bolig i 2003
- Unik planløsning
- Store vindusflater med fantastisk utsikt
- Ingen gjenboere
- Sparklet og malt i 2025
- Innvendig bod og walk-in closet
- Lave felleskostnader
- Varmtvann og bredbånd inkl.
- Heisadkomst
- Kjellerbod
- En av Oslos råeste takterrasser på toppen av bygget
- Garasjeanlegg med mulighet for leie
- Nærhet til buss, trikk, T-bane og flybuss
Salgsoppgaven beskriver vesentlig og lovpålagt informasjon om eiendommen
Se komplett salgsoppgaveNyttige lenker
Nærområdet
Schala & Partners Bjørvika/Gamle Oslo
Prisstatistikk
Trondheimsveien 197A
på annonsen
prisantydning per kvadratmeter
Prisfordeling
Pris per m² ligger 24 359 kr under snittet for leiligheter i Helsfyr - Sinsen.
Grafen viser antall leiligheter solgt i Helsfyr - Sinsen siste året fordelt på pris per m² - totalt 1 699 leiligheter
Antall boliger
Kvadratmeterpris tilsvarer prisantydning pluss fellesgjeld per kvadratmeter (p-rom eller BRA-i). Prisene i grafen er avrundet til nærmeste 1000 kr.
Annonseinformasjon
| FINN-kode | 420826132 |
|---|---|
| Sist endret | 17. aug. 2025 16:34 |
| Referanse | 55250059 |
Annonsene kan være mangelfulle i forhold til lovpålagt opplysningsplikt. Før bindende avtale inngås oppfordres interessenter til å innhente komplett informasjon fra meglerforetaket, selger eller utleier.





























