Bildegalleri

Velkommen til Hansteens gate 3, presentert av Frederik Langsø ved Nordvik Bygdøy allé.
Solgt
Vika
Tiltalende og lys 2-roms selveier med solrik balkong. Heis. V.vann inkl. Ettertraktet beliggenhet, sentralt og skjermet
Prisantydning5 100 000 kr
Nøkkelinfo
- Boligtype
- Leilighet
- Eieform
- Eier (Selveier)
- Soverom
- 1
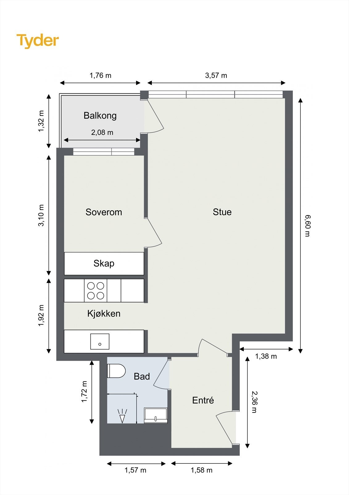
- Internt bruksareal
- 42 m² (BRA-i)
- Bruksareal
- 44 m²
- Eksternt bruksareal
- 2 m² (BRA-e)
- Balkong/Terrasse
- 2 m² (TBA)
- Etasje
- 3
- Byggeår
- 1972
- Energimerking
- E - Rød
- Rom
- 2
- Tomteareal
- 603 m² (eiet)
Fasiliteter
Balkong/Terrasse
Barnevennlig
Bredbåndstilknytning
Fellesvaskeri
Heis
Kjæledyr tillatt
Ingen gjenboere
Kabel-TV
Offentlig vann/kloakk
Parkett
Rolig
Sentralt
Utsikt
Vaktmester-/vektertjeneste
Om boligen
Tiltalende og lys 2-roms selveier med heis og solrik balkong. Boligen har store vindusflater, høy standard og optimal planløsning. Oppgradert den siste tiden med bl.a.
2022: Nytt kjøleskap + stekeovn
2021: Pusset opp bad med nye overflater og innredning/sanitærutstyr
2019: Terrassebord
2018: Varmekabler og fliser i entré. Malt vegger + tak, enstavsparkett og nye kjøkkenfronter
Legg merke til:
- Heis
- Høy standard
- Balkong m/morgen- og formiddagssol
- Opplegg for vaskemaskin
- V.vann og internett inkl
- Sporadisk mulig å kjøpe/leie p.plass i bygget
- Bod
Flott beliggenhet på Vika med "alt" av servicetilbud og kollektivtransport i nærheten. Steinkast fra Slottet, Aker Brygge, Sommerro og Via Vika. Stort tilbud av restauranter og kafeer samt både grøntområder og sjøen rett i nærheten.
2022: Nytt kjøleskap + stekeovn
2021: Pusset opp bad med nye overflater og innredning/sanitærutstyr
2019: Terrassebord
2018: Varmekabler og fliser i entré. Malt vegger + tak, enstavsparkett og nye kjøkkenfronter
Legg merke til:
- Heis
- Høy standard
- Balkong m/morgen- og formiddagssol
- Opplegg for vaskemaskin
- V.vann og internett inkl
- Sporadisk mulig å kjøpe/leie p.plass i bygget
- Bod
Flott beliggenhet på Vika med "alt" av servicetilbud og kollektivtransport i nærheten. Steinkast fra Slottet, Aker Brygge, Sommerro og Via Vika. Stort tilbud av restauranter og kafeer samt både grøntområder og sjøen rett i nærheten.
NB: Knappen for å vise hele beskrivelsen har kun en visuell effekt.
NB: Knappen for å vise hele beskrivelsen har kun en visuell effekt.
Salgsoppgaven beskriver vesentlig og lovpålagt informasjon om eiendommen
Se komplett salgsoppgaveNyttige lenker
Nærområdet
Nordvik Bygdøy Allé
Annonseinformasjon
| FINN-kode | 421161634 |
|---|---|
| Sist endret | 22. okt. 2025 08:52 |
| Referanse | 13-0382/25 |
Annonsene kan være mangelfulle i forhold til lovpålagt opplysningsplikt. Før bindende avtale inngås oppfordres interessenter til å innhente komplett informasjon fra meglerforetaket, selger eller utleier.




























