Bildegalleri

Velkommen til Gladengveien 12A - Presentert av Emil Jacobsen i Nordvik Bolig
Solgt
Moderne og stilren 2-roms i 3.etg fra 2024 - Balkong med gode solforhold - IN-ordning - Felles takterrasse
Prisantydning2 950 000 kr
Nøkkelinfo
- Boligtype
- Leilighet
- Eieform
- Andel
- Soverom
- 1
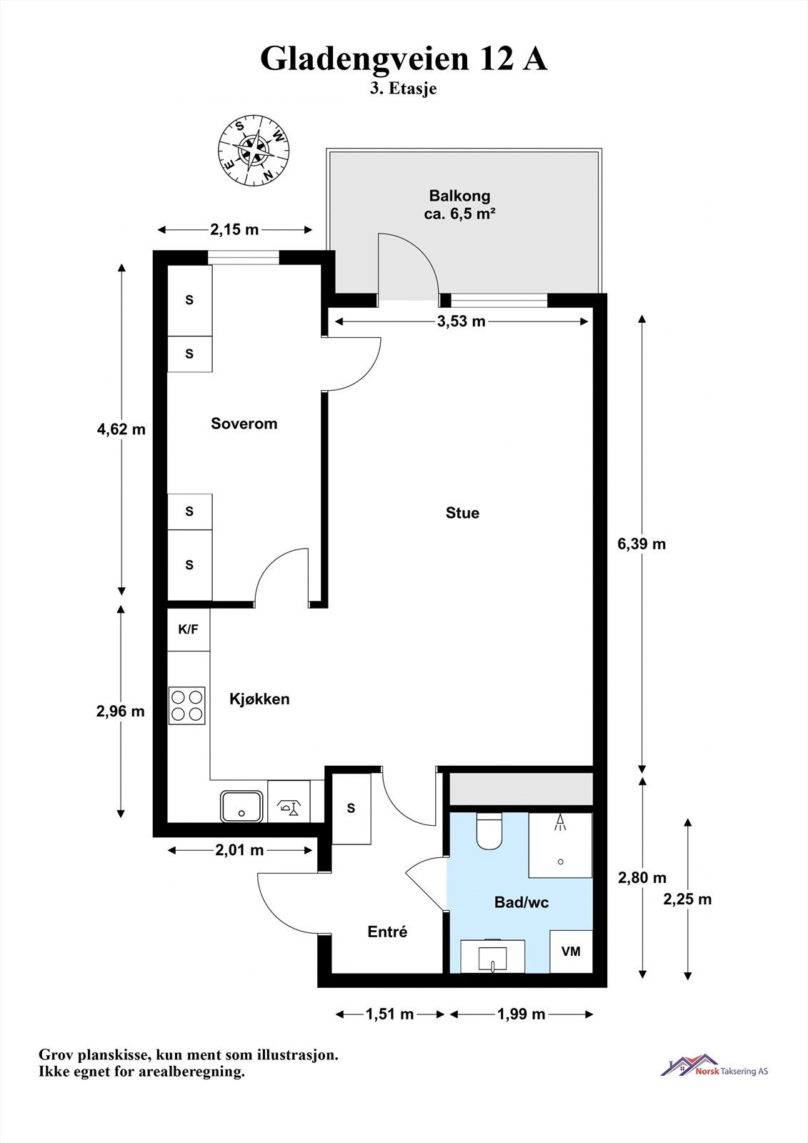
- Internt bruksareal
- 51 m² (BRA-i)
- Bruksareal
- 56 m²
- Eksternt bruksareal
- 5 m² (BRA-e)
- Balkong/Terrasse
- 7 m² (TBA)
- Etasje
- 3
- Byggeår
- 2024
- Energimerking
- C - Mørkegrønn
- Rom
- 2
- Tomteareal
- 6 342 m² (eiet)
Fasiliteter
Takterrasse
Balkong/Terrasse
Barnevennlig
Bredbåndstilknytning
Heis
Offentlig vann/kloakk
Parkett
Rolig
Sentralt
Utsikt
Balansert ventilasjon
Om boligen
Velkommen til en moderne, lys og stilren 2-roms leilighet med gode løsninger og kvalitetsmaterialer. Bygget sto nytt i 2024 og er sentralt plassert i forhold til offentlig transport og gode servicetilbud. Innvendig har boligen en gjennomgående høy standard og god planløsning. Sydvestvendt balkong på ca. 7 kvm med hyggelig utsyn og gode solforhold.
Kort fortalt:
Kort fortalt:
- Nyere og lekker 2-roms med heisadkomst
- Romslig balkong med gode solforhold
- Moderne kjøkken med integrerte hvitevarer
- Ingen forkjøpsrett
- Lave kjøpsomkostninger (ingen dokumentavgift)
- Bygg fra 2024 med utbyggergaranti
- IN-ordning (Senk de månedlige felleskostnadene)
- TEK 17 (Godt isolert og energivennlig)
- Felles takterrasse med gode solforhold
Velkommen til en hyggelig visning!
NB: Knappen for å vise hele beskrivelsen har kun en visuell effekt.
NB: Knappen for å vise hele beskrivelsen har kun en visuell effekt.
Salgsoppgaven beskriver vesentlig og lovpålagt informasjon om eiendommen
Se komplett salgsoppgaveNyttige lenker
Nærområdet
Nordvik Løren
Annonseinformasjon
| FINN-kode | 421290844 |
|---|---|
| Sist endret | 31. okt. 2025 13:18 |
| Referanse | 21-0216/25 |
Annonsene kan være mangelfulle i forhold til lovpålagt opplysningsplikt. Før bindende avtale inngås oppfordres interessenter til å innhente komplett informasjon fra meglerforetaket, selger eller utleier.










































