Bildegalleri

Solgt
Reddal
Renoveringsobjekt på solrik tomt i landlige omgivelser
Prisantydning1 500 000 kr
Nøkkelinfo
- Boligtype
- Enebolig
- Eieform
- Eier (Selveier)
- Soverom
- 6
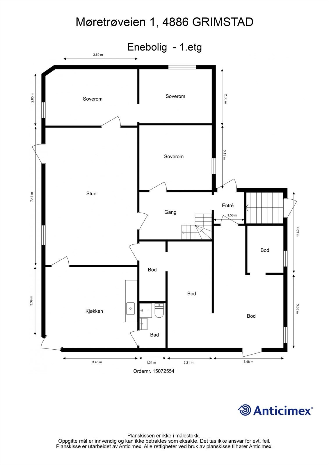
- Internt bruksareal
- 363 m² (BRA-i)
- Bruksareal
- 556 m²
- Eksternt bruksareal
- 193 m² (BRA-e)
- Balkong/Terrasse
- 7 m² (TBA)
- Byggeår
- 1936
- Energimerking
- G - Rød
- Tomteareal
- 1 536 m² (eiet)
Fasiliteter
Barnevennlig
Garasje/P-plass
Hage
Rolig
Turterreng
Om boligen
Eiendom med solrik tomt på omtrent 1,5 mål, beliggende i landlige og rolig omgivelser. Eiendommen består av romslig enebolig og frittl. uthus som begge trenger renovering.
Tomten har lett adkomst fra vei, byr på gode solforhold, og har fine muligheter for opparbeidelse av hage med dyrking og beplantninger.
Beliggenheten gir enkel tilgang til daglige gjøremål med ca. 10 minutters kjøring til Grimstad sentrum.
Reddal er kjent for sitt fine kulturlandskap, dyrking og åpne jorder. I nærheten ligger Reddalsvannet, et populært område for bl.a bading og padling. Det finnes også flere turmuligheter i nærområdet, både til fots og på sykkel, som gir gode muligheter for friluftsliv året.
Tomten har lett adkomst fra vei, byr på gode solforhold, og har fine muligheter for opparbeidelse av hage med dyrking og beplantninger.
Beliggenheten gir enkel tilgang til daglige gjøremål med ca. 10 minutters kjøring til Grimstad sentrum.
Reddal er kjent for sitt fine kulturlandskap, dyrking og åpne jorder. I nærheten ligger Reddalsvannet, et populært område for bl.a bading og padling. Det finnes også flere turmuligheter i nærområdet, både til fots og på sykkel, som gir gode muligheter for friluftsliv året.
NB: Knappen for å vise hele beskrivelsen har kun en visuell effekt.
NB: Knappen for å vise hele beskrivelsen har kun en visuell effekt.
Salgsoppgaven beskriver vesentlig og lovpålagt informasjon om eiendommen
Se komplett salgsoppgaveNyttige lenker
Nærområdet
Krogsveen Arendal
Velkommen til en enklere boligreise.
Annonseinformasjon
| FINN-kode | 421662145 |
|---|---|
| Sist endret | 07. sep. 2025 13:59 |
| Referanse | KR47.2597 |
Annonsene kan være mangelfulle i forhold til lovpålagt opplysningsplikt. Før bindende avtale inngås oppfordres interessenter til å innhente komplett informasjon fra meglerforetaket, selger eller utleier.















