Bildegalleri

Frida Henriksveen v/Lokalmegleren & Partners har gleden av å presentere Bergvinvegen 48!
Solgt
Lunde
Sjarmerende og innholdsrik enebolig med 3 soverom, stor stue og dobbel garasje. Flott tomt på 1,8 mål!
Prisantydning1 890 000 kr
Nøkkelinfo
- Boligtype
- Enebolig
- Eieform
- Eier (Selveier)
- Soverom
- 3
- Internt bruksareal
- 230 m² (BRA-i)
- Bruksareal
- 266 m²
- Eksternt bruksareal
- 36 m² (BRA-e)
- Balkong/Terrasse
- 13 m² (TBA)
- Etasje
- 2
- Byggeår
- 1965
- Energimerking
- G - Gul
- Rom
- 5
- Tomteareal
- 1 886 m² (eiet)
Fasiliteter
Barnevennlig
Balkong/Terrasse
Garasje/P-plass
Offentlig vann/kloakk
Ingen gjenboere
Peis/Ildsted
Turterreng
Utsikt
Rolig
Om boligen
Innholdsrik bolig fra 1965 beliggende på Bjervafeltet med stor hage og masse sjarm. Passende for barnefamilier med ypperlig plassering i Lunde. Boligen har to etasjer med tre soverom, to toalettrom og flere oppbevaringsrom - og dobbel garasje! Boligen har eldre standard.
Boligen ligger på en hjørnetomt og grenser mot friarealer mot sør - noe som gir lite innsyn og mye privatliv. Beliggende med gåavstand til Lunde sentrum, er det kort vei til butikker og fasiliteter.
Boligen inneholder følgende:
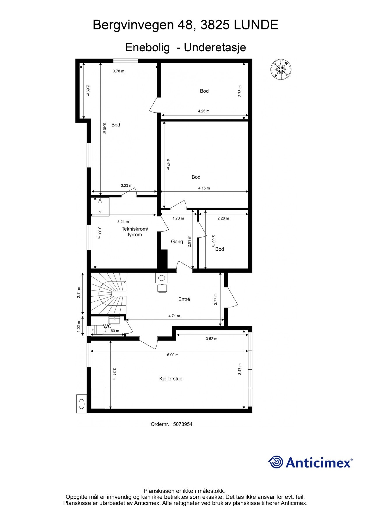
Underetasje med entre, kjellerstue, toalett, gang, fyrrom/tekniskrom og 4 boder.
Hovedetasje med gang, bad, toalett, tre soverom, stue kjøkken, vaskrom og bod.
Velkommen til visning!
Boligen ligger på en hjørnetomt og grenser mot friarealer mot sør - noe som gir lite innsyn og mye privatliv. Beliggende med gåavstand til Lunde sentrum, er det kort vei til butikker og fasiliteter.
Boligen inneholder følgende:
Underetasje med entre, kjellerstue, toalett, gang, fyrrom/tekniskrom og 4 boder.
Hovedetasje med gang, bad, toalett, tre soverom, stue kjøkken, vaskrom og bod.
Velkommen til visning!
NB: Knappen for å vise hele beskrivelsen har kun en visuell effekt.
NB: Knappen for å vise hele beskrivelsen har kun en visuell effekt.
Salgsoppgaven beskriver vesentlig og lovpålagt informasjon om eiendommen
Se komplett salgsoppgaveNærområdet
Lokalmegleren & Partners
Verdien av lokalkunnskap
Annonseinformasjon
| FINN-kode | 421668766 |
|---|---|
| Sist endret | 14. okt. 2025 12:10 |
| Referanse | 48250087 |
Annonsene kan være mangelfulle i forhold til lovpålagt opplysningsplikt. Før bindende avtale inngås oppfordres interessenter til å innhente komplett informasjon fra meglerforetaket, selger eller utleier.















































