Bildegalleri

Velkommen til denne spennende delen av tomannsbolig i sentrum - Presentert av eiendomsmegler Christoffer Ryan
Solgt
Sentrum
Spennende eierseksjon bestående av 2 stk. 3-romsleiligheter. Gode leieinntekter.
Prisantydning5 950 000 kr
Nøkkelinfo
- Boligtype
- Leilighet
- Eieform
- Eier (Selveier)
- Soverom
- 3
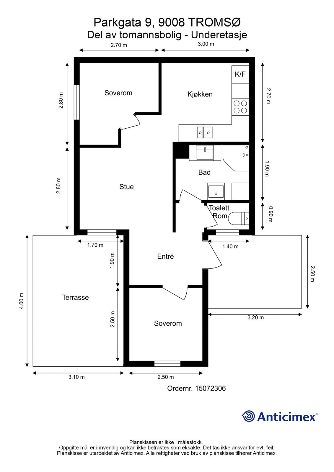
- Internt bruksareal
- 97 m² (BRA-i)
- Bruksareal
- 99 m²
- Eksternt bruksareal
- 2 m² (BRA-e)
- Balkong/Terrasse
- 18 m² (TBA)
- Etasje
- 2
- Byggeår
- 1925
- Energimerking
- G - Oransje
- Rom
- 6
- Tomteareal
- 250 m² (eiet)
Fasiliteter
Balkong/Terrasse
Barnevennlig
Bredbåndstilknytning
Garasje/P-plass
Hage
Kjæledyr tillatt
Offentlig vann/kloakk
Parkett
Peis/Ildsted
Rolig
Sentralt
Om boligen
Velkommen til Parkgata 9, en spennende eierseksjon bestående av 2 innredede leiligheter (3-roms og 2(3)-roms.
Eiendommen ligger i øvre del av Tromsø sentrum og kort vei til alle sentrums fasiliteter.
Begge leilighetene er lys og innbydende og har fine kjøkken og dels malte overflater.
Boligen har vært leid ut i sin helhet og bringer inn gode inntekter.
* Utebod
* Terrasse i begge etasjene
* Parkering på eiendommens nordside
* Gjort oppussing nå også i 2025
* Felles uteområde for begge seksjoner nedenfor bygget (ikke i bruk - potensiale)
* Klar for snarlig overtagelse
* Takoverbygget altan med plass til møbler
* Gangavstand til alle sentrums fasiliteter
* Gode kollektivforbindelser til UNN / UiT
For den eller de som ønsker å bo rimelig, eller å anskaffe seg en spennende utleiebolig.
Eiendommen ligger i øvre del av Tromsø sentrum og kort vei til alle sentrums fasiliteter.
Begge leilighetene er lys og innbydende og har fine kjøkken og dels malte overflater.
Boligen har vært leid ut i sin helhet og bringer inn gode inntekter.
* Utebod
* Terrasse i begge etasjene
* Parkering på eiendommens nordside
* Gjort oppussing nå også i 2025
* Felles uteområde for begge seksjoner nedenfor bygget (ikke i bruk - potensiale)
* Klar for snarlig overtagelse
* Takoverbygget altan med plass til møbler
* Gangavstand til alle sentrums fasiliteter
* Gode kollektivforbindelser til UNN / UiT
For den eller de som ønsker å bo rimelig, eller å anskaffe seg en spennende utleiebolig.
NB: Knappen for å vise hele beskrivelsen har kun en visuell effekt.
NB: Knappen for å vise hele beskrivelsen har kun en visuell effekt.
Salgsoppgaven beskriver vesentlig og lovpålagt informasjon om eiendommen
Se komplett salgsoppgaveNærområdet
Hjem Eiendomsmegling
Annonseinformasjon
| FINN-kode | 422004660 |
|---|---|
| Sist endret | 14. sep. 2025 13:34 |
| Referanse | 1-0182/25 |
Annonsene kan være mangelfulle i forhold til lovpålagt opplysningsplikt. Før bindende avtale inngås oppfordres interessenter til å innhente komplett informasjon fra meglerforetaket, selger eller utleier.









































