Bildegalleri

Velkommen til Fredbos vei 53. Romslig 4-roms leilighet med god planløsning og garasjeplass.
Solgt
ASKER
4-roms selveierleilighet| 8 kvm vestvendt balkong | Nydelig utsikt | 3 sov | Parkeringsplass i garasjeanlegg |
Prisantydning3 800 000 kr
Nøkkelinfo
- Boligtype
- Leilighet
- Eieform
- Eier (Selveier)
- Soverom
- 3
- Internt bruksareal
- 74 m² (BRA-i)
- Bruksareal
- 81 m²
- Eksternt bruksareal
- 7 m² (BRA-e)
- Balkong/Terrasse
- 8 m² (TBA)
- Etasje
- 6
- Byggeår
- 1973
- Rom
- 4
- Tomteareal
- 19 245 m² (eiet)
Fasiliteter
Barnevennlig
Balkong/Terrasse
Garasje/P-plass
Kabel-TV
Heis
Offentlig vann/kloakk
Turterreng
Utsikt
Vaktmester-/vektertjeneste
Sentralt
Bredbåndstilknytning
Rolig
Om boligen
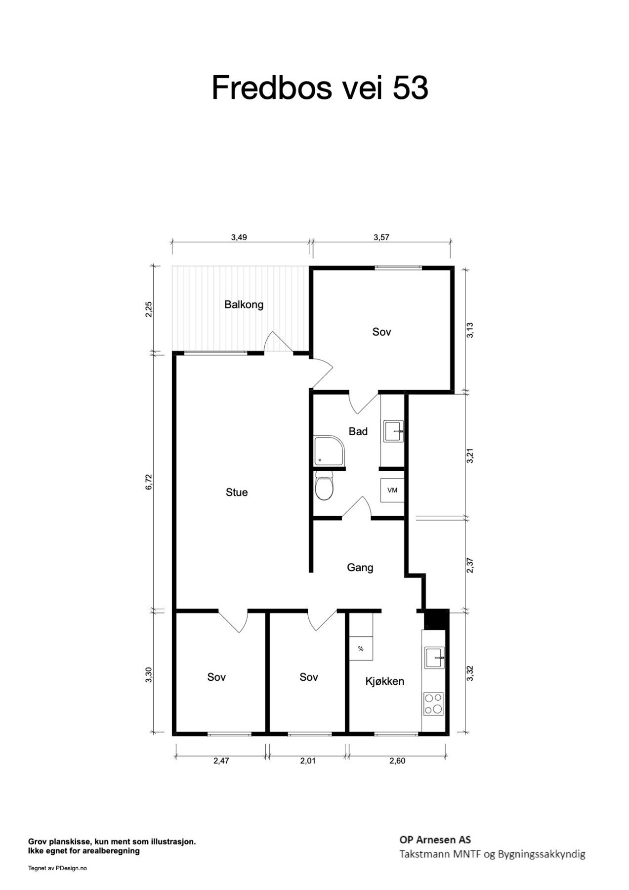
Velkommen til Fredbos vei 53. En lys og romslig 4-roms eierseksjon i 6. etasje på Hagaløkka, med flott utsikt, gode solforhold og vestvendt, overbygget balkong på 8 kvm. Planløsningen består av entré, bad/WC, kjøkken, stue og tre soverom. Leiligheten trenger generell modernisering. Det medfølger to kjellerboder på til sammen 7 kvm samt parkeringsplass i felles garasjeanlegg.
Beliggenheten er både sentral og fredelig, med kort vei til Asker sentrum, skoler, barnehager, dagligvare og kollektivtransport. Området er bilfritt og barnevennlig, med grønne fellesarealer, lekeplasser og trygge gangveier
Høydepunkter
- 4-roms selveierleilighet
- Praktisk planløsning
- Moderniseringsbehov
- 8 kvm vestvendt balkong
- Nydelig utsikt
- 3 soverom
- Sentralt og barnevennlig
- Gode kollektive forbindelser
Mangler du egenkapital? Boligen kan kjøpes med Finit Deleie.
Beliggenheten er både sentral og fredelig, med kort vei til Asker sentrum, skoler, barnehager, dagligvare og kollektivtransport. Området er bilfritt og barnevennlig, med grønne fellesarealer, lekeplasser og trygge gangveier
Høydepunkter
- 4-roms selveierleilighet
- Praktisk planløsning
- Moderniseringsbehov
- 8 kvm vestvendt balkong
- Nydelig utsikt
- 3 soverom
- Sentralt og barnevennlig
- Gode kollektive forbindelser
Mangler du egenkapital? Boligen kan kjøpes med Finit Deleie.
NB: Knappen for å vise hele beskrivelsen har kun en visuell effekt.
NB: Knappen for å vise hele beskrivelsen har kun en visuell effekt.
Salgsoppgaven beskriver vesentlig og lovpålagt informasjon om eiendommen
Se komplett salgsoppgaveNyttige lenker
Nærområdet
EIE eiendomsmegling Bærum
Annonseinformasjon
| FINN-kode | 422562465 |
|---|---|
| Sist endret | 06. okt. 2025 17:39 |
| Referanse | 36251485 |
Annonsene kan være mangelfulle i forhold til lovpålagt opplysningsplikt. Før bindende avtale inngås oppfordres interessenter til å innhente komplett informasjon fra meglerforetaket, selger eller utleier.



























