Bildegalleri

Velkommen til Jørgen Kanitz gate 20 (FOTO: Junaid Hanif, Diakrit AS)
Solgt
Sandvika
DELIKAT 2-ROMS|BALKONG MED TOPP UTSIKT & SOLFORHOLD|GARASJE*|12 MIN TIL OSLO|NYE HELGERUDKVARTALET
Prisantydning6 790 000 kr
Nøkkelinfo
- Boligtype
- Leilighet
- Eieform
- Eier (Selveier)
- Soverom
- 1
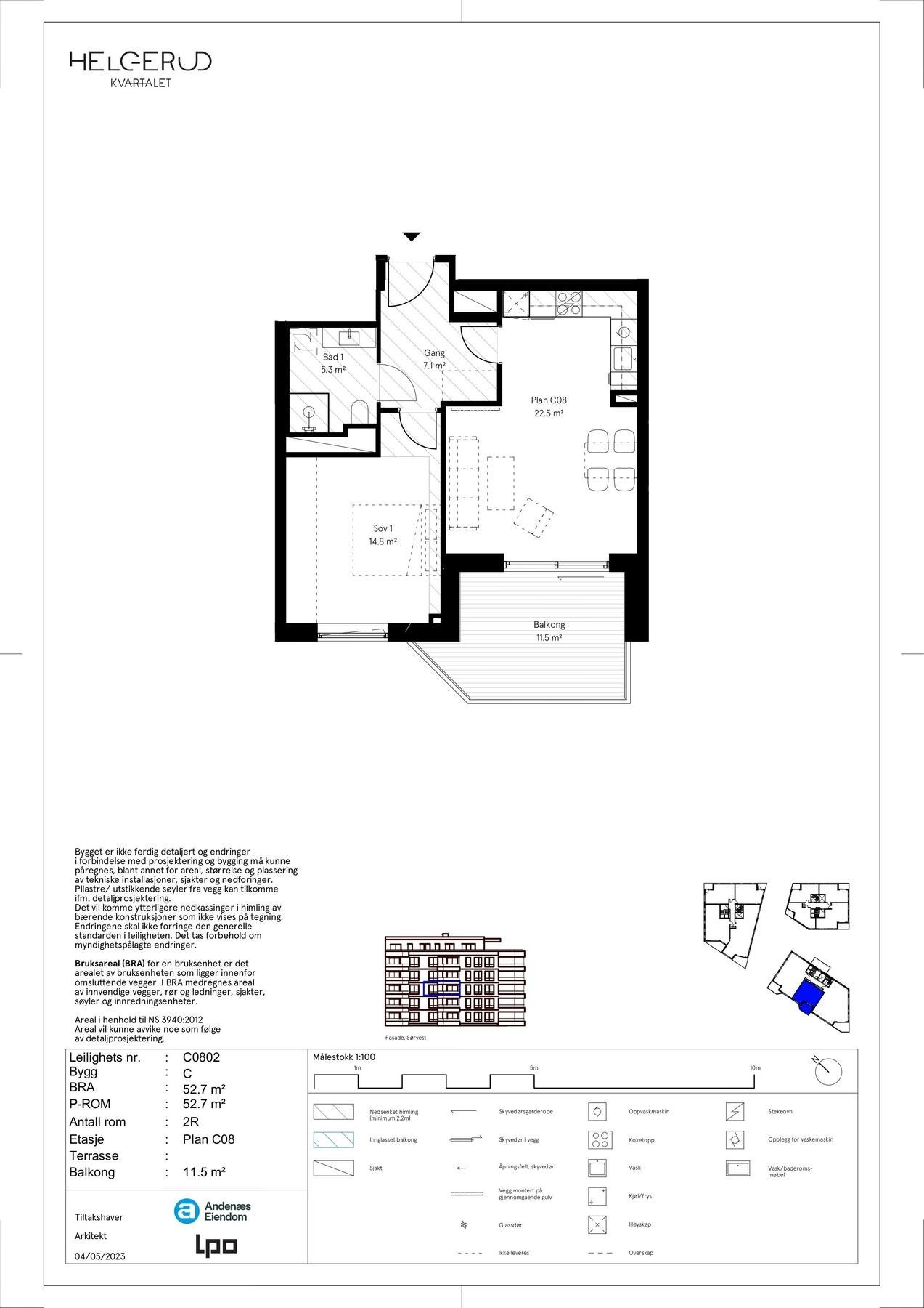
- Internt bruksareal
- 53 m² (BRA-i)
- Bruksareal
- 53 m²
- Eksternt bruksareal
- 6 m² (BRA-e)
- Balkong/Terrasse
- 12 m² (TBA)
- Etasje
- 8
- Byggeår
- 2025
- Energimerking
- A - Mørkegrønn
- Rom
- 2
- Tomt
- Eiet
Fasiliteter
Balkong/Terrasse
Garasje/P-plass
Kabel-TV
Heis
Offentlig vann/kloakk
Parkett
Utsikt
Sentralt
Bredbåndstilknytning
Moderne
Bademulighet
Lademulighet
Balansert ventilasjon
Om boligen
Velkommen til en moderne, åpen 2-roms i Helgerudkvartalet - et av de mest ettertraktede nybyggene i Sandvika. Her møter gjennomtenkt romdisponering effektive kvadratmeter, elegante vinduspartier og solide materialvalg av kvalitet.
Kun 12 minutter med tog eller bil til Oslo!
Høydepunkter:
Gjennomtenkt planløsning og høy standard
1-stavs eikeparkett
Vannbåren gulvvarme (bad med varmekabler)
Balansert ventilasjon
Kvalitetsvinduer og god takhøyde
HTH-kjøkken med benkeplate i steinkompositt
Mulighet for kjøp/leie av garasjeplass*
1 min gange til Sandvika buss- og togstasjon
Sykkelgarasje, samt vedlikehold/vask
Direkte tilgang til Rema 1000 uten å gå utenfor bygget
Stort satseprosjekt i Sandvika som blir som et nytt sentrum med uteområder, kafeer, restauranter, butikker etc.
Elektriske utvendige screens med sensor på alle vinduer.
Utebelysning
Kjellerbod på ca. 6 m².
Velkommen til visning eller privatvisning etter avtale med Keyhan Ascari på 978 91 014 / kas@eie.no
Kun 12 minutter med tog eller bil til Oslo!
Høydepunkter:
Gjennomtenkt planløsning og høy standard
1-stavs eikeparkett
Vannbåren gulvvarme (bad med varmekabler)
Balansert ventilasjon
Kvalitetsvinduer og god takhøyde
HTH-kjøkken med benkeplate i steinkompositt
Mulighet for kjøp/leie av garasjeplass*
1 min gange til Sandvika buss- og togstasjon
Sykkelgarasje, samt vedlikehold/vask
Direkte tilgang til Rema 1000 uten å gå utenfor bygget
Stort satseprosjekt i Sandvika som blir som et nytt sentrum med uteområder, kafeer, restauranter, butikker etc.
Elektriske utvendige screens med sensor på alle vinduer.
Utebelysning
Kjellerbod på ca. 6 m².
Velkommen til visning eller privatvisning etter avtale med Keyhan Ascari på 978 91 014 / kas@eie.no
NB: Knappen for å vise hele beskrivelsen har kun en visuell effekt.
NB: Knappen for å vise hele beskrivelsen har kun en visuell effekt.
Salgsoppgaven beskriver vesentlig og lovpålagt informasjon om eiendommen
Se komplett salgsoppgaveNyttige lenker
Nærområdet
EIE eiendomsmegling Bærum
Annonseinformasjon
| FINN-kode | 422934240 |
|---|---|
| Sist endret | 25. des. 2025 18:14 |
| Referanse | 36251493 |
Annonsene kan være mangelfulle i forhold til lovpålagt opplysningsplikt. Før bindende avtale inngås oppfordres interessenter til å innhente komplett informasjon fra meglerforetaket, selger eller utleier.









































