Bildegalleri

Innholdsrik enebolig på stor utsiktstomt i rolig og attraktivt område.
Solgt
Asker/Øvre Båstad
Stor og innholdsrik enebolig med fjordutsikt og særdeles flott hage|Gode solforhold | Dobbelgarasje |Moderniseringsbehov
Prisantydning11 500 000 kr
Nøkkelinfo
- Boligtype
- Enebolig
- Eieform
- Eier (Selveier)
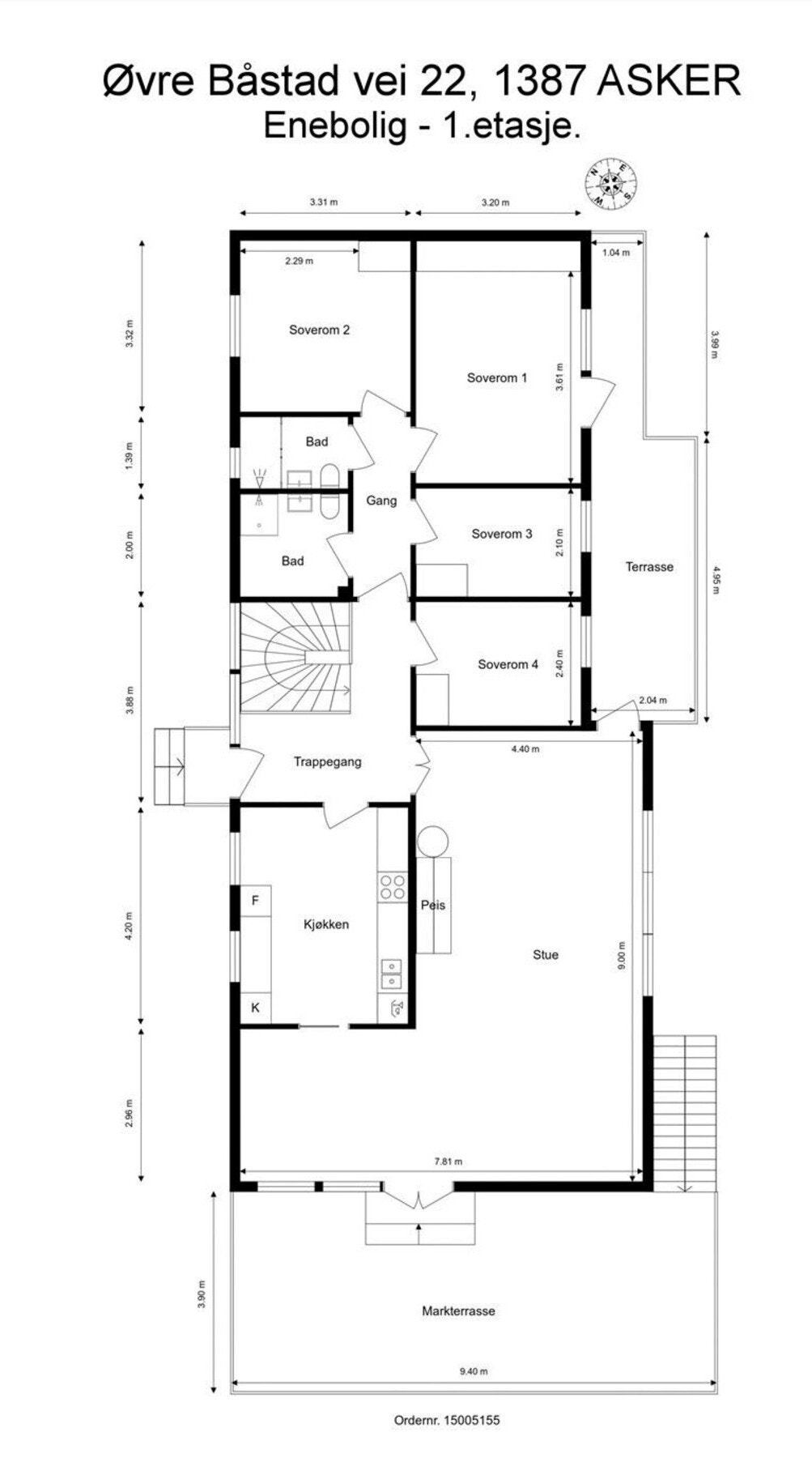
- Soverom
- 6
- Internt bruksareal
- 251 m² (BRA-i)
- Bruksareal
- 291 m²
- Eksternt bruksareal
- 40 m² (BRA-e)
- Balkong/Terrasse
- 14 m² (TBA)
- Byggeår
- 1971
- Energimerking
- G - Oransje
- Rom
- 8
- Tomteareal
- 1 532 m² (eiet)
Fasiliteter
Barnevennlig
Balkong/Terrasse
Garasje/P-plass
Ingen gjenboere
Parkett
Peis/Ildsted
Turterreng
Utsikt
Sentralt
Rolig
Om boligen
Velkommen til Øvre Båstad vei 22, en stor og innholdsrik enebolig med svært attraktiv beliggenhet i et veletablert og fredelig villaområde i Asker.
Fra eiendommen kan du nyte solrike uteplasser og flott utsikt over Leangbukta og Oslofjorden.
Kort fortalt:
- Fantastisk beliggenhet med nydelig fjordutsikt.
- Stor og flott opparbeidet hage med frukt og bær.
- Sydøstvendt terrasse på ca. 14 m2.
- Sydvestvendt markterrasse på ca. 36,5 m2.
- Tre ildsteder.
- Dobbel garasje.
- Drenering fra 2007.
- Boligen har oppussingsbehov og stort potensiale.
- Arkitekttegnet forslag til modernisert enebolig medfølger.
- Populært og etablert villaområde.
- Rolig blindvei uten gjennomgangstrafikk.
- Gangavstand til Asker sentrum.
- Rolig og barnevennlig område.
- Bondi skolekrets og trygg skolevei.
- Nærhet til Risenga med alt av sportstilbud, blant annet Asker tennisklubb, svømmehall, fotballbane mm.
- Fine turområder ved Semsvannet og sti ned til Hvalstrand.
- Kort vei til Leangbukta marina.
Fra eiendommen kan du nyte solrike uteplasser og flott utsikt over Leangbukta og Oslofjorden.
Kort fortalt:
- Fantastisk beliggenhet med nydelig fjordutsikt.
- Stor og flott opparbeidet hage med frukt og bær.
- Sydøstvendt terrasse på ca. 14 m2.
- Sydvestvendt markterrasse på ca. 36,5 m2.
- Tre ildsteder.
- Dobbel garasje.
- Drenering fra 2007.
- Boligen har oppussingsbehov og stort potensiale.
- Arkitekttegnet forslag til modernisert enebolig medfølger.
- Populært og etablert villaområde.
- Rolig blindvei uten gjennomgangstrafikk.
- Gangavstand til Asker sentrum.
- Rolig og barnevennlig område.
- Bondi skolekrets og trygg skolevei.
- Nærhet til Risenga med alt av sportstilbud, blant annet Asker tennisklubb, svømmehall, fotballbane mm.
- Fine turområder ved Semsvannet og sti ned til Hvalstrand.
- Kort vei til Leangbukta marina.
NB: Knappen for å vise hele beskrivelsen har kun en visuell effekt.
NB: Knappen for å vise hele beskrivelsen har kun en visuell effekt.
Salgsoppgaven beskriver vesentlig og lovpålagt informasjon om eiendommen
Se komplett salgsoppgaveNyttige lenker
Nærområdet
EIE eiendomsmegling Vinderen
Annonseinformasjon
| FINN-kode | 423062699 |
|---|---|
| Sist endret | 01. des. 2025 15:19 |
| Referanse | 31250124 |
Annonsene kan være mangelfulle i forhold til lovpålagt opplysningsplikt. Før bindende avtale inngås oppfordres interessenter til å innhente komplett informasjon fra meglerforetaket, selger eller utleier.































































