Bildegalleri

Solgt
Nyoppusset 4-roms på Ullernåsen - Balkong, fyring/vv inkl. - Marka & T-bane i gangavstand
Prisantydning5 950 000 kr
Nøkkelinfo
- Boligtype
- Leilighet
- Eieform
- Eier (Selveier)
- Soverom
- 3
- Internt bruksareal
- 71 m² (BRA-i)
- Bruksareal
- 77 m²
- Eksternt bruksareal
- 6 m² (BRA-e)
- Balkong/Terrasse
- 3 m² (TBA)
- Etasje
- 1
- Byggeår
- 1961
- Tomteareal
- 11 828 m² (eiet)
Fasiliteter
Barnevennlig
Balkong/Terrasse
Garasje/P-plass
Kabel-TV
Heis
Offentlig vann/kloakk
Turterreng
Utsikt
Fellesvaskeri
Sentralt
Bredbåndstilknytning
Moderne
Rolig
Lademulighet
Om boligen
Velkommen til Silurveien 42!
Lys og innbydende 4-roms hjørneleilighet i 1. etasje med solrik balkong, oppusset i 2025. Leiligheten har en attraktiv beliggenhet på Ullern - i et stille og grønt boområde, samtidig svært sentralt med Ullernåsen T-banestasjon rett nedenfor. Kort vei til CC Vest, skoler, barnehager, butikker og flotte turområder langs Lysakerelven, Mærradalen og Bogstadvannet.
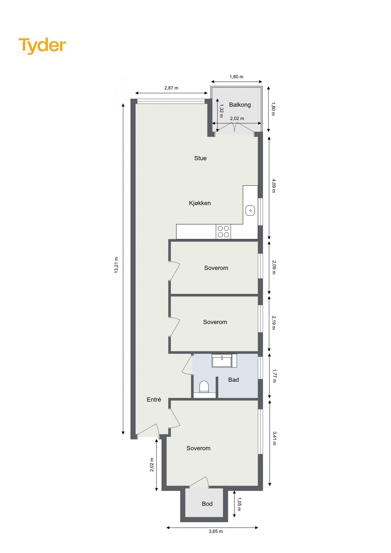
Planløsningen er gjennomtenkt og romslig: Entré, lys stue med utgang til balkong, moderne kjøkken i åpen løsning, tre soverom, helfliset bad fra 2025 med gulvvarme, samt praktisk bod. I tillegg medfølger en kjellerbod på ca. 6 kvm.
Boligen holder en høy standard med nytt kjøkken, bad og el-anlegg utført av fagfolk med dokumentasjon i Boligmappa. Vinduer og balkongdør er i god stand, og overflatene er lysmalte med parkett på gulv. Sameiet har felles utendørs parkeringsplasser, flere med elbilladere.
Her får du en stilfull og moderne bolig med alt på ett plan, perfekt beliggenhet!
Lys og innbydende 4-roms hjørneleilighet i 1. etasje med solrik balkong, oppusset i 2025. Leiligheten har en attraktiv beliggenhet på Ullern - i et stille og grønt boområde, samtidig svært sentralt med Ullernåsen T-banestasjon rett nedenfor. Kort vei til CC Vest, skoler, barnehager, butikker og flotte turområder langs Lysakerelven, Mærradalen og Bogstadvannet.
Planløsningen er gjennomtenkt og romslig: Entré, lys stue med utgang til balkong, moderne kjøkken i åpen løsning, tre soverom, helfliset bad fra 2025 med gulvvarme, samt praktisk bod. I tillegg medfølger en kjellerbod på ca. 6 kvm.
Boligen holder en høy standard med nytt kjøkken, bad og el-anlegg utført av fagfolk med dokumentasjon i Boligmappa. Vinduer og balkongdør er i god stand, og overflatene er lysmalte med parkett på gulv. Sameiet har felles utendørs parkeringsplasser, flere med elbilladere.
Her får du en stilfull og moderne bolig med alt på ett plan, perfekt beliggenhet!
NB: Knappen for å vise hele beskrivelsen har kun en visuell effekt.
NB: Knappen for å vise hele beskrivelsen har kun en visuell effekt.
Salgsoppgaven beskriver vesentlig og lovpålagt informasjon om eiendommen
Se komplett salgsoppgaveNyttige lenker
Nærområdet
PrivatMegleren Bærum
Kun det beste på dine vegne
Annonsene kan være mangelfulle i forhold til lovpålagt opplysningsplikt. Før bindende avtale inngås oppfordres interessenter til å innhente komplett informasjon fra meglerforetaket, selger eller utleier.






























