Bildegalleri

Solgt
Meget velholdt og innbydende enebolig beliggende sentralt i Svarstad - Nydelig hagetomt - Garasje
Prisantydning3 200 000 kr
Nøkkelinfo
- Boligtype
- Enebolig
- Eieform
- Eier (Selveier)
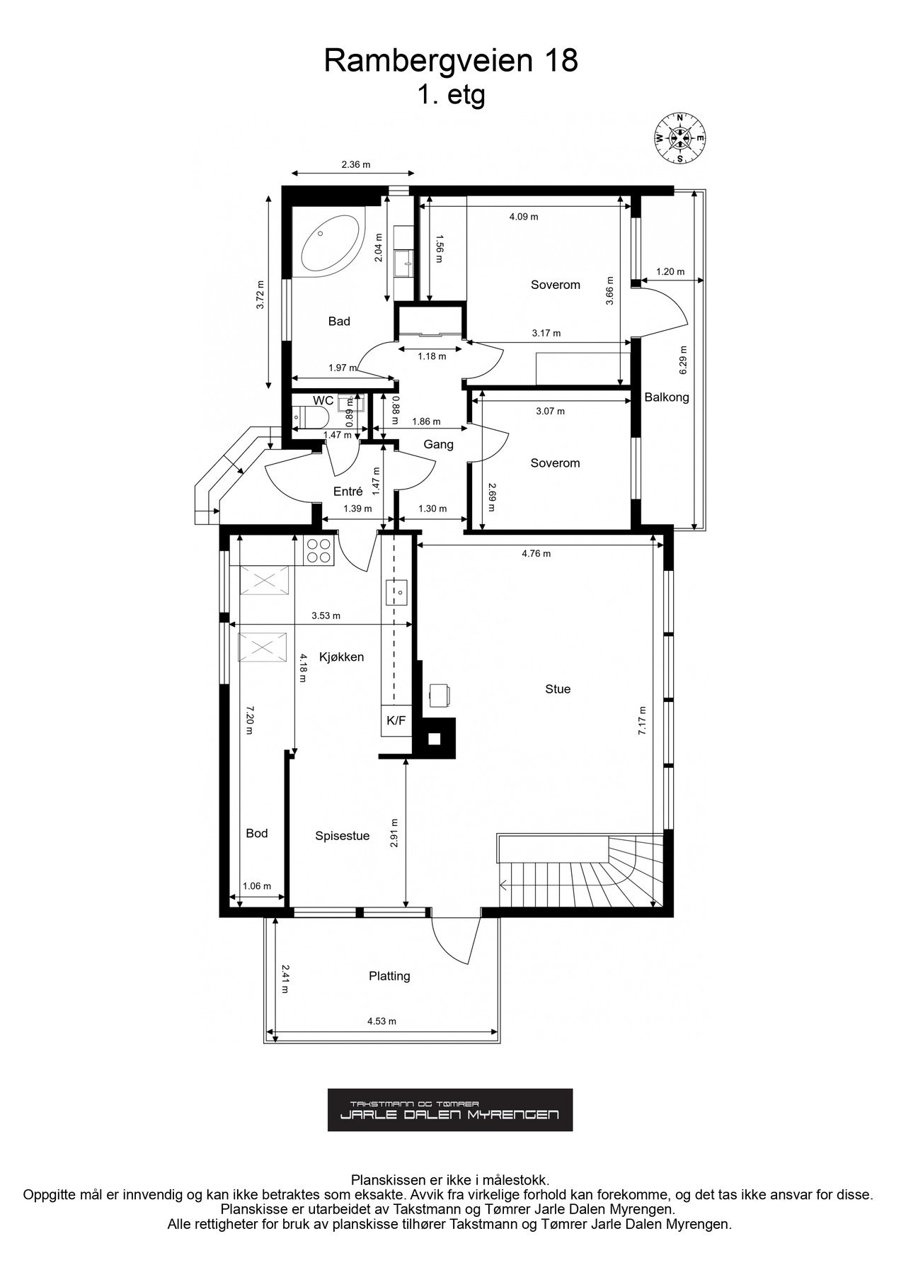
- Soverom
- 2
- Internt bruksareal
- 193 m² (BRA-i)
- Bruksareal
- 219 m²
- Eksternt bruksareal
- 26 m² (BRA-e)
- Balkong/Terrasse
- 19 m² (TBA)
- Byggeår
- 1977
- Energimerking
- E - Gul
- Tomteareal
- 848 m² (eiet)
Fasiliteter
Barnevennlig
Balkong/Terrasse
Garasje/P-plass
Kabel-TV
Fiskemulighet
Offentlig vann/kloakk
Ingen gjenboere
Parkett
Peis/Ildsted
Turterreng
Sentralt
Bredbåndstilknytning
Moderne
Rolig
Bademulighet
Om boligen
Rambergveien 18 er en meget velholdt og tiltalende enebolig beliggende på en stor, nydelig tomt. Flere innbydende uteplasser med bl.a egen utepeis, hvor late sommerkvelder virkelig kan nytes. Videre er tomten pent opparbeidet med plen, blomster, prydbusker og steinsatt gårdsplass.
Eiendommen ligger sentralt i Svarstad, i et rolig og barnevennlig område, med gode solforhold. Umiddelbar nærhet til skole, barnehage, dagligvarebutikker og fine turområder.
Oppgraderinger utført de senere år:
- Ytterdør kjeller 2008
- Luftebalkong 2008
- Vedovn stue og kjeller, varmepumpe 2009
- Ytterdør 1. etasje 2010
- Terrassedør stue 2011
- Parkett 1. etasje 2014
- Shingel garasjetak 2016
- Takvindu kjøkken 2017
- Stekeovn og platetopp 2017
- Solskjerming stuevinduer øst 2021
- Elbillader 2022
- Platetopp 2022
- Vindu og terrassedør soverom 2022
- Oppvaskmaskin 2023
- Vinduer sørvegg 2023
- Ny ytterkledning sørvegg 2023/2024
Her kan du flytte rett inn i et rolig og trivelig nabolag!
Eiendommen ligger sentralt i Svarstad, i et rolig og barnevennlig område, med gode solforhold. Umiddelbar nærhet til skole, barnehage, dagligvarebutikker og fine turområder.
Oppgraderinger utført de senere år:
- Ytterdør kjeller 2008
- Luftebalkong 2008
- Vedovn stue og kjeller, varmepumpe 2009
- Ytterdør 1. etasje 2010
- Terrassedør stue 2011
- Parkett 1. etasje 2014
- Shingel garasjetak 2016
- Takvindu kjøkken 2017
- Stekeovn og platetopp 2017
- Solskjerming stuevinduer øst 2021
- Elbillader 2022
- Platetopp 2022
- Vindu og terrassedør soverom 2022
- Oppvaskmaskin 2023
- Vinduer sørvegg 2023
- Ny ytterkledning sørvegg 2023/2024
Her kan du flytte rett inn i et rolig og trivelig nabolag!
NB: Knappen for å vise hele beskrivelsen har kun en visuell effekt.
NB: Knappen for å vise hele beskrivelsen har kun en visuell effekt.
Salgsoppgaven beskriver vesentlig og lovpålagt informasjon om eiendommen
Se komplett salgsoppgaveNyttige lenker
Nærområdet
EIE eiendomsmegling Larvik & Lågendalen
Annonseinformasjon
| FINN-kode | 423128915 |
|---|---|
| Sist endret | 21. sep. 2025 16:19 |
| Referanse | 69250128 |
Annonsene kan være mangelfulle i forhold til lovpålagt opplysningsplikt. Før bindende avtale inngås oppfordres interessenter til å innhente komplett informasjon fra meglerforetaket, selger eller utleier.



































