Bildegalleri

Velkommen til Måltrostveien 5, presentert av PrivatMegleren v/ Bettina Ranheim Grønseth
Inaktiv
Velholdt, pen enebolig - Familievennlig - Stor, flott hage - Solrik terrasse på 53 kvm - Garasje - Sjønært og etterspurt
Prisantydning5 790 000 kr
Nøkkelinfo
- Boligtype
- Enebolig
- Eieform
- Eier (Selveier)
- Soverom
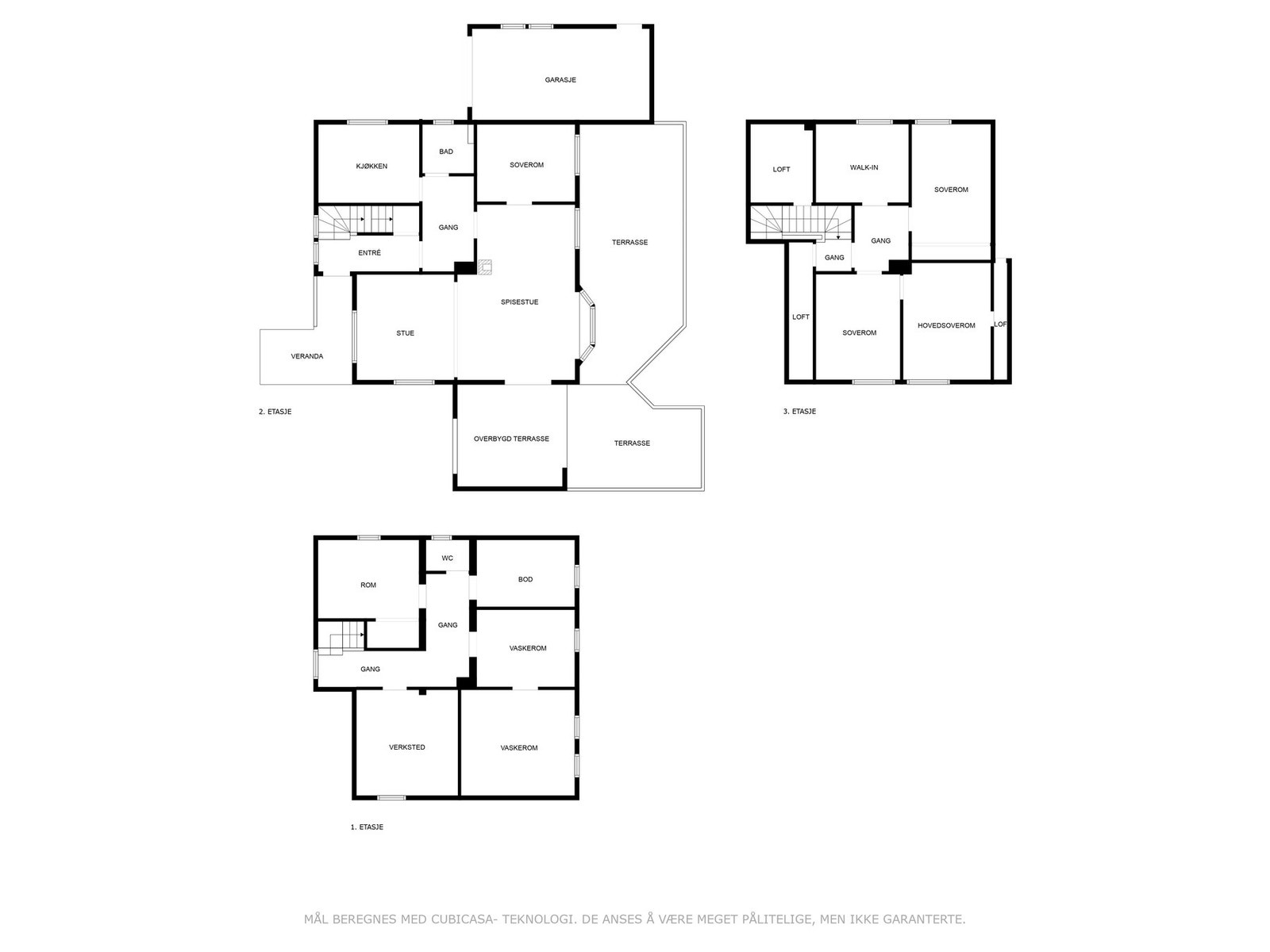
- 4
- Internt bruksareal
- 188 m² (BRA-i)
- Bruksareal
- 207 m²
- Eksternt bruksareal
- 19 m² (BRA-e)
- Balkong/Terrasse
- 53 m² (TBA)
- Etasje
- 2
- Byggeår
- 1960
- Energimerking
- G - Rød
- Rom
- 5
- Tomteareal
- 1 123 m² (eiet)
Fasiliteter
Barnevennlig
Balkong/Terrasse
Garasje/P-plass
Offentlig vann/kloakk
Parkett
Peis/Ildsted
Turterreng
Rolig
Om boligen
Velkommen til Måltrostveien 5 - en velholdt, pen og familievennlig enebolig over to plan + kjeller. Beliggenheten er attraktiv og barnevennlig, med umiddelbar nærhet til strand, sjø og båtliv, samt kort vei til skoler, barnehager og butikker. Videre kan eiendommen skilte med en stor, solrik og velstelt hage med boltreplass, tilliggende enkelgarasje og en sydvestvendt, dels overbygd terrasse på ca. 53 kvm.
Inne fremstår boligen med stilrene farge- og materialvalg og god planløsning. Her er det en stor, innbydende stue med peisovn og varmepumpe, og på et moderne kjøkken fra 2014 er alle hvitevarer integrert. Videre er det et helfliset bad/wc, et wc-rom, et romslig vaskerom, pen entré og hele fem gode soverom. Flere rom har garderobeløsning, og eiendommen har gode lagringsmuligheter.
Inne fremstår boligen med stilrene farge- og materialvalg og god planløsning. Her er det en stor, innbydende stue med peisovn og varmepumpe, og på et moderne kjøkken fra 2014 er alle hvitevarer integrert. Videre er det et helfliset bad/wc, et wc-rom, et romslig vaskerom, pen entré og hele fem gode soverom. Flere rom har garderobeløsning, og eiendommen har gode lagringsmuligheter.
NB: Knappen for å vise hele beskrivelsen har kun en visuell effekt.
NB: Knappen for å vise hele beskrivelsen har kun en visuell effekt.
Salgsoppgaven beskriver vesentlig og lovpålagt informasjon om eiendommen
Se komplett salgsoppgaveNyttige lenker
Nærområdet

PrivatMegleren Tønsberg
Kun det beste på dine vegne
Annonseinformasjon
| FINN-kode | 423202724 |
|---|---|
| Sist endret | 15. sep. 2025 07:51 |
| Referanse | 13250133 |
Annonsene kan være mangelfulle i forhold til lovpålagt opplysningsplikt. Før bindende avtale inngås oppfordres interessenter til å innhente komplett informasjon fra meglerforetaket, selger eller utleier.



















































