Bildegalleri

Velkommen til Gjerdeveien 4!
Inaktiv
KOMMER FOR SALG Idyllisk småbruk med våningshus, kårbolig, låve, fjøs og verksted
Prisantydning6 900 000 kr
Nøkkelinfo
- Boligtype
- Enebolig
- Eieform
- Eier (Selveier)
- Soverom
- 7
- Internt bruksareal
- 255 m² (BRA-i)
- Bruksareal
- 1 550 m²
- Eksternt bruksareal
- 1 295 m² (BRA-e)
- Balkong/Terrasse
- 219 m² (TBA)
- Byggeår
- 1850
- Energimerking
- G - Rød
- Rom
- 9
- Tomteareal
- 69 000 m² (eiet)
Fasiliteter
Balkong/Terrasse
Garasje/P-plass
Fiskemulighet
Peis/Ildsted
Turterreng
Utsikt
Rolig
Bademulighet
Om boligen
Velkommen til Gjerdeveien 4 - en idyllisk småbruk med store muligheter!
Her får du et tradisjonsrikt gårdsbruk med våningshus, kårbolig, låve, fjøs og verksted på en tomt på ca. 69 mål. Eiendommen ligger vakkert til i naturskjønne omgivelser med gode solforhold.
Fra eiendommen er det kun 7-8 minutters kjøring til både matbutikk, barneskole og barnehage.
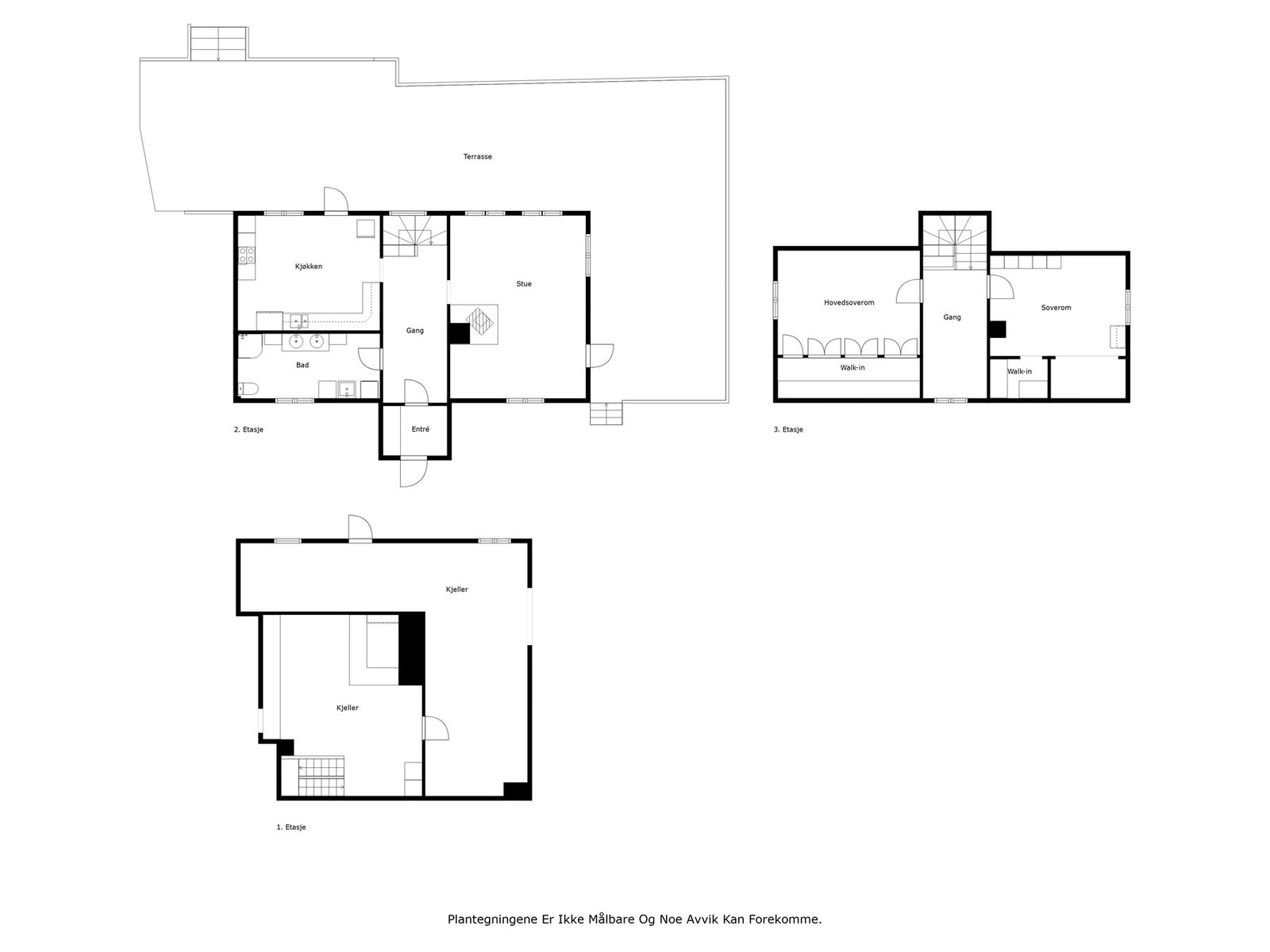
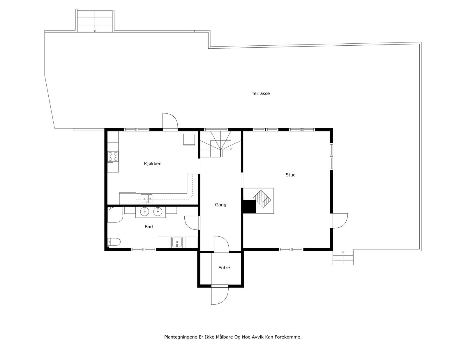
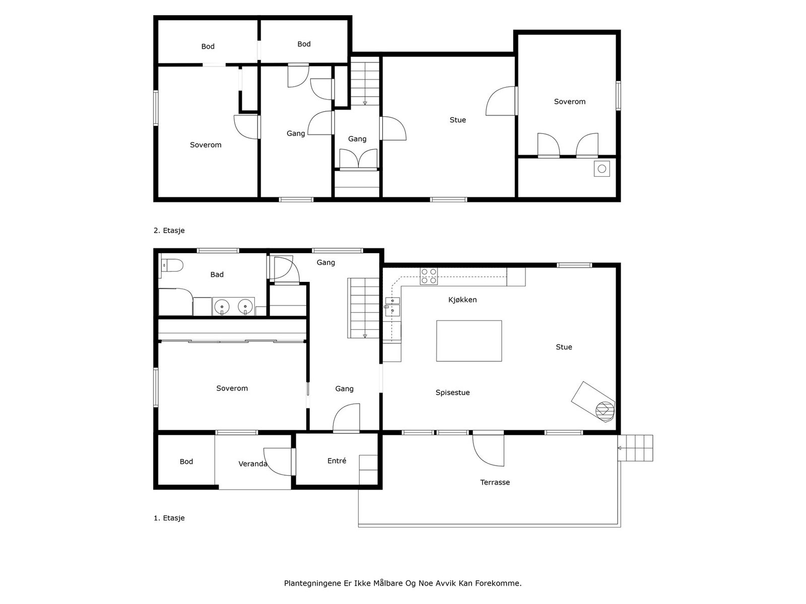
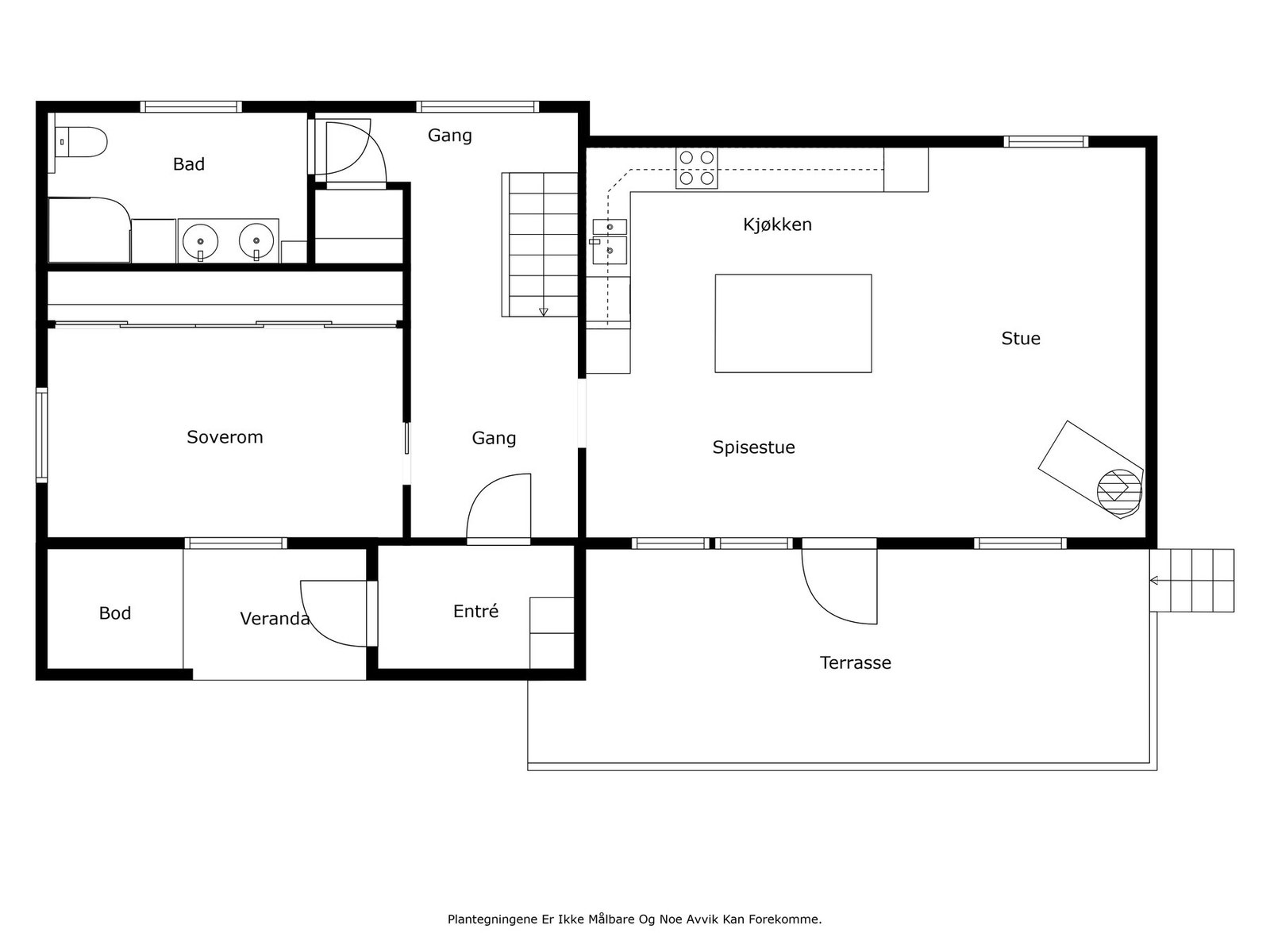
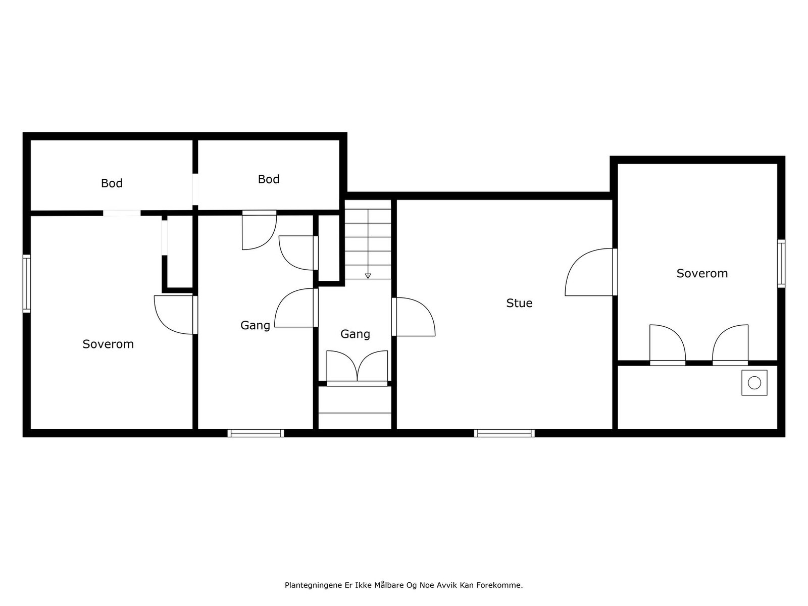
Her får du et internt bruksareal på 331 kvm fordelt på to boliger.
Våningshuset/Gjerdeveien 4 går over tre plan og inneholder kjøkken, stue, to soverom og et bad. I tillegg til terrasser på hele 126 kvm. Kårboligen/Gjerdeveien 6 går over to plan og inneholder kjøkken, to stuer, fire soverom og et bad. Her har du også en stor terrasse på 56 kvm.
Velkommen på visning!
Her får du et tradisjonsrikt gårdsbruk med våningshus, kårbolig, låve, fjøs og verksted på en tomt på ca. 69 mål. Eiendommen ligger vakkert til i naturskjønne omgivelser med gode solforhold.
Fra eiendommen er det kun 7-8 minutters kjøring til både matbutikk, barneskole og barnehage.
Her får du et internt bruksareal på 331 kvm fordelt på to boliger.
Våningshuset/Gjerdeveien 4 går over tre plan og inneholder kjøkken, stue, to soverom og et bad. I tillegg til terrasser på hele 126 kvm. Kårboligen/Gjerdeveien 6 går over to plan og inneholder kjøkken, to stuer, fire soverom og et bad. Her har du også en stor terrasse på 56 kvm.
Velkommen på visning!
NB: Knappen for å vise hele beskrivelsen har kun en visuell effekt.
NB: Knappen for å vise hele beskrivelsen har kun en visuell effekt.
Salgsoppgaven beskriver vesentlig og lovpålagt informasjon om eiendommen
Se komplett salgsoppgaveNyttige lenker
Nærområdet
Privatmegleren Kragerø
Kun det beste på dine vegne
Annonseinformasjon
| FINN-kode | 424264633 |
|---|---|
| Sist endret | 07. okt. 2025 07:16 |
| Referanse | 322250017 |
Annonsene kan være mangelfulle i forhold til lovpålagt opplysningsplikt. Før bindende avtale inngås oppfordres interessenter til å innhente komplett informasjon fra meglerforetaket, selger eller utleier.






























































