Bildegalleri

Velkommen til Krossern 17 formidlet av Nordvik v/Kent Yuen! Fotograf: Marie Waagan.
Krossern/Jeløya
Moderne og lys 2-roms selveier fra 2018 - Trappefri adkomst - Stor, solrik terrasse med flott fjordutsikt - Garasjeplass
Prisantydning3 150 000 kr
Nøkkelinfo
- Boligtype
- Leilighet
- Eieform
- Eier (Selveier)
- Soverom
- 1
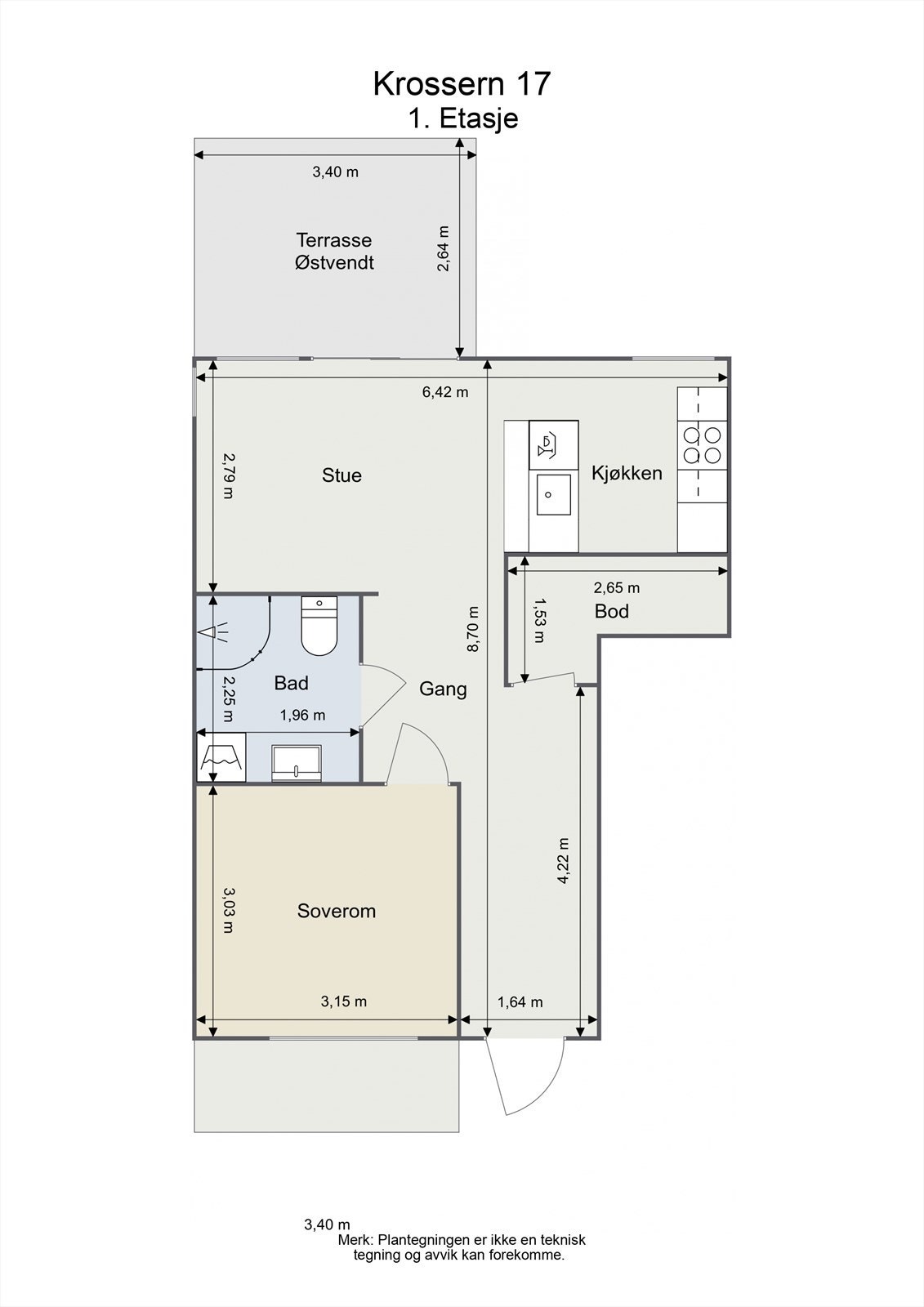
- Internt bruksareal
- 47 m² (BRA-i)
- Bruksareal
- 52 m²
- Eksternt bruksareal
- 5 m² (BRA-e)
- Balkong/Terrasse
- 9 m² (TBA)
- Etasje
- 1
- Byggeår
- 2018
- Energimerking
- D - Rød
- Rom
- 2
- Tomteareal
- 1 421 m² (eiet)
Fasiliteter
Balkong/Terrasse
Barnevennlig
Bredbåndstilknytning
Garasje/P-plass
Hage
Kjæledyr tillatt
Offentlig vann/kloakk
Rolig
Sentralt
Utsikt
Turterreng
Balansert ventilasjon
Visning
søndag, 18. januar
15:00 – 15:30
Alle våre visninger har påmelding. Meld deg på i god tid før visning ved å trykke på lenken visningspåmelding. Passer ikke tidspunktet, kontakt megler for å avtale til tid til privatvisning. NB! Dersom det ikke er noen påmeldte, vil ikke megler være til stede og visning utgår.
VisningspåmeldingOm boligen
Velkommen til Krossern 17!
Leiligheten er en moderne og lys 2-roms leilighet fra 2018 med flott sjøutsikt og en gjennomgående planløsning som gir en luftig og behagelig atmosfære. Her kan du starte dagen på den østvendte terrassen med morgensol, utsikt, og nyte rolige kvelder i sameiets hyggelige felleshage - alt i kort avstand til sentrum, turområder og badestrender.
- Moderne 2-roms selveierleilighet fra 2018.
- Gjennomgående planløsning med lyse og luftige rom.
- Flott sjøutsikt fra østvendt terrasse på ca. 9 kvm.
- Stilrent Epoq-kjøkken med hvitevarer fra Electrolux.
- Garasjeplass i felles parkeringskjeller.
- 300 m til busstopp, og dagligvare rett over veien!
- Utleievurdering på 14.500,- pr mnd vedlagt i salgsoppgaven fra Utleiemegleren.
Leiligheten er en moderne og lys 2-roms leilighet fra 2018 med flott sjøutsikt og en gjennomgående planløsning som gir en luftig og behagelig atmosfære. Her kan du starte dagen på den østvendte terrassen med morgensol, utsikt, og nyte rolige kvelder i sameiets hyggelige felleshage - alt i kort avstand til sentrum, turområder og badestrender.
NB: Knappen for å vise hele beskrivelsen har kun en visuell effekt.
NB: Knappen for å vise hele beskrivelsen har kun en visuell effekt.
Salgsoppgaven beskriver vesentlig og lovpålagt informasjon om eiendommen
Se komplett salgsoppgaveNyttige lenker
Nærområdet
Nordvik Moss
Vi vet hva det er verdt
Annonseinformasjon
| FINN-kode | 424272574 |
|---|---|
| Sist endret | 14. jan. 2026 11:44 |
| Referanse | 41-0231/25 |
Annonsene kan være mangelfulle i forhold til lovpålagt opplysningsplikt. Før bindende avtale inngås oppfordres interessenter til å innhente komplett informasjon fra meglerforetaket, selger eller utleier.



























