Bildegalleri

Eiendomsmegler Norge ved Kristian Lossius har gleden av å ønske deg velkommen til Tinnheiveien 11.
Solgt
Tinnheia
Flott 3-roms andelsleilighet med stor innglasset balkong med meget gode solforhold og sjøutsikt. Felles p.plasser.
Prisantydning2 090 000 kr
Nøkkelinfo
- Boligtype
- Leilighet
- Eieform
- Andel
- Soverom
- 2
- Internt bruksareal
- 66 m² (BRA-i)
- Bruksareal
- 85 m²
- Eksternt bruksareal
- 4 m² (BRA-e)
- Innglasset balkong
- 15 m² (BRA-b)
- Etasje
- 2
- Byggeår
- 1961
- Energimerking
- G - Rød
- Rom
- 3
- Tomteareal
- 5 034 m² (eiet)
Fasiliteter
Balkong/Terrasse
Heis
Utsikt
Om boligen
Eiendomsmegler Norge ved Kristian Lossius har gleden av å ønske deg velkommen til Tinnheiveien 11.
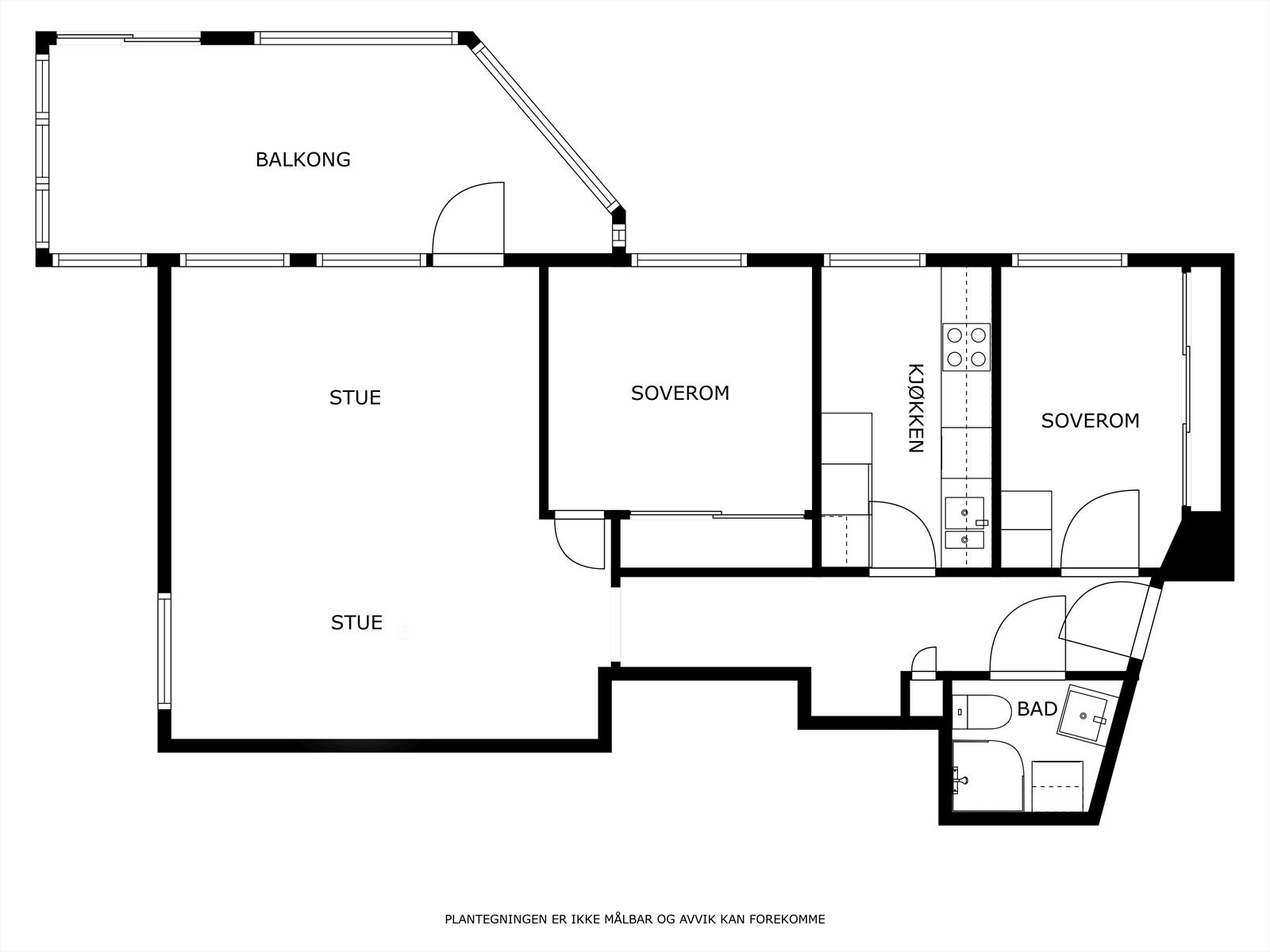
Leiligheten har følgende planløsning: Gang/entrè med skap og plass til å henge av seg ytterklær og sko. 2 soverom hvorav hovedsoverom har plass til dobbeltseng og garderobeskap. Soverom 2 med skyvedørsgarderobe. Ikea kjøkken fra 2013 med hvitevarer. Flislagt bad med dusjkabinett, servant og toalett. Opplegg til vaskemaskin. Videre har leiligheten en lys og fin stue med utgang til stor, innglasset balkong med sjøutsikt og meget gode solforhold.
2 boder medfølger leiligheten.
Leiligheten har følgende planløsning: Gang/entrè med skap og plass til å henge av seg ytterklær og sko. 2 soverom hvorav hovedsoverom har plass til dobbeltseng og garderobeskap. Soverom 2 med skyvedørsgarderobe. Ikea kjøkken fra 2013 med hvitevarer. Flislagt bad med dusjkabinett, servant og toalett. Opplegg til vaskemaskin. Videre har leiligheten en lys og fin stue med utgang til stor, innglasset balkong med sjøutsikt og meget gode solforhold.
2 boder medfølger leiligheten.
NB: Knappen for å vise hele beskrivelsen har kun en visuell effekt.
NB: Knappen for å vise hele beskrivelsen har kun en visuell effekt.
Salgsoppgaven beskriver vesentlig og lovpålagt informasjon om eiendommen
Se komplett salgsoppgaveNyttige lenker
Nærområdet
Eiendomsmegler Norge Kristiansand
Best der du bor
Annonseinformasjon
| FINN-kode | 425279656 |
|---|---|
| Sist endret | 14. sep. 2025 10:19 |
| Referanse | SORM11.25426 |
Annonsene kan være mangelfulle i forhold til lovpålagt opplysningsplikt. Før bindende avtale inngås oppfordres interessenter til å innhente komplett informasjon fra meglerforetaket, selger eller utleier.
































